Clapham Common, Worthing

£1,550pcm
Let Agreed
This property listing is now Let Agreed

3 Bedroom House for rent in Worthing

1 3 1
  • Character home in rural setting
  • Three Double Bedrooms
  • 15'3" Lounge
  • Feature Southerly aspect rear garden
  • Excellent transportation links
  • Available Immediately

This property has bags of character and sits in the rural setting of Clapham and offers superb views. There are excellent transportation links and Worthing town centre is a short distance away. As you would expect of this location, there is plenty of the countryside to enjoy with many outstanding walks just on your doorstep. Accommodation comprises a 15'3" lounge, kitchen, three double bedrooms, bathroom and separate cloakroom. Outside is a long Southerly aspect rear garden with views over fields. Viewings are strongly recommended to appreciate it fully.

1/11/22 Social media (GB)

 

 

 

Entrance Hall

Accessed via a double glazed door. Door to

Lounge
15' 3'' x 10' 2'' (4.64m x 3.10m)
Two double glazed windows to the front. Multi fuel log burner. Under stairs storage cupboard plus additional storage cupboard. Two wall mounted heaters.

Kitchen
8' 6'' x 7' 9'' (2.59m x 2.36m)
Part tiled with two double glazed windows to the rear overlooking the garden. Roll edge work tops with inset stainless steel single bowl, single drainer sink unit with mixer tap. Space and plumbing for both a washing machine and dishwasher. Space for a cooker. Range of base units and drawers with matching wall mounted cupboards.

Family Bathroom
8' 0'' x 4' 3'' (2.44m x 1.29m)
Part tiled with double glazed window to the rear. Panel enclosed bath with wall mounted electric shower over. Wash hand basin. Shelving. Radiator.

Inner Hall/Utility Area
8' 4'' x 2' 8'' (2.54m x 0.81m)
L-shaped with space for a fridge freezer. Double glazed door leading to the rear garden.

Cloakroom

Part tiled with double glazed window to the rear. Low level WC. Corner wash hand basin.

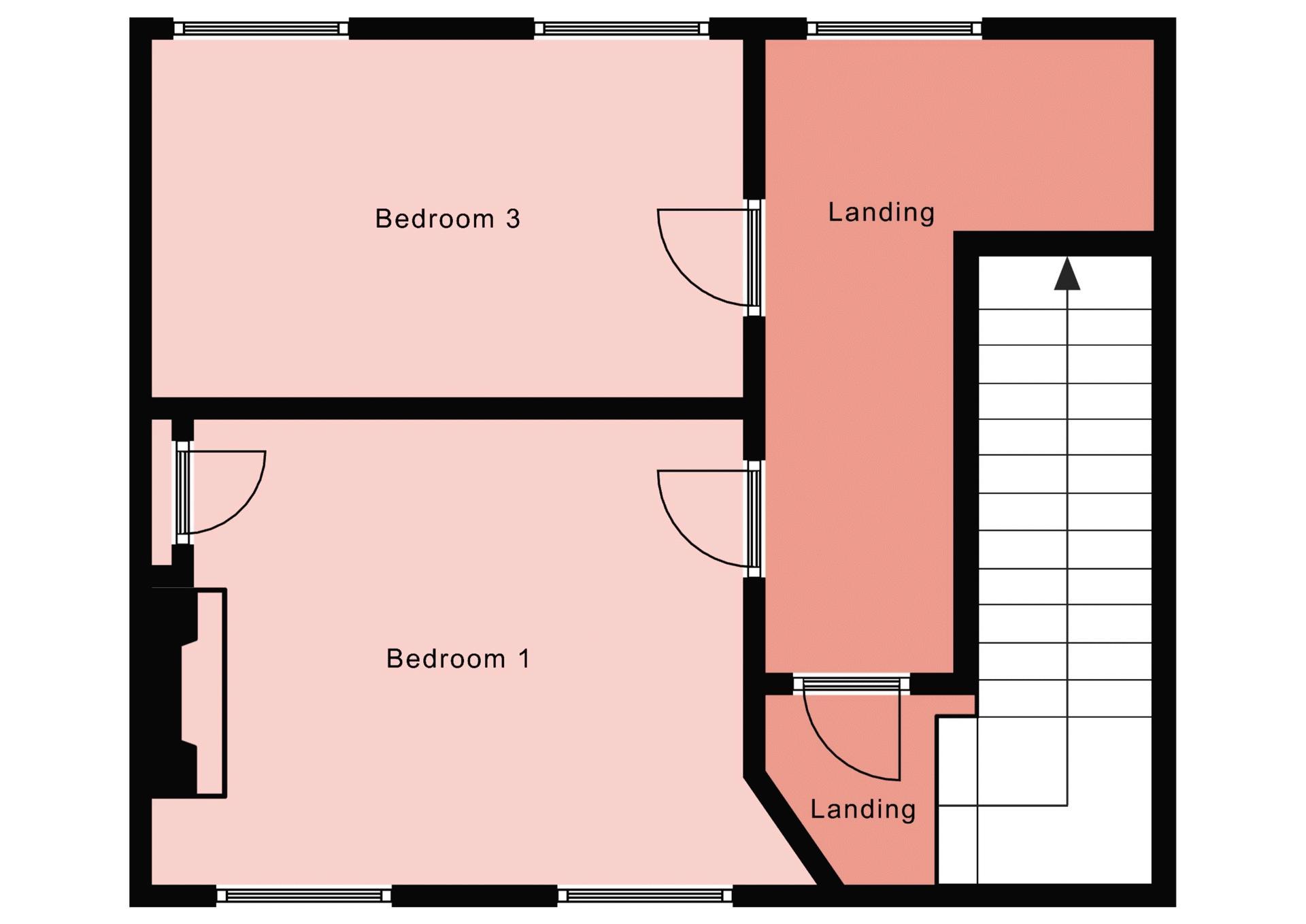
First Floor Landing

Double glazed window to the rear overlooking the garden and fields.

Bedroom 1
12' 1'' x 10' 5'' (3.68m x 3.17m)
Two double glazed windows to the front. Fireplace. Wall mounted heater.

Bedroom 3

Two double glazed windows to the rear. Wall mounted heater.

Bedroom 2
17' 3'' x 12' 2'' (5.25m x 3.71m)
Situated on the second floor with two Veluxe style windows to both the front and rear. Walk in eaves storage space. Wall mounted heater.

Rear Garden

Being of a Southerly aspect, this enclosed feature garden has an extensive area of lawn, a paved patio area. There is also a private retreat style area to the end of the gardens with views looking out over fields.

Front garden

Area of lawn.

Property Ref: EAXML11635_11857649

Share:

Similar Properties

Elverlands Close, Ferring

2 Bedroom Bungalow | £1,450pcm

A rare opportunity to rent this detached bungalow situated in the highly desirable location of South Ferring, moments fr...

Pavilion Road, Worthing

3 Bedroom Flat | £1,400pcm

**CLOSE TO THE TOWN CENTRE** A great opportunity to rent this three double bedroom maisonette which is in close proximit...

Marine Parade, Worthing

1 Bedroom Ground Floor Flat | £1,100pcm

This immaculate one bedroom ground floor apartment on Worthing seafront has bags of character and is available to let st...

Crowborough Drive, Goring-by-Sea

3 Bedroom Bungalow | £1,700pcm

A fantastic opportunity to let this Extended and much improved detached bungalow in the sought after location of South G...

Maytree Avenue, Worthing

4 Bedroom House | £3,250pcm

This deceptively spacious 4/5 bedroom detached family home has been extended and renovated to an extremely high standard...

Ham Road, Worthing

1 Bedroom Flat | Guide Price £170,000

*PERIOD FF FLAT* *NO CHAIN* *MODERN THROUGHOUT* *CLOSE TO SEA* **Guide price £170,000 to £180,000** A great opportunity...

Bartholomew Estate Agents (Goring on Sea)

Goring on Sea, West Sussex, BN12 4PA

01903 680580

How much is your home worth?

Use our short form to request a valuation of your property.

Request a Valuation
©2025 The Guild of Property Professionals. All rights reserved. Terms and Conditions | Privacy Policy | Cookie Policy | Complaints Policy | Members Login
The Guild of Property Professionals Trading Address: 121 Park Lane, London W1K 7AG. GPEA Limited. Registered in England & Wales.  Company No: 02819824.  Registered Office Address: 2 St. Stephen's Court, St. Stephen's Road, Bournemouth, Dorset, England, BH2 6LA.  VAT Registration No: 576 8795 61
Book a Property Valuation Update Cookies Preferences