Oakwood Drive, Bramley Green, Angmering, West Sussex, BN16

£725,000
SSTC
This property listing is now SSTC

6 Bedroom Detached House for sale in Angmering

6
  • Offered With No Ongoing Chain
  • Popular 'Farmhouse' Style Property
  • Six Bedroom Detached House
  • Living Room & Separate Dining Room
  • Refitted Kitchen/Breakfast Room & Utility
  • Refitted, Stylish Bathrooms & Ensuites
  • Driveway and Double Garage
  • Energy Efficiency Rating C

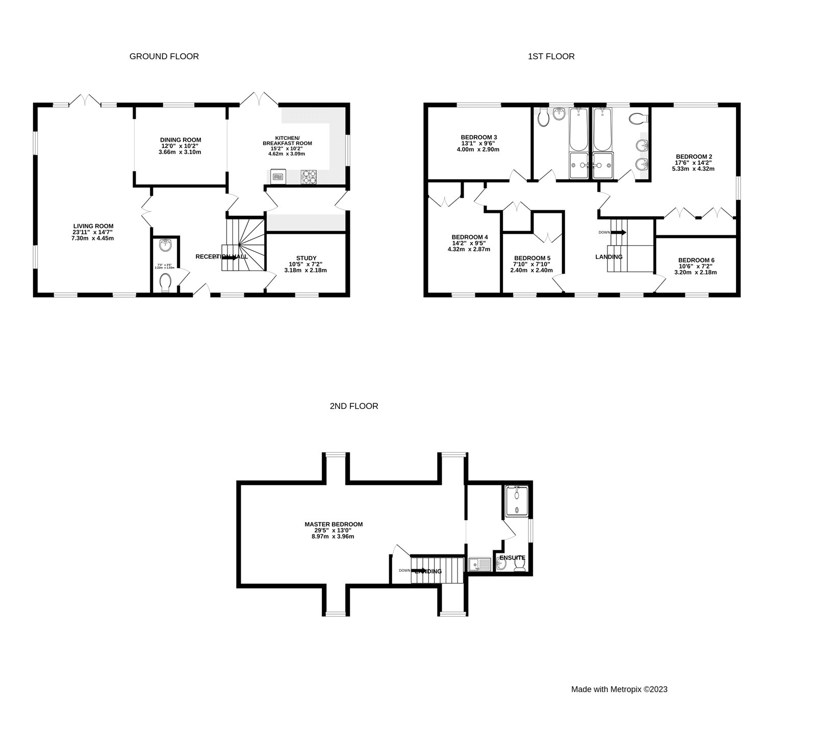
Graham Butt Estate Agents are delighted to offer this SIX BEDROOM detached farmhouse style property, available to the market completely CHAIN FREE and benefits from extensive & generous living accommodation that is split across three floors!

Occupying a prime and imposing position, this large family home features a fantastic living room, separate dining room and a REFITTED kitchen/breakfast room with a companion utility room. Exceptional master bedroom suite to the top floor, additional ensuite to the second floor and main family bathroom (all of which have been stylishly refitted!). Double garage and parking to the rear!


Only a small selection of these detached farmhouse properties were built on this modern development and this one is nicely situated almost at the very front.

A superb, family friendly ground floor offers the owner complete flexibility with two versatile reception rooms including a dual aspect living room, as well as a separate home study. The kitchen has been recently refitted and enjoys doors out the rear garden and a separate utility room too.   

This family home boasts six glorious bedrooms to include two master bedrooms with their own ensuites and it is the owner's choice as to which to use. The four additional bedrooms are all well-sized and are serviced by a family bathroom with separate shower cubical. It should be noted that all bathrooms/ensuites have been stylishly refitted. The house enjoys many other notable benefits including a well-sized rear garden, double garage to the rear and a driveway for private parking.

Important Information

  • This is a Freehold property.

Property Ref: 59426_ANG220232

Share:

Similar Properties

Eyebright, Angmering, West Sussex, BN16

4 Bedroom Detached House | £685,000

** HOME AVAILABLE ** Introducing Meadow Gate, the brand new bespoke Cul de Sac private housing development by award-winn...

Eyebright Lane, Angmering, West Sussex, BN16

4 Bedroom Detached House | £665,000

Four Bedroom Detached Home in Private Cul-de-Sac - Built By Roffey HomesSituated within an exclusive bespoke cul-de-sac,...

Eyebright Lane, Angmering, West Sussex, BN16

4 Bedroom Detached House | £650,000

Situated within a bespoke private cul-de-sac,, built by Roffey Homes is this beautifully crafted four double bedroom det...

Weavers Ring, Angmering, West Sussex, BN16

4 Bedroom Detached House | £750,000

Rarely available and brimming with charm, this spacious four-bedroom home is a true hidden gem, perfectly positioned wit...

Darlington Close, Angmering, West Sussex, BN16

4 Bedroom Detached House | £750,000

Nestled in a cul-de-sac on the sought-after Bramley Green development, this detached family home offers spacious and ver...

North Drive, Angmering, West Sussex, BN16

3 Bedroom Detached House | £775,000

Charming three bedroom detached chalet located on the ever-popular North Drive in Angmering, this attractive three-bedro...

Graham Butt Estate Agents (Angmering)

Square, Angmering, West Sussex, BN16 4EA

01903 778877

How much is your home worth?

Use our short form to request a valuation of your property.

Request a Valuation

Mortgage Calculator

Amount Borrowed: £
Total Amount Repayable: £
Total Monthly Payment: £
©2025 The Guild of Property Professionals. All rights reserved. Terms and Conditions | Privacy Policy | Cookie Policy | Complaints Policy | Members Login
The Guild of Property Professionals Trading Address: 121 Park Lane, London W1K 7AG. GPEA Limited. Registered in England & Wales.  Company No: 02819824.  Registered Office Address: 2 St. Stephen's Court, St. Stephen's Road, Bournemouth, Dorset, England, BH2 6LA.  VAT Registration No: 576 8795 61
Book a Property Valuation Update Cookies Preferences