Ballykenver Road, Armoy, BT53 8TR

Offers in region of
£420,000

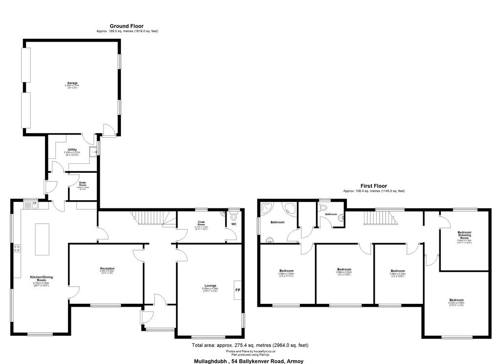
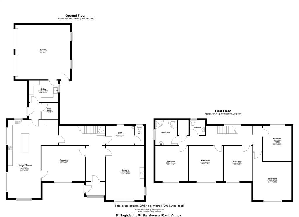
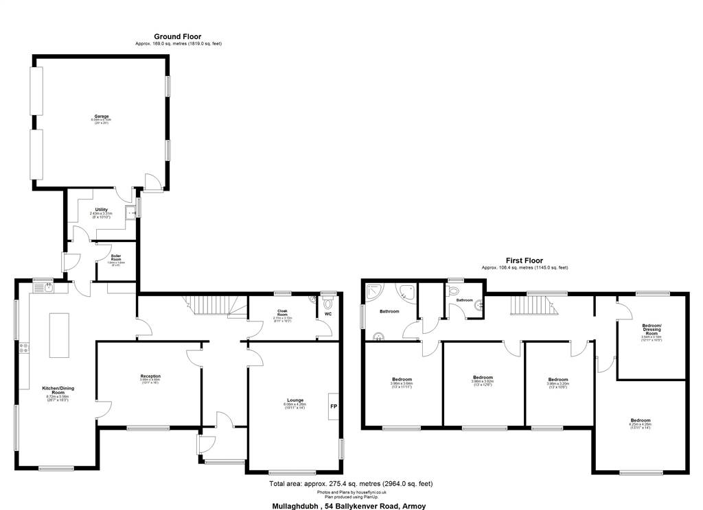
5 Bedroom Detached House for sale in Armoy

2 5 1
  • Detached family home
  • Five bedrooms
  • Lounge with multi-fuel burning stove
  • Spacious kitchen/dining room
  • Second reception room
  • Cloak room with access to WC
  • Utility room
  • First floor bathroom with 3-piece white suite
  • Separate first floor WC
  • Oil fired central heating system

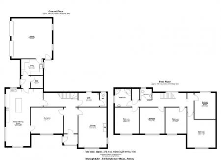
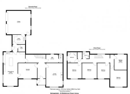
Homes Independent are thrilled to bring to the market 54 Ballykenver Road, Armoy — a truly impressive family home set on a private and mature site extending to approximately 1.02 acres. This spacious property offers everything a growing family could need, boasting five generous bedrooms, a bright and welcoming living room with a cosy multi-fuel burning stove, a second reception room perfect for a playroom, office or snug, and a spacious kitchen/dining area ideal for family meals and entertaining. A separate utility room, cloakroom with WC, and a first-floor bathroom with additional WC add to the practicality of the layout. Outside, the property continues to impress with an integral double garage accessed via the utility room, a detached garage featuring a washing bay at the front, beautifully maintained lawns, a paved patio area, and a fully enclosed paddock to the front extending to around 0.54 acres. Offering excellent privacy in a peaceful rural setting, yet just a short distance from Ballycastle, Armoy, Ballymoney and within walking distance of the world-famous Dark Hedges, this property combines idyllic countryside living with convenience — a rare and exciting opportunity not to be missed.

Property Ref: HIBM_HIBM5115

Share:

Similar Properties

Glebe Road, Ahoghill, BT41 3DT

4 Bedroom Detached House | Offers Over £399,950

Homes Independent are delighted to bring to market this impressive and beautifully maintained detached residence, offeri...

Glenagherty Drive, Galgorm, Ballymena, BT42 1AG

4 Bedroom Detached House | Offers in region of £399,000

Glenagherty Drive is located at the Galgorm Road end of the Old Galgorm Road and must be one of the most prime addresses...

Beech Trees, Ballyreagh Road, Clough, BT44 9FG

3 Bedroom Detached Bungalow | Offers in region of £395,000

Homes Independent are thrilled to present this stunning new build detached bungalow just off the Ballyreagh Road, Clough...

Granagh Road, Cullybackey, BT42 1EQ

4 Bedroom Detached House | Offers in region of £425,000

Homes Independent are delighted to list for sale this exceptional dwelling on the Granagh Road on the edge of Cullybacke...

Burnside Road, Broughshane, BT42 4PB

5 Bedroom Detached Bungalow | Offers in region of £425,000

This exceptionally well-finished detached chalet house extends to over 3,000 sq. feet and includes spacious family livin...

Tullygrawley Road, Glarryford, Ballymena, BT44 9HE

4 Bedroom Detached House | Offers in region of £445,000

Homes Independent are thrilled to offer for sale this exceptional four-bedroom detached property, located in a desirable...

Homes Independent (Ballymena)

Ballymena, Antrim, BT43 5AA

028 2565 11 11

How much is your home worth?

Use our short form to request a valuation of your property.

Request a Valuation

Mortgage Calculator

Amount Borrowed: £
Total Amount Repayable: £
Total Monthly Payment: £
©2025 The Guild of Property Professionals. All rights reserved. Terms and Conditions | Privacy Policy | Cookie Policy | Complaints Policy | Members Login
The Guild of Property Professionals Trading Address: 121 Park Lane, London W1K 7AG. GPEA Limited. Registered in England & Wales.  Company No: 02819824.  Registered Office Address: 2 St. Stephen's Court, St. Stephen's Road, Bournemouth, Dorset, England, BH2 6LA.  VAT Registration No: 576 8795 61
Book a Property Valuation Update Cookies Preferences