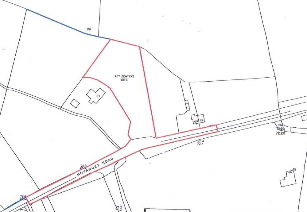
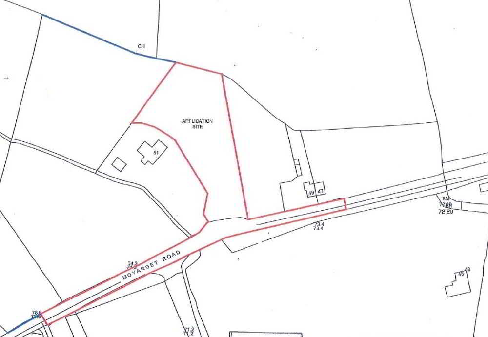
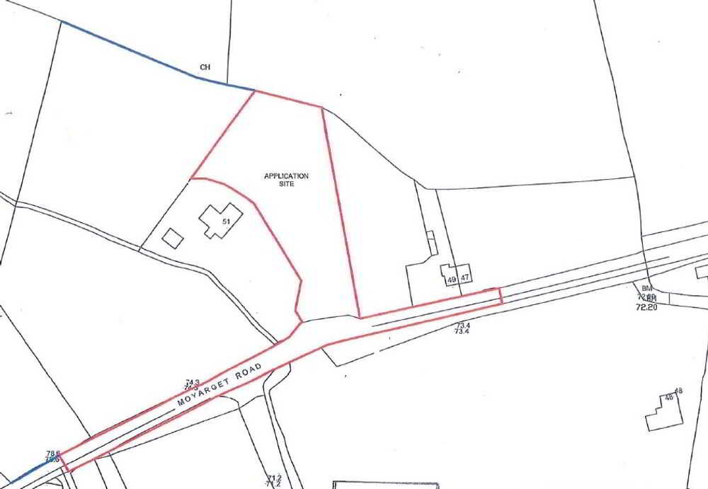
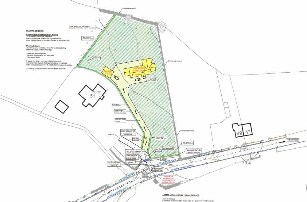
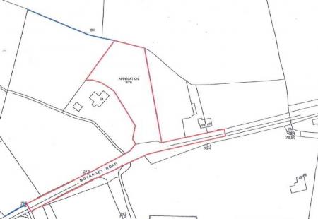
Site Between, 49 & 51 Moyarget Road, Ballycastle

Offers in region of
£99,950

Plot for sale in Ballycastle

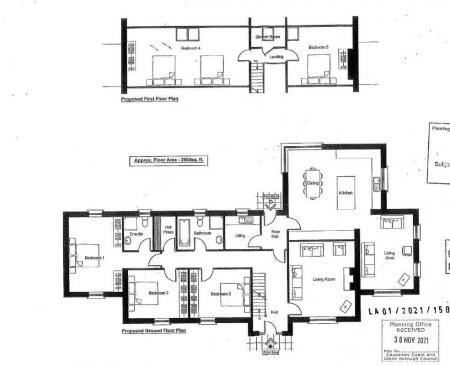
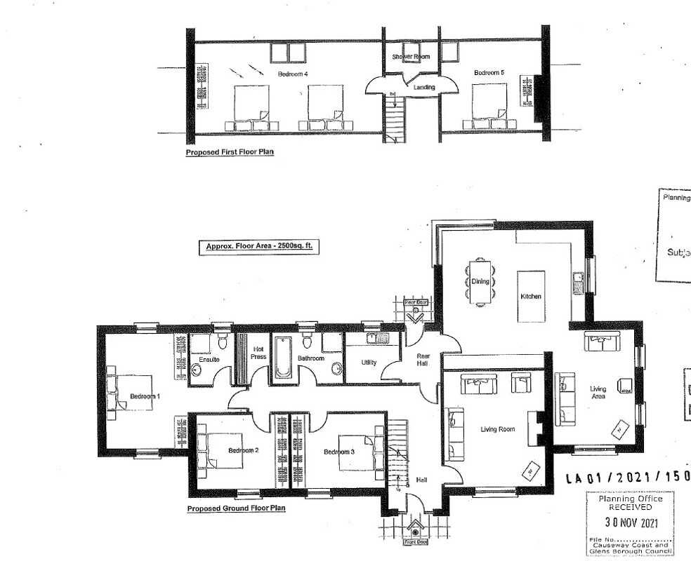
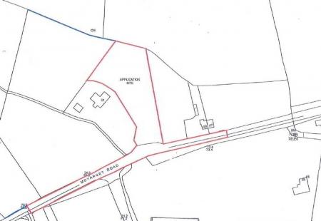
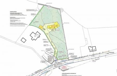
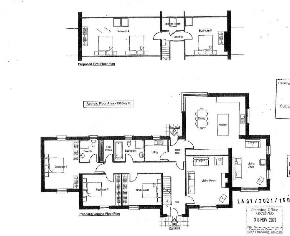
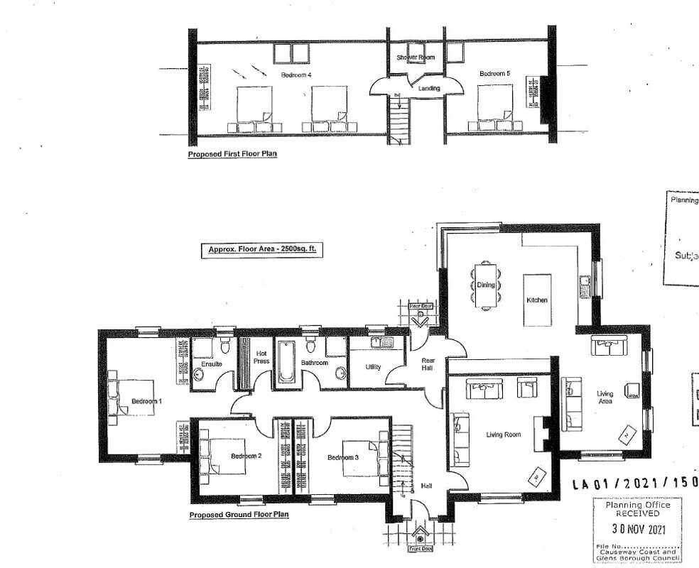
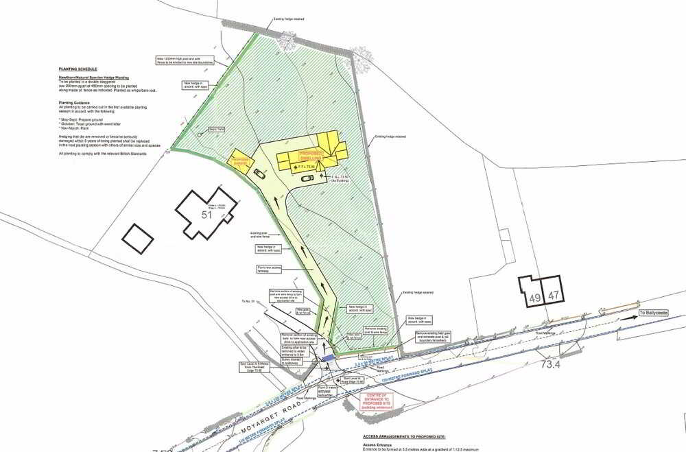
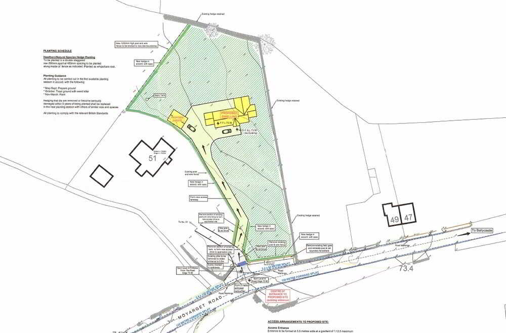
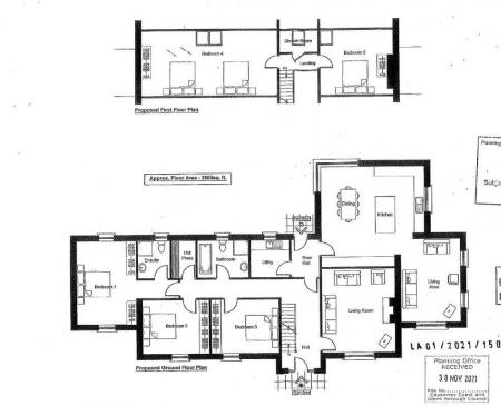
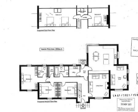
We are delighted to offer for sale a unique opportunity to purchase this rural building site located approximately 1/2 mile from the coastal town of Ballycastle on the Moyarget Road.  The site has full planning permission for a chalet bungalow with all necessary services located nearby and has the additional benefit of having picturesque countryside views of Knocklayde and its surroundings.  Seldom does an opportunity arise to purchase a building site in this location and early viewing is highly recommended to fully appreciate the site and its location.  Please contact us for further details including the planning permission.

Property Ref: ST0608216_741322

Share:

Similar Properties

Field (2), Boleran Road, Garvagh

Farm Land | £95,000

Site 43 + Site 45 Drumnamallaght, Ballymoney

Plot | Offers in excess of £95,000

Blackberry Cottage, 56 Moneydig Road, Garvagh, Coleraine

1 Bedroom Detached Bungalow | Offers in excess of £95,000

11 Carness Drive, Dunloy, Ballymoney, Ballymena

2 Bedroom Terraced Bungalow | Offers in region of £105,000

Land South Of, 33 Haw Road, Bushmills

Farm Land | Offers in excess of £105,000

19 Andena Grange ( Off Ballymoney Road), Ballymena

2 Bedroom Flat | Offers in excess of £105,000

McAfee Properties (Ballymoney)

Ballymoney, Ballymoney, County Antrim, BT53 6AN

028 2766 7676

How much is your home worth?

Use our short form to request a valuation of your property.

Request a Valuation

Mortgage Calculator

Amount Borrowed: £
Total Amount Repayable: £
Total Monthly Payment: £
©2026 The Guild of Property Professionals. All rights reserved. Terms and Conditions | Privacy Policy | Cookie Policy | Complaints Policy | Members Login
The Guild of Property Professionals Trading Address: 121 Park Lane, London W1K 7AG. GPEA Limited. Registered in England & Wales.  Company No: 02819824.  Registered Office Address: 2 St. Stephen's Court, St. Stephen's Road, Bournemouth, Dorset, England, BH2 6LA.  VAT Registration No: 576 8795 61
Book a Property Valuation Update Cookies Preferences