New Build Redford Road, Ballymena, BT43 5PR

Asking Price
£625,000
SSTC
This property listing is now SSTC

5 Bedroom Detached House for sale in Ballymena

2 5 1
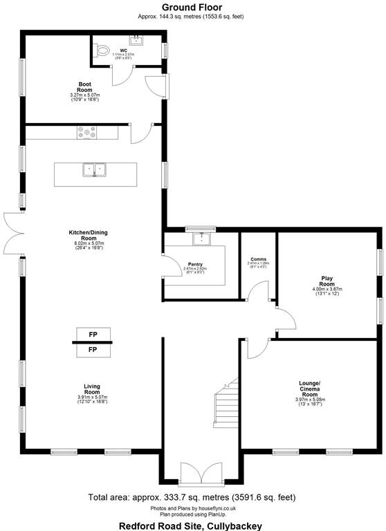
  • New Build detached house
  • Four bedrooms (two with en-suite and three with dressing room)
  • Principle bedroom with en-suite shower room and dressing room
  • Three reception rooms
  • Open plan kitchen/dining/living area
  • Walk-in pantry off kitchen
  • Boot room with WC
  • First floor shower room
  • First floor utility room
  • Oil fired central heating system (connected to smartphone)

This exceptional new build detached residence seamlessly combines generous proportions, high-end finishes and a great location. Nestled on a private plot with unrivalled views and a peaceful setting that enjoys a distinctly rural feel, the property is remarkably just a short drive to Cullybackey Village – offering the perfect balance of country living with urban convenience.
This site has a rural setting; however, it is only one and a half miles from Ballymena, half a mile from the dual carriageway leading to Belfast and Airports. Two miles from many schools.
Finished to an impeccable standard throughout, the home boasts approximately 3591.6 sq ft of elegant and well-considered accommodation. At its heart lies a beautiful in-frame kitchen, designed for both function and style, complete with a walk-in pantry – ideal for modern family living and entertaining.
Key features include a spacious first-floor utility room, offering practical day-to-day convenience, and multiple reception spaces that cater to both relaxed family living and formal entertaining. Each room has been finished with an eye for detail, showcasing quality materials and craftsmanship throughout.
This is a truly special home that must be viewed to be fully appreciated. Contact Homes Independent to register your interest.

Property Ref: HIBM_HIBM4889

Share:

Similar Properties

Slievenaghy Road, Ballymoney, BT53 7EA

4 Bedroom Detached House | Offers in region of £595,000

Homes Independent are thrilled to list for sale this stunning modern detached family home with annex, set on a private s...

New Build 240m SW of 5 Pollee Road, Broughshane, BT43 7HS

6 Bedroom Detached House | Offers in region of £575,000

Homes Independent are excited to introduce 5 Pollee Road, Broughshane — an exceptional new build offering generous accom...

Ballee Road East, Ballymena, BT42 3HG

4 Bedroom Detached House | Offers in region of £475,000

Constructed in 2022, this exceptional detached residence blends modern design with practical family living. Located with...

Old Galgorm Road, Ballymena, BT42 1AL

4 Bedroom Detached House | Offers in region of £670,000

Homes Independent are thrilled to present for sale 3a Old Galgorm Road, a stunning detached family home set within one o...

Land at Ballycregagh Road, Cloughmills

Plot | Offers in region of £750,000

A superb opportunity to acquire a well-located parcel of land situated on the Ballycregagh Road, adjacent to Church Hill...

Homes Independent (Ballymena)

Ballymena, Antrim, BT43 5AA

028 2565 11 11

How much is your home worth?

Use our short form to request a valuation of your property.

Request a Valuation

Mortgage Calculator

Amount Borrowed: £
Total Amount Repayable: £
Total Monthly Payment: £
©2026 The Guild of Property Professionals. All rights reserved. Terms and Conditions | Privacy Policy | Cookie Policy | Complaints Policy | Members Login
The Guild of Property Professionals Trading Address: 121 Park Lane, London W1K 7AG. GPEA Limited. Registered in England & Wales.  Company No: 02819824.  Registered Office Address: 2 St. Stephen's Court, St. Stephen's Road, Bournemouth, Dorset, England, BH2 6LA.  VAT Registration No: 576 8795 61
Book a Property Valuation Update Cookies Preferences