Opp, 20 Taughey Road, Ballymoney

Offers in excess of
£75,000
Under Offer
This property listing is now Under Offer

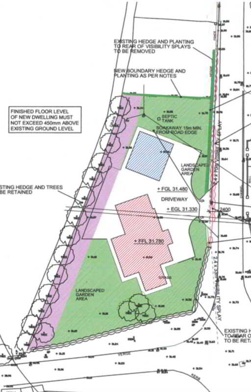
Plot for sale in Ballymoney

  • A superb rural building plot.
  • Full planning permission (LA01/2019/0495/RM) granted for a super chalet bungalow and a garage.
  • Also a mature plot with existing boundary foliage.
  • All services on site or adjacent to the same.
  • Property designed to avail of the afternoon and evening sunshine.
  • Rural yet conveniently situated close to the main A26 Frosses Road.
  • Also only a few minutes drive to Ballymoney or Coleraine.
  • Viewing therefore highly recommended.

We are delighted to offer for sale this superb building plot – occupying a fantastic location on the outskirts of Ballymoney and with full planning permission granted. All the services are also on site and as such we highly recommend early viewing to fully appreciate this choice building plot and its fantastic situation.

Property Ref: ST0608216_980626

Share:

Similar Properties

30m South West Of, 77 Moneybrannon Road, Aghadowey, Coleraine

2 Bedroom Detached House | Offers in excess of £75,000

Site Adj To, 23 Lisnagat Road, Mosside, Ballymoney

Plot | Offers in region of £74,950

28 Main Street, Ballymoney

Shop | Offers in region of £79,950

Adj To, 108 Tullaghans Road, Dunloy, Ballymena

Plot | Offers in region of £79,950

McAfee Properties (Ballymoney)

Ballymoney, Ballymoney, County Antrim, BT53 6AN

028 2766 7676

How much is your home worth?

Use our short form to request a valuation of your property.

Request a Valuation

Mortgage Calculator

Amount Borrowed: £
Total Amount Repayable: £
Total Monthly Payment: £
©2025 The Guild of Property Professionals. All rights reserved. Terms and Conditions | Privacy Policy | Cookie Policy | Complaints Policy | Members Login
The Guild of Property Professionals Trading Address: 121 Park Lane, London W1K 7AG. GPEA Limited. Registered in England & Wales.  Company No: 02819824.  Registered Office Address: 2 St. Stephen's Court, St. Stephen's Road, Bournemouth, Dorset, England, BH2 6LA.  VAT Registration No: 576 8795 61
Book a Property Valuation Update Cookies Preferences