Bloomfield Drive, Wynyard, TS22

£1,850pcm

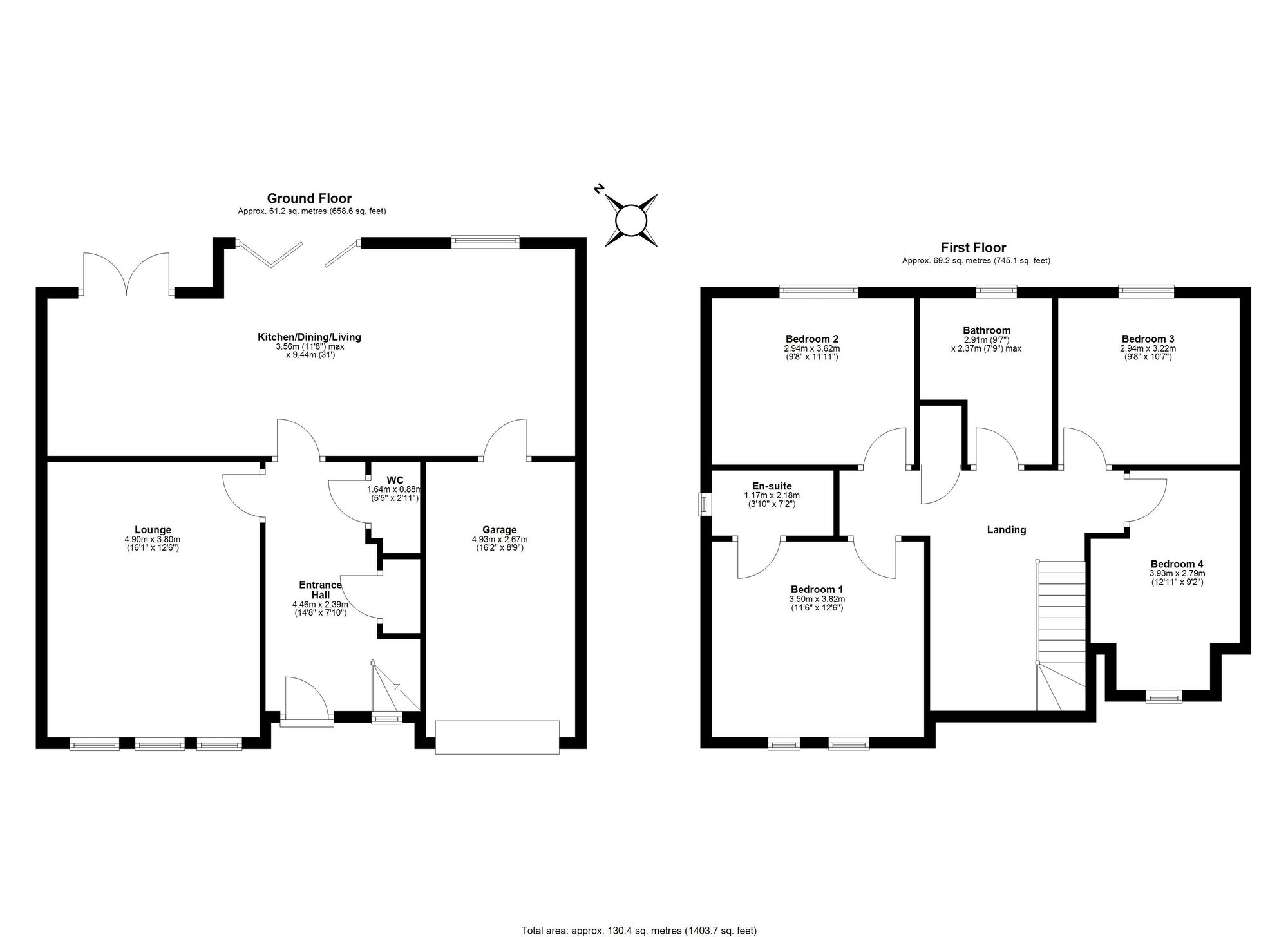
4 Bedroom Detached House for rent in Billingham

1 4 3
  • Four Bedroom Detached
  • Modern open plan kitchen/dining/living space
  • Built By Storey Homes
  • Ground Floor W/C, Family Bathroom & En-suite
  • Driveway & Electric Charging Point
  • Gas Central Heating & UPVC Double Glazing

Presenting this stunning four-bedroom detached house, ideally located in a sought-after residential area. Built by Storey Homes, this property offers a modern and spacious living experience, complemented by fantastic features and contemporary design.

Upon entering, you are welcomed by the well-appointed entrance hall leading to the ground floor w/c, lounge, and the heart of the home - a striking open plan kitchen/dining/living space. This impressive area is perfect for entertaining guests or enjoying quality family time, boasting an abundance of natural light.

The first floor accommodates a family bathroom and four generously-sized bedrooms, including a master bedroom with an en-suite bathroom. Every inch of this property exudes style and functionality, with gas central heating and UPVC double glazing ensuring comfort and energy efficiency.

Externally, this property offers a driveway with an electric charging point, catering to the needs of modern living.

A fantastic opportunity to own a high-quality home that is surrounded by various local amenities and excellent transport links. Don't miss out on this amazing opportunity - call now to arrange a viewing.

While we have made efforts to ensure the accuracy of the information provided in our sales particulars, please note that we have gathered this information from the seller. Should you require further details or clarification on any specific matter, we kindly request you to contact our office where we are ready to gather evidence or conduct further investigations on your behalf.

It is important to note that Northgate has not tested any of the services, appliances, or equipment within this property. Therefore, we strongly recommend that prospective buyers arrange for their independent surveys or service reports before finalising the purchase of the property.

Energy Efficiency Current: 84.0
Energy Efficiency Potential: 93.0

Important Information

  • This Council Tax band for this property is: E

Property Ref: 2f1dc8a5-08e6-468b-8da6-2d4506ee3789

Share:

Similar Properties

Dover Close, Billingham, TS23

3 Bedroom Semi-Detached House | £750pcm

Braemar Road, Billingham, TS23

3 Bedroom Terraced House | £750pcm

Sedgemoor Way, Billingham, TS23

3 Bedroom End of Terrace House | £750pcm

Consett Close, Stockton-On-Tees, TS19

1 Bedroom Flat | Offers in excess of £45,000

Mill Meadow Court, Stockton-On-Tees, TS20

2 Bedroom Apartment | Offers in excess of £70,000

Parklands Avenue, Billingham, TS23

3 Bedroom Semi-Detached House | Offers Over £80,000

Northgate Estate Agents (Billingham)

8 Town Square, Billingham, County Durham, TS23 2LY

01642 813 222

How much is your home worth?

Use our short form to request a valuation of your property.

Request a Valuation
©2025 The Guild of Property Professionals. All rights reserved. Terms and Conditions | Privacy Policy | Cookie Policy | Complaints Policy | Members Login
The Guild of Property Professionals Trading Address: 121 Park Lane, London W1K 7AG. GPEA Limited. Registered in England & Wales.  Company No: 02819824.  Registered Office Address: 2 St. Stephen's Court, St. Stephen's Road, Bournemouth, Dorset, England, BH2 6LA.  VAT Registration No: 576 8795 61
Book a Property Valuation Update Cookies Preferences