Budbury Place Bradford-On-Avon

Asking Price
£1,000,000
SSTC
This property listing is now SSTC

4 Bedroom Not Specified for sale in Bradford-On-Avon

2 4 2
  • Steeped In Character With Exposed Beams, Stonework, Wooden Framed Windows & Feature Fireplaces Throughout
  • Private & Matured Wraparound Gardens Featuring A Variety Of Flowers, Plants, Trees & Shrubs
  • Driveway Parking For Multiple Vehicles, Double Garage & Workshop
  • 4 Spacious Bedrooms & 2 Bathrooms, Ground floor Cloakroom & Utility Room
  • Dual Aspect Kitchen Diner Featuring Access To The Conservatory
  • Highly Regarded Location On The Bath Side Of Town, Close To Amenities & Walkable To Town
  • Grade II Listed, Detached Period Home
  • Reliable Vehicular Routes Into Bath

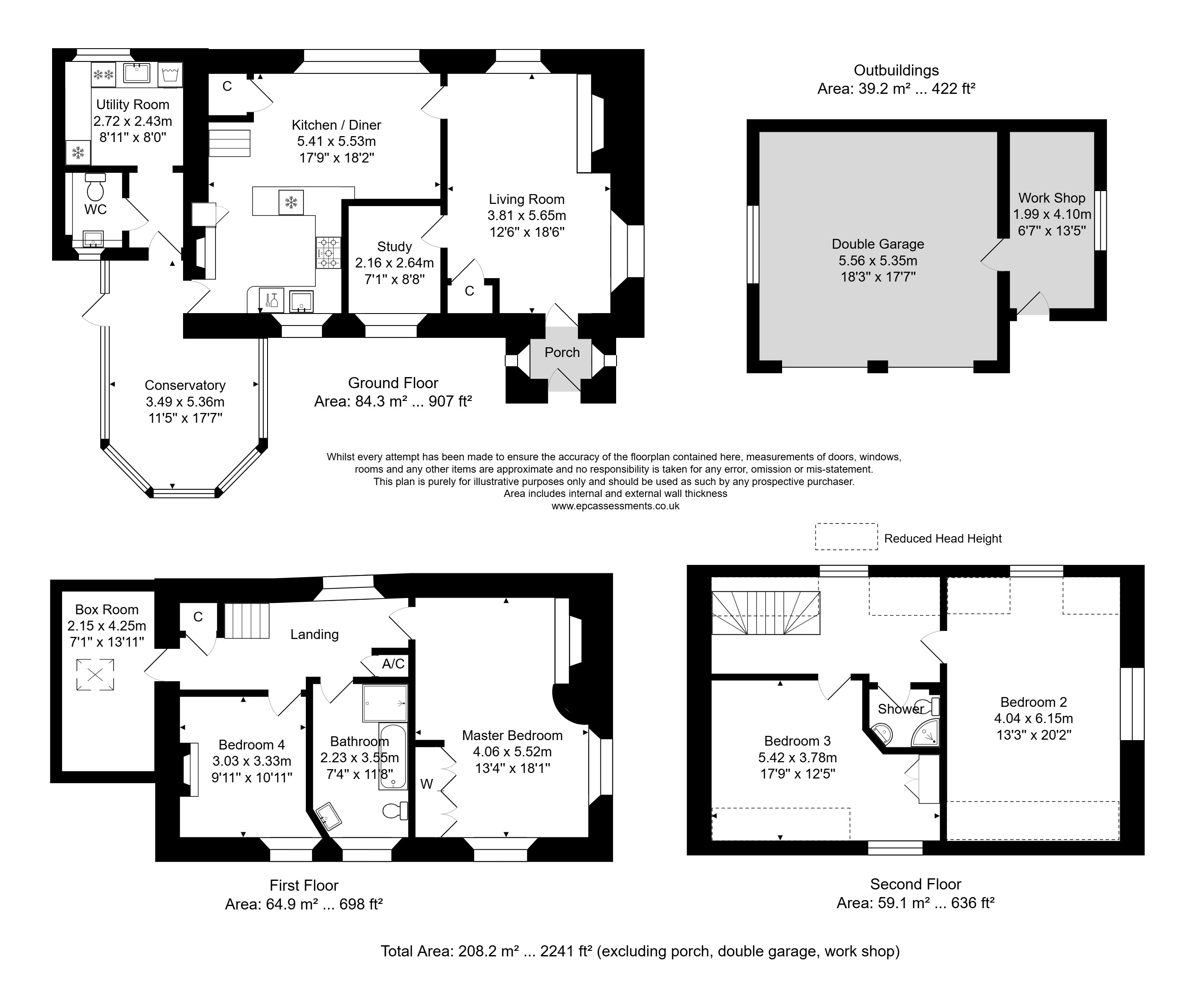
A handsome, detached Grade II Listed period home situated on a well-regarded road on the Bath side of Bradford-On-Avon, benefitting from a walkable distance to the town centre, railway station, local schooling as well as nearby amenities on the Winsley Road. The property occupies a spacious plot featuring mature wraparound gardens which feature a variety of flowers, plants, shrubs and trees. The garden is an incredibly tranquil setting which our vendors enjoy and spend hours taking in the leafy aspect all year round.
Internally the property features an abundance of charm throughout, with a wealth of period features on display - these can be found in the way of exposed stonework, wooden beams, feature fireplaces, wooden floorboards and wooden framed windows. Internally the property comprises a full length, dual aspect sitting room which is an incredibly cosy and inviting space which displays exposed beams, a characterful fireplace and a charming window seat! From the sitting room, access to the study and dining area can be found. The kitchen/diner occupies a central part of the home and also features a dual aspect, making this a wonderful space to enjoy at all times of the day, owing to its ability to soak up daylight. This part of the home features conservatory access which provides subsequent access to the garden, cloakroom and utility room.
The first floor accommodation takes the shape of two spacious bedrooms, a storage room and the large family bathroom. From the first floor landing, stairs to the second floor accommodation can be found which also comprises two bedrooms and a bathroom. Each bedroom offers generous proportions making this a very well balanced home which viewing of is highly recommended.

Important Information

  • This is a Freehold property.
  • This Council Tax band for this property is: F
  • This property is exempt from EPC Rating

Property Ref: DDB_DDB240056

Share:

Similar Properties

Middle Stoke Limpley Stoke

4 Bedroom Detached House | £850,000

Nestled into the hillside of this prime location on the outskirts of Bath and Bradford on Avon, Well House is an individ...

Winsley Road Bradford On Avon

4 Bedroom Detached Bungalow | Offers in region of £850,000

Nestled in a desirable neighbourhood, this charming detached bungalow presents a rare opportunity to own a spacious and...

Dovers Park Bathford

4 Bedroom Not Specified | Asking Price £750,000

Detached House. 4 Bedrooms. This stunning property boasts a large garden, modern kitchen, spacious living areas, and a p...

Davies & Davies (Bradford on Avon)

Bradford on Avon, Wiltshire, BA15 1JY

01225 867 555

How much is your home worth?

Use our short form to request a valuation of your property.

Request a Valuation

Mortgage Calculator

Amount Borrowed: £
Total Amount Repayable: £
Total Monthly Payment: £
©2025 The Guild of Property Professionals. All rights reserved. Terms and Conditions | Privacy Policy | Cookie Policy | Complaints Policy | Members Login
The Guild of Property Professionals Trading Address: 121 Park Lane, London W1K 7AG. GPEA Limited. Registered in England & Wales.  Company No: 02819824.  Registered Office Address: 2 St. Stephen's Court, St. Stephen's Road, Bournemouth, Dorset, England, BH2 6LA.  VAT Registration No: 576 8795 61
Book a Property Valuation Update Cookies Preferences