Cottage With Large Garden, Breage

Guide Price
£495,000

3 Bedroom Detached House for sale in Breage

2 3 1
  • GRADE II LISTED
  • THREE SPACIOUS BEDROOMS
  • SEPARATE DINING ROOM, COSY LOUNGE & STYLISH KITCHEN
  • FRONT GARDEN PLUS LARGE DETACHED GARDEN WITH SHED
  • PARKING FOR TWO CARS AT THE REAR
  • SOUGHT-AFTER LOCATION
  • NO ONWARD CHAIN
  • COUNCIL TAX BAND D
  • EPC - E - 43
  • FREEHOLD TENURE

This delightful Grade II listed property offers a perfect blend of historic character and modern living. Featuring three generously sized bedrooms, a separate dining room, a comfortable lounge, and a well appointed kitchen, this home provides ample space for family living and entertaining.

To the front, there is a level garden, a retreat for gardening enthusiasts. Across the shared gravel courtyard lies a large, detached garden with a shed, offering plenty of room to create your own private oasis, whether that's a vibrant vegetable patch, a relaxing seating area, or a play space for children.

Additional practical benefits include parking for two cars to the rear of the property, providing convenient access and ease for residents and guests alike.

Perfectly positioned and full of potential, this beautiful listed home is ready for you to make it your own.

Guide Price £495,000 -

Location - The village of Breage offers a real feeling of community having a great range of facilities and amenities. There is a Public House, Social Club, Church, Village Hall, Post Office with a shop, Play Park, as well as a Primary School. Breage is nestled within the heart of the beautiful Cornish countryside and surrounded by farmland, woods and nearby National Trust Estate home to Godolphin House, with many countryside walks including Godolphin Hill and Tregonning Hill both having stunning panoramic views over South West Cornwall. Conveniently situated for the towns of Helston and Penzance as well as the popular fishing village of Porthleven with its fantastic array of restaurants. There is good access to the nearby beaches on both the North and South Coast and South West Coast Path.

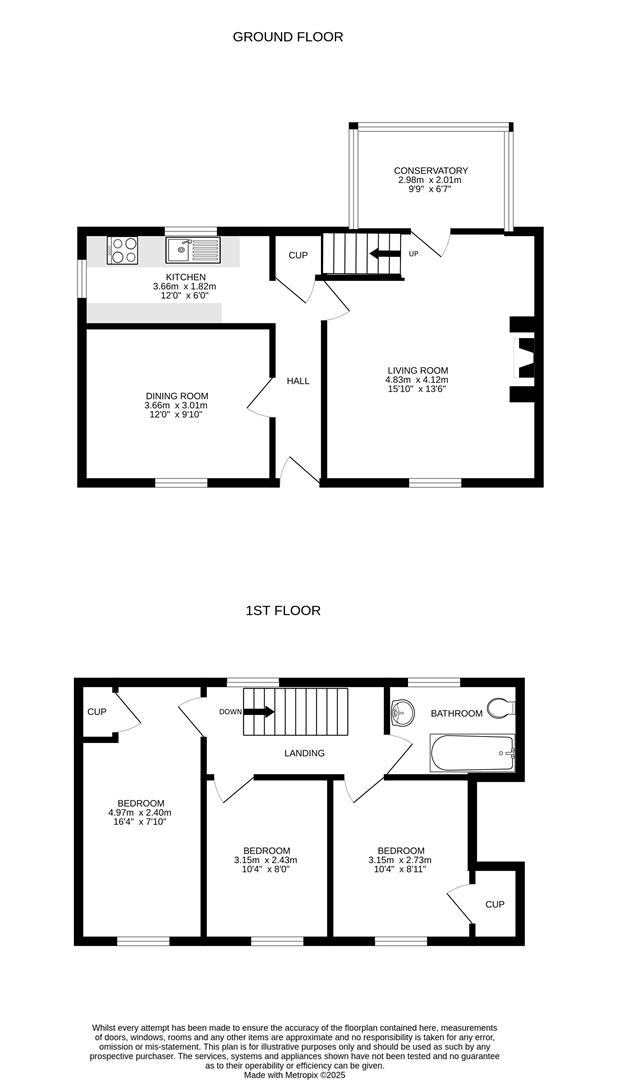
Accommodation - Kitchen
Dining room
Lounge
Conservatory

Upstairs to
Bedroom
Bedroom
Bedroom
Family Bathroom

Parking - There are two parking spaces behind the property.

Outside - The property features a level garden to the front of the home, ready for you to create your perfect outdoor space. Across the shared gravelled area, you'll find a large, detached garden, also level and full of potential. Whether you want to design a relaxing retreat, a vibrant vegetable patch, or a play area, both gardens provide ample opportunity to put your own stamp on them.

Services - Mains water, electricity and shared septic tank.

Agents Note - There is a right of way from the shared courtyard to the property.

Agents Note 1 - The property is grade two listed.

Rights Of Way - Pellor Cottage Benefits from an easement to maintain their oiler and oil tank

Council Tax Band D -

What3words - ///technical.save.cats

Anti Money Laundering Regulations - Purchasers - It is a legal requirement that we receive verified ID from all buyers before a sale can be instructed. We will inform you of the process once your offer has been accepted.

Proof Of Finances - Before agreeing a sale, we will require proof of your financial ability to purchase. We will inform you of what we require prior to agreeing a sale.

Broadband & Mobile Phone Coverage - To check the broadband coverage for this property please visit https://www.openreach.com/fibre-broadband. To check mobile phone coverage please visit https://checker.ofcom.org.uk/

Property Ref: 23459_34255228

Share:

Similar Properties

Stunning home with an independent annexe, St Ives

4 Bedroom Semi-Detached House | Guide Price £495,000

This stunning property offers a 3 in 1 combination that is almost impossible to find in St. Ives:THE HOUSE: A beautiful,...

Home with coastal views, Porthleven

3 Bedroom Terraced House | Guide Price £495,000

Set in an elevated location, this well maintained property is ideal for those seeking a coastal lifestyle. The upside do...

Helston, Stone fronted detached home

4 Bedroom Detached House | Guide Price £495,000

This attractive stone fronted four bedroom detached home offers spacious and flexible accommodation, ideally located wit...

Spacious detached bungalow with annexe, Leedstown

3 Bedroom Detached Bungalow | Guide Price £499,950

Situated on the outskirts of the popular village of Leedstown, this spacious detached bungalow offers versatile accommod...

Spacious home with stunning views, Treen

4 Bedroom Detached House | Guide Price £500,000

OPEN HOUSE - FRIDAY 20TH JUNE FROM 3PM UNTIL 4PM. ANY INTERESTED APPLICANTS WILL NEED TO CONTACT OUR OFFICE BEFORE ATTEN...

Spacious Home with Double Garage, Mullion

3 Bedroom Bungalow | Guide Price £500,000

Situated on a sought after cul-de-sac in Mullion, this three bedroom detached bungalow offers the perfect blend of coast...

The Mather Partnership (Helston)

Helston, Cornwall, TR13 8AA

01326 565016

How much is your home worth?

Use our short form to request a valuation of your property.

Request a Valuation

Mortgage Calculator

Amount Borrowed: £
Total Amount Repayable: £
Total Monthly Payment: £
©2025 The Guild of Property Professionals. All rights reserved. Terms and Conditions | Privacy Policy | Cookie Policy | Complaints Policy | Members Login
The Guild of Property Professionals Trading Address: 121 Park Lane, London W1K 7AG. GPEA Limited. Registered in England & Wales.  Company No: 02819824.  Registered Office Address: 2 St. Stephen's Court, St. Stephen's Road, Bournemouth, Dorset, England, BH2 6LA.  VAT Registration No: 576 8795 61
Book a Property Valuation Update Cookies Preferences