** SIGNATURE HOME ** Ongar Road, Kelvedon Hatch, Brentwood

Guide Price
£1,750,000
SSTC
This property listing is now SSTC

5 Bedroom Detached House for sale in Brentwood

4 5 3
  • 5 BEDROOM DETACHED HOUSE
  • BELIEVED TO BE DATING BACK TO THE 1700'S
  • 3 BATHROOMS & 2 GROUND FLOOR CLOAKROOMS
  • EXTENSIVE ACCOMMODATION - 3818 SQ. FT
  • KITCHEN / BREAKFAST ROOM & LAUNDRY ROOM
  • DETACHED OUTBUILDING / GARAGE
  • MATURE PLOT IN THE REGION OF 1.45 ACRES (STLS)
  • HEATED OUTDOOR SWIMMING POOL

Believed to date back to the 1700's and once home to three Indian Princesses is 'Kumra Lodge' an impressive five, double bedroom, detached family home which originally formed part of the historical Kelvedon Hall estate. This wonderful home, set in 1.45 acres of land (stls) has a pleasant outlook to the front over Bentley Golf Course and backs onto field to the side and the rear, and there is even a heated swimming pool set in the grounds. The property offers extensive accommodation of around 3818 sq.ft, plus there is annex potential by utilizing the detached outbuilding / garage. In addition to the garage, there is further parking available on a large a large loose stone driveway to the front which is set behind gates. Conveniently located, 'Kumra Lodge' is just a short drive into Brentwood and Shenfield Town Centres and being within walking distance of Kelvedon Hatch Village, we urge interested parties to view at their earliest convenience to avoid any disappointment.

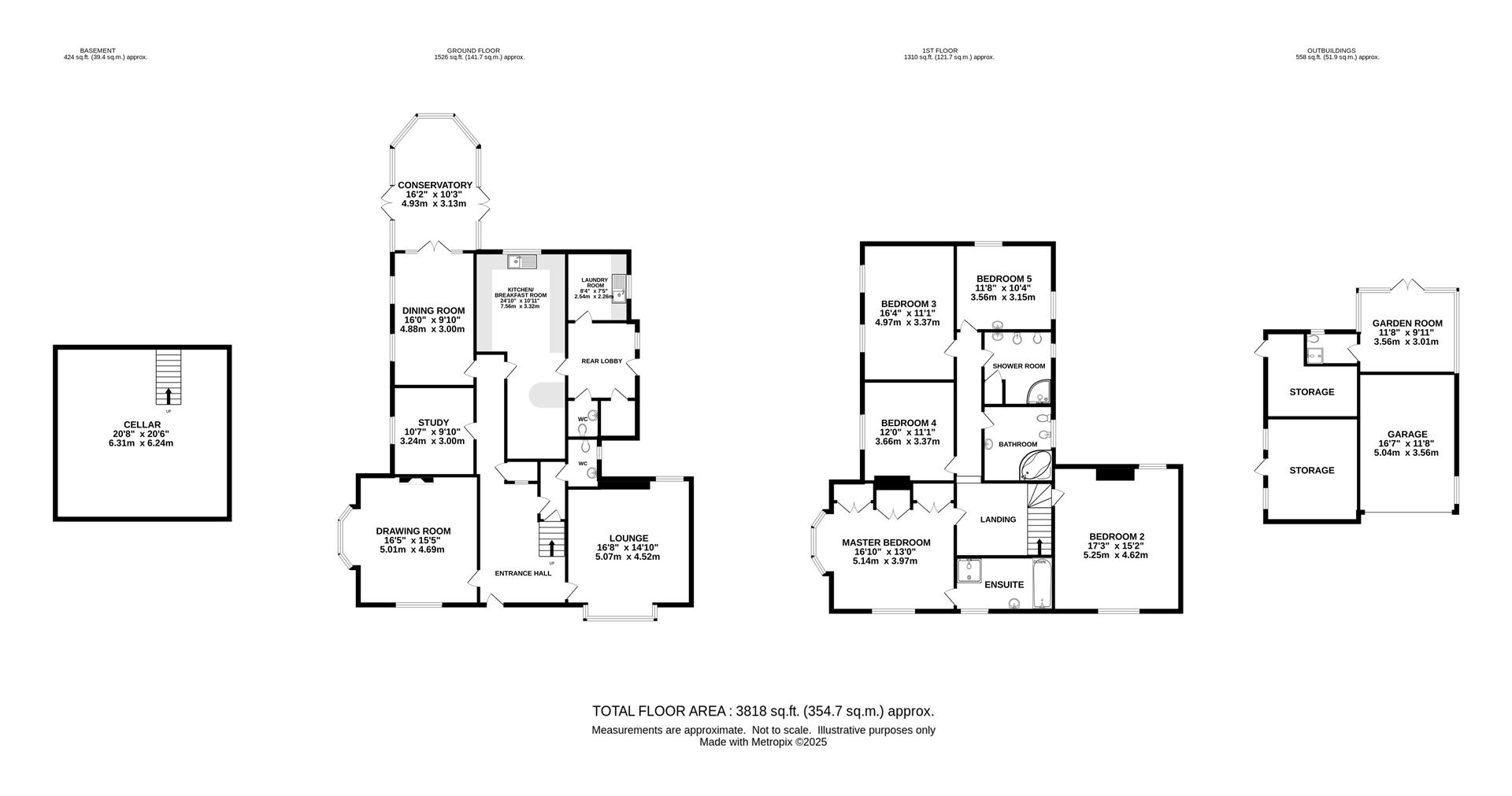
An impressive reception hallway has stairs rising to the first floor and doors into all three receptions, the study, into the kitchen/breakfast room and to an inner lobby which in turns gives access to one of the ground floor cloakrooms. Sitting at the front of the property are the two main reception rooms, both bright and spacious rooms with feature fireplaces and high ceilings. There is a further reception which serves as a dining room, this room has double doors which open into a lovely conservatory with windows to all aspect and two sets of French doors giving access into the garden. For anyone looking for a quiet space to work from home there is a bright study. From the hallway you have access to the kitchen/breakfast room, where you have wall and base units with glass display cabinets and end shelving providing ample storage options. Integrated appliances include a double oven, gas hob with extractor above, dishwasher and fridge/freezer. There is an additional inner lobby off the kitchen where you have a separate laundry room, a further ground floor cloakroom, and access into the garden.

Rising to the first floor you will find five, double bedrooms. The master bedroom, a lovely bright room with large bay window to the side and further window to the front aspect, has a range of built-in cupboards to one wall and access into an en-suite bath/shower room. On this level there are two further family washrooms, a shower room and a bathroom, both with a w.c., wash hand basin and bidet.

As previously mentioned, the property sits on a wonderful, mature plot measuring in the region of 1.45 acres (stls) laid to lawn and with an extensive collection of ornamental shrubs. The plot backs and sides onto farmland and to the front it overlooks Bentley Golf Course, perfect for the keen golfer. Within the rear garden you also have a heated swimming pool with retractable cover. There is excellent parking available on a spacious loose stone driveway to the front which is set behind gates, and there is also a detached garage.

Attached to the garage are two separate storage rooms, a lovely garden room with French doors, and high vaulted ceiling, which also has access to a fully tiled shower room with w.c., this set up would be ideal for anyone looking for a home with annex potential.

Reception Entrance Hallway - Stairs to first floor. Doors to sitting room, drawing room, study, dining room and kitchen/breakfast room.

Ground Floor Cloakroom - Accessible from a small inner lobby off the hallway. Wash hand basin and w.c.

Sitting Room - 4.57m x 4.52m (15' x 14'10) - Bay window to front aspect. Feature fireplace with log burning stove. Further window to rear aspect.

Drawing Room - 5.00m x 4.70m (16'5 x 15'5) - Bay window to side aspect and further window to front. Feature fireplace.

Study - 3.23m x 2.97m (10'7 x 9'9) - Window to side aspect.

Dining Room - 4.88m x 3.00m (16' x 9'10) - Windows to side aspect. Double doors through :

Conservatory - 4.93m x 3.12m (16'2 x 10'3) - Windows to all aspects and two sets of French doors to each side giving access to the garden.

Kitchen / Breakfast Room - 7.57m x 3.33m (24'10 x 10'11) - Fitted in a range of wooden wall and base units with glass display cabinets and end shelving. Integrated double oven and gas hob with extractor above, dishwasher and fridge/freezer. Door to :

Inner Lobby - Door to exterior and further doors to the laundry room, cloakroom and to a large storage cupboard,

Ground Floor Cloakroom - Wash hand basin and w.c.

Laundry Room - 2.54m x 2.26m (8'4 x 7'5) - Sink unit.

First Floor Landing -

Master Bedroom - 5.08m x 3.78m (16'8 x 12'5) - Extensive range of fitted wardrobes to one wall. Bay window to side and further window to front aspect. Door to :

En-Suite Bath/Shower Room -

Bedroom Two - 5.28m x 4.62m (17'4 x 15'2) - Window to front and rear aspect. Feature fireplace. High ceiling with cross beams.

Bedroom Three - 4.98m x 3.12m (16'4 x 10'3) - Two windows to side aspect.

Bedroom Four - 3.66m x 3.35m (12' x 11) - Window to side aspect.

Bedroom Five - 3.56m x 3.12m (11'8 x 10'3) - Windows to side and rear aspect. Wash hand basin.

Shower Room - Corner shower cubicle, wash hand basin, w.c and bidet. Fully tiled.

Bathroom - Fully tiled. Corner bath, wash hand basin, w.c. and bidet.

Exterior - Plot In The Region Of 1.45 Acres (Stls) - Mature plot mainly laid to lawn. Front of the property is laid to loose stone providing excellent off street parking.

Heated Outdoor Swimming Pool - With retractable cover.

Detached Outbuilding / Garage - Outbuilding / Garage with two separate, spacious storage rooms, garden room with fully tiled shower room adjacent. Excellent annex potential.

Agents Note - Fee Disclosure - As part of the service we offer we may recommend ancillary services to you which we believe may help you with your property transaction. We wish to make you aware, that should you decide to use these services we will receive a referral fee. For full and detailed information please visit 'terms and conditions' on our website www.keithashton.co.uk

Property Ref: 34074502

Share:

Similar Properties

Chivers Road, Stondon Massey, Brentwood

3 Bedroom Detached House | Guide Price £1,600,000

***Work currently being completed to add an En-Suite and Dressing Room to the first floor forming a Master Bedroom***We...

** SIGNATURE HOMES ** Chivers Road, Stondon Massey, Brentwood

5 Bedroom Detached House | Offers in excess of £1,500,000

Sitting on a rural plot in the region of 1 acre (stls) is this fabulous FIVE DOUBLE, BEDROOM DETACHED BUNGALOW which ben...

** SIGNATURE HOMES ** Loves Green, Highwood, Chelmsford

4 Bedroom Detached House | Guide Price £1,445,000

On a plot of just under ? an acre (0.48) stls and being located in the pleasant semi-rural village of Loves Green and wi...

Dagwood Lane, Doddinghurst

4 Bedroom Detached House | £1,900,000

Welcome to The Sherwood's, a prestigious enclave of 15 luxurious detached homes nestled in the idyllic rural village of...

** SIGNATURE HOME ** Hay Green Lane, Hook End, Brentwood

6 Bedroom Detached House | Guide Price £2,250,000

Blackmore Mill House is a fantastic opportunity to purchase a gated, family estate, sitting on a spacious plot of around...

Keith Ashton Estates - Village Office (Kelvedon Hatch)

38 Blackmore Road, Kelvedon Hatch, Essex, CM15 0AT

01277 375757

How much is your home worth?

Use our short form to request a valuation of your property.

Request a Valuation

Mortgage Calculator

Amount Borrowed: £
Total Amount Repayable: £
Total Monthly Payment: £
©2026 The Guild of Property Professionals. All rights reserved. Terms and Conditions | Privacy Policy | Cookie Policy | Complaints Policy | Members Login
The Guild of Property Professionals Trading Address: 121 Park Lane, London W1K 7AG. GPEA Limited. Registered in England & Wales.  Company No: 02819824.  Registered Office Address: 2 St. Stephen's Court, St. Stephen's Road, Bournemouth, Dorset, England, BH2 6LA.  VAT Registration No: 576 8795 61
Book a Property Valuation Update Cookies Preferences