** SIGNATURE HOME ** Hay Green Lane, Hook End, Brentwood

Guide Price
£2,250,000

6 Bedroom Detached House for sale in Brentwood

6
  • FAMILY ESTATE - IN EXCESS OF 5000 SQ.FT
  • MAIN HOUSE & 3 x SELF-CONTAINED ANNEX BUILDINGS
  • EXTENSIVE PARKING & DOUBLE GARAGE
  • FABULOUS VIEWS ACROSS OPEN COUNTRYSIDE
  • GYM / SUMMER HOUSE
  • 3.421 ACRE PLOT (STLS)
  • PLANNING PASSED FOR A DOUBLE STORY EXTENSION TO THE MAIN RESIDENCE
  • 6 BEDROOMS IN TOTAL

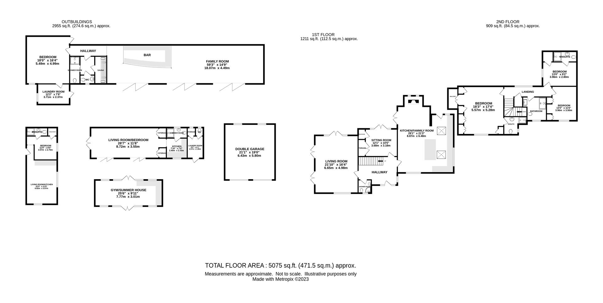
Blackmore Mill House is a fantastic opportunity to purchase a gated, family estate, sitting on a spacious plot of around 3.421 acres (stls) and with accommodation which totals around 5075 of sq.ft. Consisting of a large, three-bedroom detached house, with en-suites to two of the bedrooms and three spacious reception rooms which include a fabulous kitchen/family room, in addition to three separate self-contained, detached annexes, a gym/summer house and a double garage, all set in well-tended grounds and being surrounded by open countryside to all aspects. Whilst the property is considered to be in rural location, viewers will note that it is just a short drive of around 4 miles into Brentwood Town Centre as well as being only 5 miles to Shenfield Town Centre where both offer a good selection of high street shops and well-regarded schooling . Both also benefit from Mainline Railway Stations which operate the recently opened Elizabeth Line in to London and Heathrow Airport. Viewers are urged to view at their earliest convenience to fully appreciate all that this wonderful property has to offer.

The main house has a large entrance hall with flagstone flooring which extends to all rooms on the ground floor. There is a large understairs storage cupboard and doors into all rooms. The living room benefits from having three sets of French doors, to two aspects taking in views of the gardens and having direct access onto the patio areas. There is a further siting room, again with French doors to the garden. The heart of the main house is most definitely the kitchen / family room which has a lovely bespoke kitchen, fitted with wooden wall and base units with polished granite worksurfaces and there is also a central island unit. Integrated appliances include double ovens, gas hob with extractor above and there is ample space for freestanding appliances. Rising to the first floor there are three double bedrooms, all with built-in storage. Bedrooms one and two have en-suite shower rooms, and bedroom one further benefits from a lovely balcony with views over the gardens. There is also a separate family bathroom on this level. It is also worth noting that planning permission has been passed to extend the main residence adding a reception room to the ground floor and further bedroom with en suite to the first floor.

As previously mentioned, included in this sale are three, self-contained, detached annexes. Each annex is of a good size, and each has as a minimum, bedroom space, living area and shower room, both en-suite and separate. Two have separate laundry rooms and there is a separate fully fitted kitchen in one of the others. The largest annexe features a fantastic family room of almost 60' in length where you will find a fabulous bar area with extensive seating, there is also space for a pool table, whilst to one end of the room there is a media wall with ample space for seating. This annex also features a separate sauna and separate w.c with wash hand basin. A spacious gym/summer house of some 25' in length has two sets of French doors to the exterior and features a fully fitted kitchen area, plus a free-standing bath.

As previously mentioned, this fabulous family estate sits in grounds of around 3.421 acres (stls) which includes extensive parking to the front, including a double garage all set behind double wooden gates. There are several large patio areas within the plot where can you sit and relax and take in views of the gardens and fields beyond.

Main House -

Spacious Entrance Hall - Stairs to first floor. Large under stairs storage cupboard.

Ground Floor Shower Room - Corner shower cubicle, wash hand basin and w.c.

Living Room - 6.65m x 4.98m (21'10 x 16'4) - Three sets of French doors to two aspects. Fireplace with log burning stove.

Sitting Room - 3.68m x 3.18m (12'1 x 10'5) -

Kitchen / Family Room - 8.86m x 6.48m (29'1 x 21'3) - French doors into rear garden. Bespoke fitted kitchen with wooden wall and base units, integrated appliances . Kitchen area has a high, pitched ceiling with 'Velux' roof lights. Brick recess/alcove.

First Floor Landing - Doors to all rooms.

Master Bedroom - 5.56m x 5.28m (18'3 x 17'4) - Excellent storage, fitted wardrobes to one wall. French doors onto balcony with views over the garden and fields beyond. Door to :

En-Suite Shower Room - Shower cubicle, w.c. and wash hand basin.

Bedroom - 3.96m x 2.79m (13' x 9'2) - Built-in storage cupboard. Door to :

En-Suite Shower Room - Shower cubicle, w.c. and wash hand basin.

Bedroom - 3.96m x 3.51m (13' x 11'6) - Built-in storage cupboards.

Family Shower Room - Fully tiled. Fitted in a four piece suite, comprising: shower cubicle, w.c., bidet and wash hand basin.

1) Annex -

Family Room - 18.06m x 4.50m (59'3 x 14'9) - Fabulous bar area with polished quartz bar top and extensive seating. Three sets of bi-folding doors. Hallway through to :

Bedroom - 5.49m x 4.98m (18' x 16'4) - Door to :

Laundry Room - 3.71m x 2.36m (12'2 x 7'9) - Door to exterior.

Door To Inner Lobby - Doors to shower room, separate w.c. and sauna room.

Shower Room - Shower cubicle and wash hand basin

Separate Wc -

Sauna -

2) Annex -

Bedroom - 3.58m x 2.74m (11'9 x 9) - Built-in cupboard, Door to :

En-Suite Shower Room - Shower cubicle, wash hand basin and w.c.

Living Room / Kitchen - 6.83m x 3.71m (22'5 x 12'2) - Double aspect windows.

3) Annex -

Living Room / Bedroom - 8.71m x 3.56m (28'7 x 11'8) - French doors and two sets of bi-folding doors to the exterior. Built-in storage. Open through to :

Kitchen - 2.39m x 2.34m (7'10 x 7'8) - Door to :

Shower Room - Shower cubicle, w.c. and wash hand basin.

Exterior - Laundry Room - 2.51m x 1.85m (8'3 x 6'1) - Built-in storage. Door to :

Separate W..C -

Gym / Summer House - 7.77m x 3.02m (25'6 x 9'11) - Fitted kitchen area with wall and base units. Oven, hob and extractor. Free standing bath. Two sets of French doors to exterior.

Double Garage - 6.43m x 5.79m (21'1 x 19') -

Overall Plot Size - 3.421 Acres (Stls) - Extensive driveway allowing for ample parking. Feature central water fountain.

Property Ref: 59223_34368873

Share:

Similar Properties

** SIGNATURE HOME ** Ongar Road, Kelvedon Hatch, Brentwood

5 Bedroom Detached House | Guide Price £1,750,000

Believed to date back to the 1700's and once home to three Indian Princesses is 'Kumra Lodge' an impressive five, double...

Chivers Road, Stondon Massey, Brentwood

3 Bedroom Detached House | Guide Price £1,600,000

We are delighted to bring to market this truly unique and luxurious property, sitting on a private plot of around 0.41 a...

** SIGNATURE HOMES ** Doddinghurst Road, Doddinghurst, Brentwood

5 Bedroom Detached Bungalow | Guide Price £1,595,000

Tucked away in a quiet and private lane in Wyatts Green and sitting on a generous plot approaching an acre is this uniqu...

Keith Ashton Estates - Village Office (Kelvedon Hatch)

38 Blackmore Road, Kelvedon Hatch, Essex, CM15 0AT

01277 375757

How much is your home worth?

Use our short form to request a valuation of your property.

Request a Valuation

Mortgage Calculator

Amount Borrowed: £
Total Amount Repayable: £
Total Monthly Payment: £
©2025 The Guild of Property Professionals. All rights reserved. Terms and Conditions | Privacy Policy | Cookie Policy | Complaints Policy | Members Login
The Guild of Property Professionals Trading Address: 121 Park Lane, London W1K 7AG. GPEA Limited. Registered in England & Wales.  Company No: 02819824.  Registered Office Address: 2 St. Stephen's Court, St. Stephen's Road, Bournemouth, Dorset, England, BH2 6LA.  VAT Registration No: 576 8795 61
Book a Property Valuation Update Cookies Preferences