**SIGNATURE HOME** Ashwells Road, Pilgrims Hatch, Brentwood

Offers in excess of
£1,250,000

5 Bedroom Detached House for sale in Brentwood

3 5 4
  • IMPRESSIVE DETACHED FAMILY HOME
  • BEAUTIFULLY PRESENTED THROUGHOUT
  • FOUR BEDROOMS
  • THREE BATHROOMS
  • SELF CONTAINED ANNEX
  • UNDERFLOOR HEATING
  • 0.4 ACRE PLOT
  • HIGHLY REGARDED SCHOOLS NEARBY

We are delighted to present this impressive, detached family home, set on a generous plot bordering Bentley Golf Club, offering pleasant views across the course.

Beautifully presented throughout, the property provides bright, spacious, and versatile family living accommodation. The main house features four well-proportioned bedrooms and three bathrooms, complemented by a purpose-built self-contained annex - ideal for guests or extended family.

Nestled at the end of a country lane, which also serves as a bridleway, this home enjoys a tranquil setting with picturesque surroundings. Despite its idyllic location, it remains conveniently close to highly regarded local schools, including Bentley St Paul's C of E Primary School, and is just a short drive from Brentwood High Street and the mainline station, offering excellent links into London and beyond.

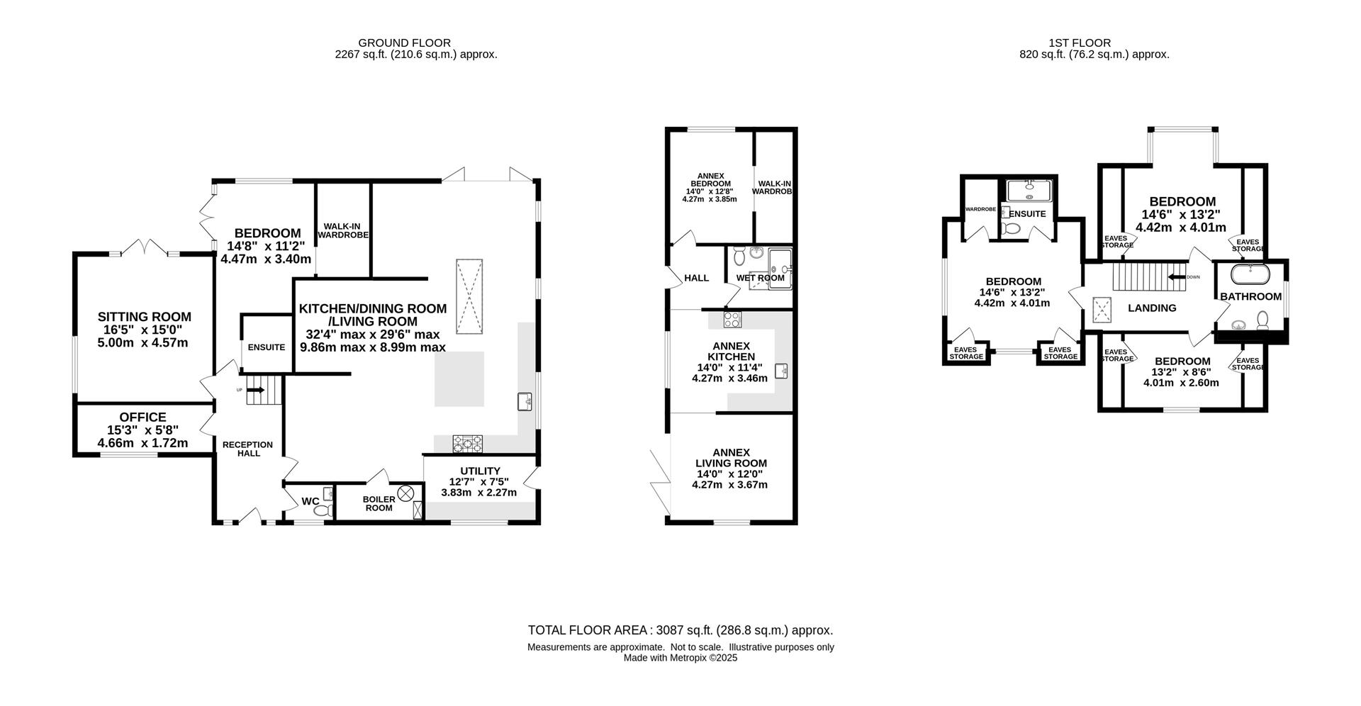
The internal layout begins with a welcoming and elegant reception hall that immediately sets the tone for this stylish and well-appointed home. To the rear, the main open-plan living area offers a bright, spacious environment featuring a beautifully designed kitchen, a dining area, and a comfortable lounge space with bi-fold doors opening onto the rear garden - creating a perfect setting for family life and entertaining. From here, there is access to a practical utility room and a separate boiler room. A further sitting room provides a cosy space to relax and unwind, with French doors leading directly to the garden. To the front of the property, you'll find a well-proportioned home office and a ground-floor cloakroom. Also on this level is a generous double bedroom with French doors to the garden, a walk-in wardrobe, and an ensuite shower room - ideal for guests or multigenerational living.

Ascending to the first floor, the landing leads to three double bedrooms, each offering useful eaves storage. One of these enjoys the benefit from a sleek ensuite shower room and a built-in wardrobe, while a beautifully appointed family bathroom completes the accommodation on this floor.

Externally, the property enjoys a generous plot featuring a large rear lawn bordered by mature trees, creating a private and tranquil setting. The front of the home offers a shingled driveway with a raised pond and ample parking for multiple vehicles.

Adding further appeal, the property also includes a purpose-built detached annex comprising a spacious living room, modern kitchen, wet room, and a comfortable double bedroom- perfect for guests, extended family, or use as an independent living space.

Reception Hall -

Kitchen/Dining/Living Room - 9.86 x 8.99 (32'4" x 29'5") -

Sitting Room - 5.00 x 4.57 (16'4" x 14'11") -

Office - 4.66 x 1.72 (15'3" x 5'7") -

Utility - 3.83 x 2.27 (12'6" x 7'5") -

Bedroom - 4.47 x 3.40 (14'7" x 11'1") -

Ensuite -

Walk-In Wardrobe -

Boiler Room -

Wc -

First Floor Landing -

Bedroom - 4.42 x 4.01 (14'6" x 13'1") -

Ensuite -

Bedroom - 4.42 x 4.01 (14'6" x 13'1") -

Bedroom - 4.01 x 2.60 (13'1" x 8'6") -

Bathroom -

Annex Living Room - 4.27 x 3.67 (14'0" x 12'0") -

Annex Kitchen - 4.27 x 3.46 (14'0" x 11'4") -

Annex Bedroom - 4.27 x 3.85 (14'0" x 12'7") -

Walk-In Wardrobe -

Wet Room -

Agents Note - As part of the service we offer we may recommend ancillary services to you which we believe may help you with your property transaction. We wish to make you aware, that should you decide to use these services we will receive a referral fee. For full and detailed information please visit 'terms and conditions' on our website www.keithashton.co.uk

Property Ref: 8226_34290202

Share:

Similar Properties

Park Road, Brentwood

4 Bedroom Detached House | Offers in excess of £1,200,000

Nestled in the desirable area of Park Road, Brentwood, this splendid detached house offers a perfect blend of comfort an...

South Avenue, Langdon Hills, Basildon

Land | Guide Price £1,150,000

We are delighted to present a rare and exceptional opportunity to acquire a prime plot of land with planning permission...

St. Johns Avenue, Warley, Brentwood

4 Bedroom Detached House | Guide Price £1,000,000

**Guide Price £1,000,000 - £1,050,000** Set within the highly sought-after Old Hartswood area of Warley, just a short st...

**SIGNATURE HOME** Brook Road, Brentwood

6 Bedroom Detached House | £1,295,000

Set back behind an expansive gravel driveway and framed by manicured landscaping, this exquisite detached, seven bedroom...

Brentwood Road, Herongate, Brentwood

5 Bedroom Detached House | £1,350,000

We are delighted to present this charming, detached family home, ideally located in the highly sought-after village of H...

** SIGNATURE HOMES ** Ingrave Road, Brentwood

4 Bedroom Detached House | Guide Price £1,400,000

We are delighted to introduce this exceptional detached family home, elegantly presented throughout and offering a spaci...

Keith Ashton Estates - Brentwood Office (Brentwood)

26 St. Thomas Road, Brentwood, Essex, CM14 4DB

01277 260858

How much is your home worth?

Use our short form to request a valuation of your property.

Request a Valuation

Mortgage Calculator

Amount Borrowed: £
Total Amount Repayable: £
Total Monthly Payment: £
©2025 The Guild of Property Professionals. All rights reserved. Terms and Conditions | Privacy Policy | Cookie Policy | Complaints Policy | Members Login
The Guild of Property Professionals Trading Address: 121 Park Lane, London W1K 7AG. GPEA Limited. Registered in England & Wales.  Company No: 02819824.  Registered Office Address: 2 St. Stephen's Court, St. Stephen's Road, Bournemouth, Dorset, England, BH2 6LA.  VAT Registration No: 576 8795 61
Book a Property Valuation Update Cookies Preferences