Three bedroom bungalow and annexe

Offers in excess of
£600,000

4 Bedroom Detached Bungalow for sale in Colchester

3 4 2
  • Detached bungalow and annexe Two reception rooms Study Three bedrooms One bedroomed annexe Plot of 0.38 acres (STS) Off road parking Full replacement dwelling approval

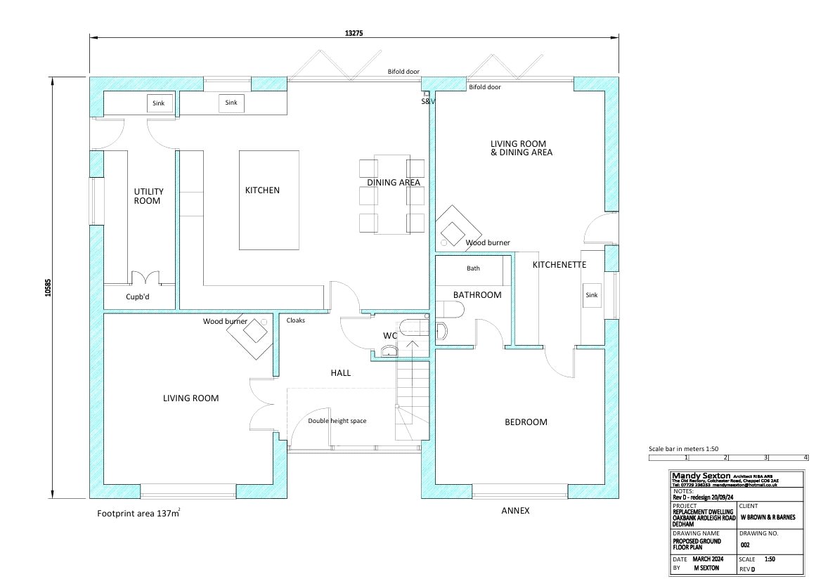
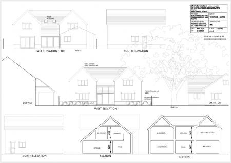
The property is entered via a welcoming hallway which leads into a generous living and dining room. This bright, triple-aspect space features French doors opening onto the garden, together with a central fireplace creating a focal point for the room. The kitchen is well-proportioned, fitted with a range of units and work surfaces, and offers direct access to the outside. A separate study provides an ideal space for home working or hobbies, while a cloakroom completes the living accommodation.

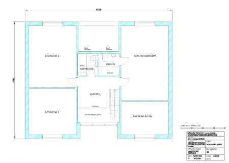
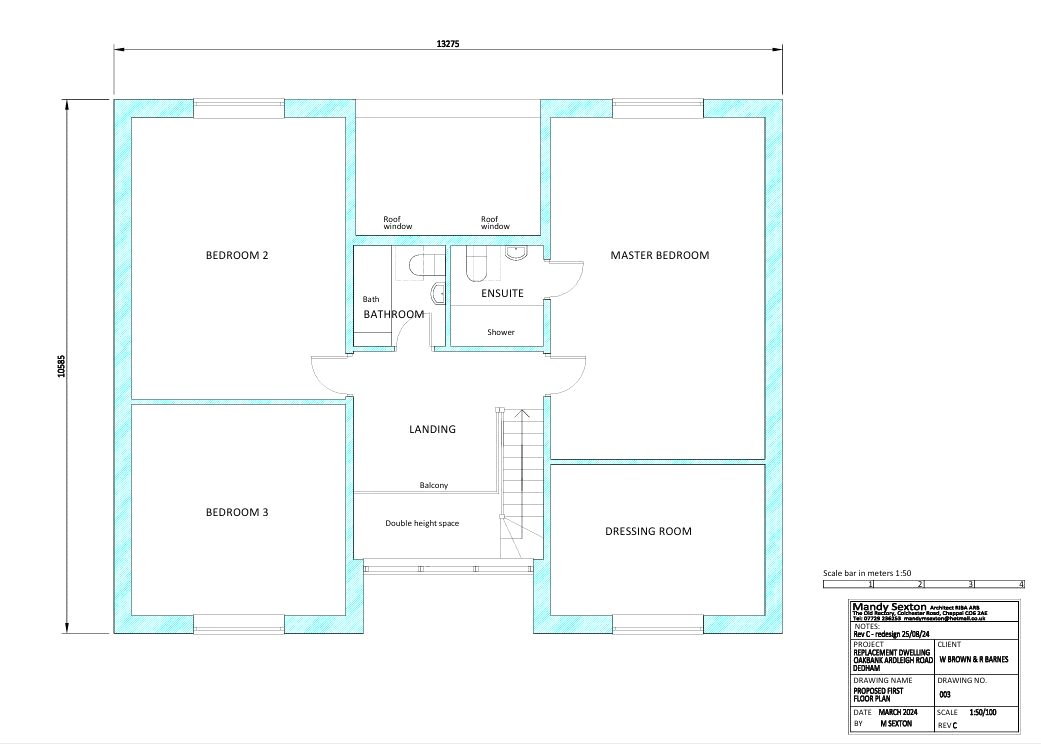
The bungalow offers three well-proportioned bedrooms, each with views to the gardens and flexible space for family use or guests. The main bedroom is a generous double, while the further two rooms provide scope for additional bedrooms, a dressing room, or home office if required. The family bathroom is fitted with a four-piece suite including a bath and separate shower, complemented by part-panelled walls and a rear-facing window providing natural light.

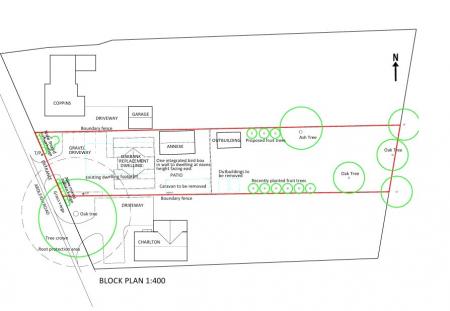
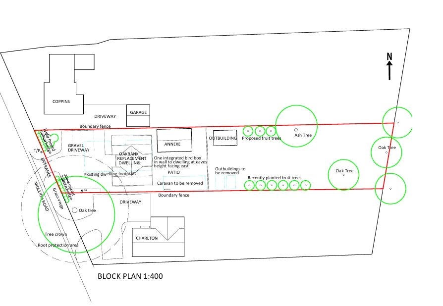
The property sits within a generous plot of approximately 0.38 acres (STS), offering a wide range of outdoor opportunities. To the rear, the east-facing gardens are predominantly laid to lawn with mature trees, planting, and a dedicated kitchen garden currently home to a chicken coop and beehive. There are various seating areas, providing space to relax and enjoy the outlook, while a number of outbuildings offer scope for storage or conversion to a home office if desired.

A recently constructed detached annexe complements the main residence, providing excellent additional accommodation. The annexe comprises a bright kitchen/family room, a cosy snug, a double bedroom, and a bathroom, creating an entirely self-contained space ideal for multi-generational living, guest accommodation, or as a potential rental opportunity.

Important Information

  • This is a Freehold property.
  • This Council Tax band for this property is: F
  • EPC Rating is E

Property Ref: DDH250332

Share:

Similar Properties

Four bedroom Link detached bungalow

4 Bedroom Link Detached House | Guide Price £600,000

Located in the heart of Bentley, this beautifully presented link-detached bungalow offers well-appointed flexible and sp...

Four-bedroomed detached house

4 Bedroom Detached House | Offers in excess of £600,000

This cottage on School Lane, Stratford St. Mary, is a beautifully presented detached home offering thoughtfully arranged...

Three bedroomed link-detached house

3 Bedroom Detached House | Guide Price £570,000

Set in a desirable semi-rural position on Hadleigh Road, Holton St Mary, this well-presented link-detached house enjoys...

Three bedroomed detached bungalow

3 Bedroom Detached Bungalow | Offers Over £625,000

Commanding a highly desirable location in semi-rural Lawford, this exceptional new build detached, three-bedroomed bunga...

Three-bedroomed detached house

3 Bedroom Detached House | Guide Price £650,000

Located on a semi-rural plot of approximately 0.34 acres (STS), this mid-century, detached family home offers accommodat...

Three bedroom detached cottage

3 Bedroom Detached House | Guide Price £650,000

Located on the outskirts of Ardleigh and within easy reach of local amenities and transport links, this Grade II listed...

Kingsleigh Estate Agents (Dedham)

Dedham, Essex, CO7 6DE

01206 940123

How much is your home worth?

Use our short form to request a valuation of your property.

Request a Valuation

Mortgage Calculator

Amount Borrowed: £
Total Amount Repayable: £
Total Monthly Payment: £
©2026 The Guild of Property Professionals. All rights reserved. Terms and Conditions | Privacy Policy | Cookie Policy | Complaints Policy | Members Login
The Guild of Property Professionals Trading Address: 121 Park Lane, London W1K 7AG. GPEA Limited. Registered in England & Wales.  Company No: 02819824.  Registered Office Address: 2 St. Stephen's Court, St. Stephen's Road, Bournemouth, Dorset, England, BH2 6LA.  VAT Registration No: 576 8795 61
Book a Property Valuation Update Cookies Preferences