Three-bedroomed detached house

Guide Price
£650,000

3 Bedroom Detached House for sale in Colchester

2 3 2
  • Semi-rural location Detached family home Two reception rooms Kitchen and utility room Three bedrooms Two bathrooms Off-road parking and garage Plot of 0.34 acres (STS)

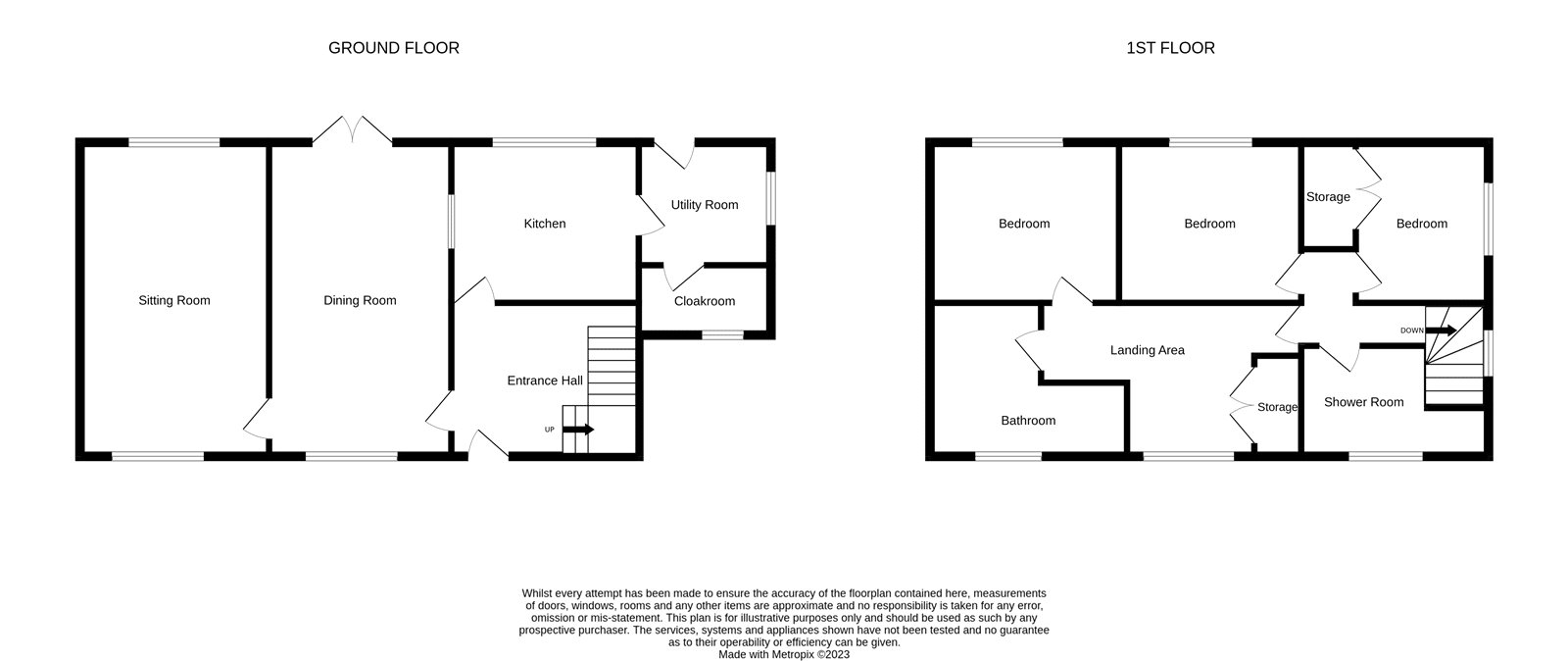
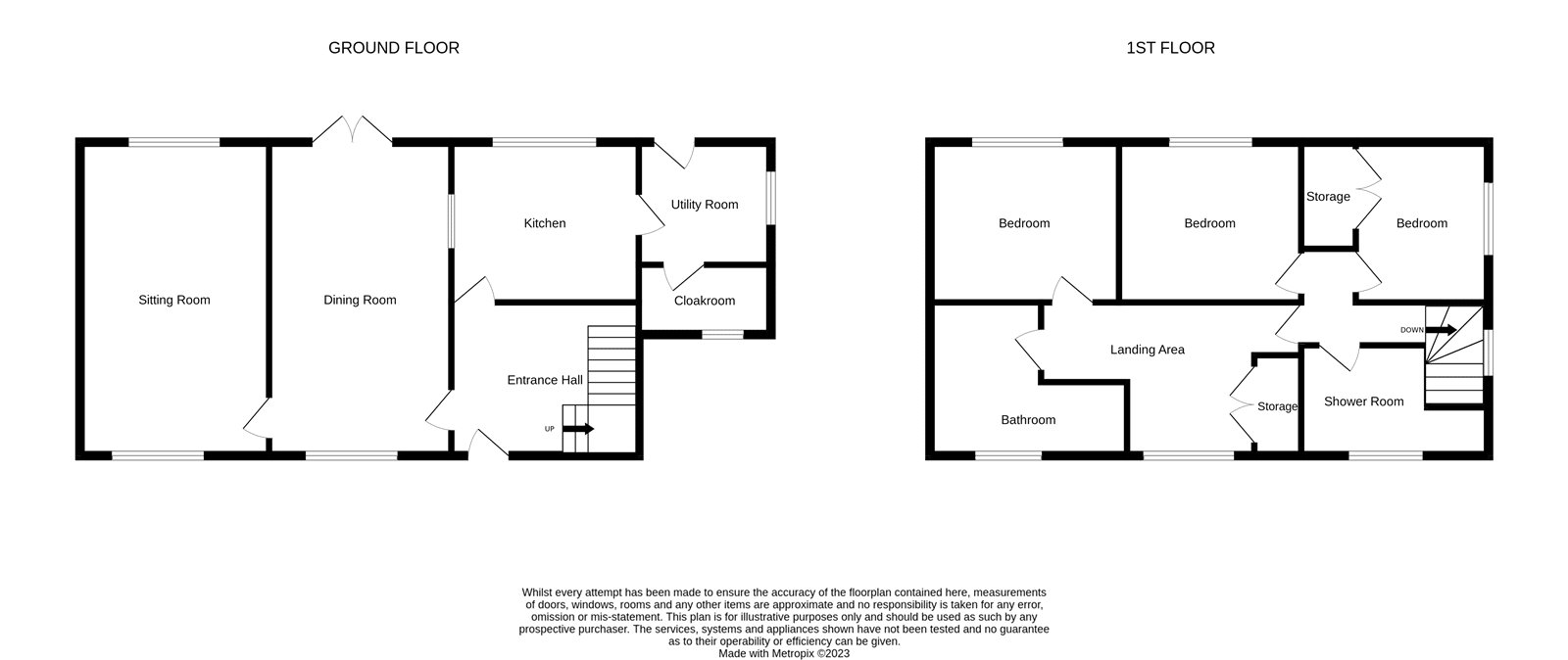
Benefitting from its semi-rural plot in the midst of the beautiful North Essex countryside, this detached family home offers spacious, well-presented accommodation over two floors.

The property is approached via a gravel driveway, which provides ample off-road parking and leads to both the garage and entrance door.

Once inside, an ample entrance hall provides a place in which to greet guests before moving through to the main living accommodation.

A dual aspect sitting room is located away from the main hubbub of a busy household and a calming place in which to relax at the end of a busy day. The addition of an inset wood burner adds warmth and ambience during the cooler months.

The adjacent dining room / family room has plenty of space for a large table - ideal for entertaining family and friends - and with double doors opening onto the terrace, the party can flow outside.

The kitchen is presented in classic off-white, providing plenty of space for food preparation. The adjoining utility room benefits from its own direct access to the garden.

A cloakroom completes the ground floor accommodation.

On the first floor, a spacious landing room offers more than just a pass-through to the bedrooms - and could be a lovely reading nook or useful study space.

The three bedrooms share use of a shower room and bathroom.

Outside, to the rear, beautifully landscaped gardens commence with a terrace - ideal for outside dining during the warmer months - with steps leading up to an expanse of lawn, interspersed and bordered by mature shrubs and trees - all enhanced by countryside views and glorious North Essex skies.

Important Information

  • This is a Freehold property.
  • This Council Tax band for this property is: D
  • EPC Rating is E

Property Ref: DDH220519

Share:

Similar Properties

Four bedroomed semi-detached cottage

4 Bedroom Cottage | Guide Price £650,000

Set within the peaceful rural landscape of Horsley Cross, this distinctive Grade II listed residence presents a rare opp...

Four bedroom detached house

4 Bedroom Detached House | Guide Price £650,000

Set with countryside views, this beautifully presented home offers generous and versatile accommodation arranged over tw...

Three bedroom detached cottage

3 Bedroom Detached House | Guide Price £650,000

Located on the outskirts of Ardleigh and within easy reach of local amenities and transport links, this Grade II listed...

Four-bedroomed detached house with annexe

4 Bedroom Detached House | Offers in excess of £700,000

Situated on the outskirts of Dedham, this extensive home offers well-proportioned accommodation incorporating a self-con...

Three bedroomed detached bungalow

3 Bedroom Detached Bungalow | Guide Price £700,000

Located in the heart of Bentley, Suffolk, this immaculate, detached bungalow offers spacious and versatile accommodation...

Four bedroom detached house

4 Bedroom Detached House | Offers in excess of £700,000

Occupying a pleasant position within Picotts Place in the sought-after village of Ardleigh, this immaculately presented...

Kingsleigh Estate Agents (Dedham)

Dedham, Essex, CO7 6DE

01206 940123

How much is your home worth?

Use our short form to request a valuation of your property.

Request a Valuation

Mortgage Calculator

Amount Borrowed: £
Total Amount Repayable: £
Total Monthly Payment: £
©2026 The Guild of Property Professionals. All rights reserved. Terms and Conditions | Privacy Policy | Cookie Policy | Complaints Policy | Members Login
The Guild of Property Professionals Trading Address: 121 Park Lane, London W1K 7AG. GPEA Limited. Registered in England & Wales.  Company No: 02819824.  Registered Office Address: 2 St. Stephen's Court, St. Stephen's Road, Bournemouth, Dorset, England, BH2 6LA.  VAT Registration No: 576 8795 61
Book a Property Valuation Update Cookies Preferences