Four bedroomed semi-detached cottage

Guide Price
£650,000

4 Bedroom Cottage for sale in Manningtree

1 4 2
  • Outstanding semi-rural location Beautifully extended Grade II listed home Open plan kitchen / family room Sitting room Four bedrooms and two bathrooms Cart lodge and parking Outside studio / offic...

The property is approached via a gated entrance onto a wide shingle driveway, which provides ample off-road parking and leads to a detached cart lodge. The grounds have been landscaped with care to complement the surrounding farmland, creating a setting that feels both private and connected to its rural environment.

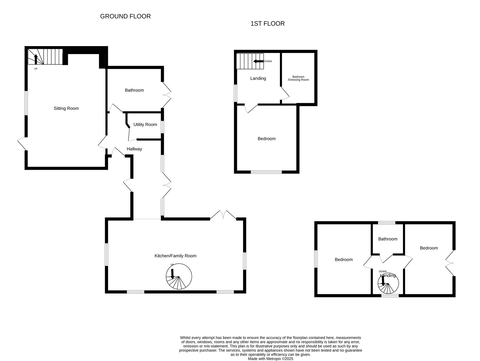
Once inside, the ground floor of this charming home unfolds with a blend of historic charm and modern design, offering a well-considered layout that delivers both character and functionality. The original cottage opens into a welcoming sitting room where exposed beams and a large inglenook fireplace with wood-burning stove create an inviting atmosphere. Natural slate flooring underfoot complements the period features, while deep-set windows frame garden views and allow light to gently filter through the space.

From here, a door leads to a stylish ground floor bathroom finished with panelling, a freestanding roll-top bath, and French doors that open directly to the garden - adding both practicality and a sense of luxury. The adjacent utility room is discreetly positioned and provides additional space for domestic tasks, with access to the connecting hallway that links old and new.

The heart of the home lies in the striking kitchen/dining/family area, housed within the barn-style extension. This expansive open-plan space is designed for everyday living and entertaining, with a large central island, sleek surfaces, and bespoke cabinetry. Full-height glazing and a spiral staircase draw the eye upward and outward, creating a light-filled environment that connects beautifully with the surrounding landscape. With defined zones for cooking, dining, and relaxing, this versatile area brings a contemporary edge to the property while maintaining a warm, welcoming feel.

The first floor offers four comfortable bedrooms and a family bathroom, all arranged to make the most of the property’s distinctive blend of period character and modern design. Timber beams, vaulted ceilings, and exposed trusses feature throughout, creating a cohesive feel. Angled ceilings and deep window reveals add texture and charm, while thoughtful placement of windows ensures each room is bright and enjoys either garden or far-reaching rural views.

The family bathroom is fitted in a modern style with clean lines and contemporary tiling, set beneath a sloping ceiling that adds to the sense of character without compromising comfort.

Outside, to the rear, the garden opens onto fields with no immediate neighbours behind, giving a sense of openness that is rare. The grounds include lawns, established planting, and specimen trees, with a kitchen garden and further space ideal for families or those seeking a more self-sufficient lifestyle. A dedicated outbuilding currently serves as a games and entertaining room, complete with bar and WC, but could easily lend itself to use as a home office, studio or annexe, subject to the usual consents.

In addition to the main garden areas, the property also benefits from a boiler room and useful ancillary storage, all discreetly tucked away to maintain the clean lines and peaceful feel of the setting. Whether for entertaining, working from home, or simply enjoying the outdoors, the grounds are an extension of the home’s generous and adaptable character.

Important Information

  • This is a Freehold property.
  • This Council Tax band for this property is: D
  • EPC Rating is D

Property Ref: DDH250293

Share:

Similar Properties

Four bedroom detached house

4 Bedroom Detached House | Guide Price £650,000

Set with countryside views, this beautifully presented home offers generous and versatile accommodation arranged over tw...

Three-bedroomed detached house

3 Bedroom Detached House | Guide Price £650,000

Located on a semi-rural plot of approximately 0.34 acres (STS), this mid-century, detached family home offers accommodat...

Three bedroom detached cottage

3 Bedroom Detached House | Guide Price £650,000

Located on the outskirts of Ardleigh and within easy reach of local amenities and transport links, this Grade II listed...

Four-bedroomed detached house with annexe

4 Bedroom Detached House | Offers in excess of £700,000

Situated on the outskirts of Dedham, this extensive home offers well-proportioned accommodation incorporating a self-con...

Three bedroomed detached bungalow

3 Bedroom Detached Bungalow | Guide Price £700,000

Located in the heart of Bentley, Suffolk, this immaculate, detached bungalow offers spacious and versatile accommodation...

Four bedroom detached house

4 Bedroom Detached House | Offers in excess of £700,000

Occupying a pleasant position within Picotts Place in the sought-after village of Ardleigh, this immaculately presented...

Kingsleigh Estate Agents (Dedham)

Dedham, Essex, CO7 6DE

01206 940123

How much is your home worth?

Use our short form to request a valuation of your property.

Request a Valuation

Mortgage Calculator

Amount Borrowed: £
Total Amount Repayable: £
Total Monthly Payment: £
©2026 The Guild of Property Professionals. All rights reserved. Terms and Conditions | Privacy Policy | Cookie Policy | Complaints Policy | Members Login
The Guild of Property Professionals Trading Address: 121 Park Lane, London W1K 7AG. GPEA Limited. Registered in England & Wales.  Company No: 02819824.  Registered Office Address: 2 St. Stephen's Court, St. Stephen's Road, Bournemouth, Dorset, England, BH2 6LA.  VAT Registration No: 576 8795 61
Book a Property Valuation Update Cookies Preferences