124 Lakelands, Craigavon

£180,000
SSTC
This property listing is now SSTC

4 Bedroom Townhouse for sale in Craigavon

1 4 3

The location is exceptional just a short walk to Rushmere Shopping Centre and South Lake Leisure Centre, with excellent schools close by. Surrounded by lakeside paths and open green space, it`s ideal for all the family, including your four-legged friends.
Property Overview
Positioned on one of the most sought-after rows within the Lakelands development, this substantial four-bedroom townhouse enjoys a prime setting overlooking the water.
Homes in this row rarely come to the market, making this a unique opportunity to secure a property with some of the finest views in the area.
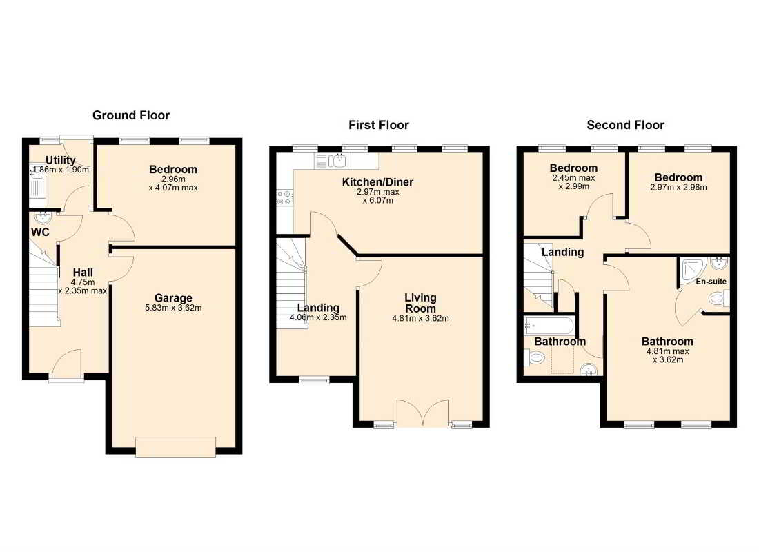
Accommodation
Ground Floor
1. Entrance hallway
2. WC
3. Large Fourth bedroom
4. Internal access to attached garage
First Floor
1. Bright, spacious lounge opening onto a balcony with stunning lake views
2. Family kitchen and dining area
Second Floor
1. Three bedrooms including master with en-suite shower room, 3rd bedroom suitable for home office if required.
2. Modern family bathroom

Key Features
1. Uninterrupted lake views from the balcony and lounge
2. Brand new high-powered pressurised heating system
3. Newly installed attic stairs with floored roof space for storage
4. Open-plan tarmac driveway with parking for two to three cars (only tarmacked 12 months previously)
5. Fully enclosed rear garden
6. Five-minute walk to South Lake Leisure Centre and watersports facilities
7. Seven-minute walk to Rushmere Shopping Centre
8. Dog-friendly lakeside walks and a choice of excellent schools nearby
Why We Love It
Step out onto the balcony and you`ll understand what makes this home so special. The views, the space, the calm it`s all here.
With flexible three-storey living, modern upgrades, and a truly unbeatable location, 124 Lakelands is more than just a home. It`s a lifestyle.
Arrange your viewing today:
Heretohelp@kinghamproperty.com



Notice
Please note we have not tested any apparatus, fixtures, fittings, or services. Interested parties must undertake their own investigation into the working order of these items. All measurements are approximate and photographs provided for guidance only.

Property Ref: 736298_1036522

Share:

Similar Properties

84 River Glade Manor, Lurgan, Craigavon

3 Bedroom Semi-Detached House | Offers in excess of £179,950

19 Moyraverty Close, Craigavon

3 Bedroom Semi-Detached House | Offers in excess of £179,950

43 McGreavy Park, Derrymacash, Craigavon

3 Bedroom Semi-Detached House | Offers in excess of £179,950

92-94 Hill Street, Lurgan, Craigavon

4 Bedroom Townhouse | £185,000

The Delaware, Ballynamoney View, Craigavon, Lurgan

3 Bedroom Semi-Detached House | £190,000

Kingham Property Specialists (Lurgan)

41 North Street, Lurgan, County Armagh, BT67 9AG

028 3834 8383

How much is your home worth?

Use our short form to request a valuation of your property.

Request a Valuation

Mortgage Calculator

Amount Borrowed: £
Total Amount Repayable: £
Total Monthly Payment: £
©2025 The Guild of Property Professionals. All rights reserved. Terms and Conditions | Privacy Policy | Cookie Policy | Complaints Policy | Members Login
The Guild of Property Professionals Trading Address: 121 Park Lane, London W1K 7AG. GPEA Limited. Registered in England & Wales.  Company No: 02819824.  Registered Office Address: 2 St. Stephen's Court, St. Stephen's Road, Bournemouth, Dorset, England, BH2 6LA.  VAT Registration No: 576 8795 61
Book a Property Valuation Update Cookies Preferences