Alton Street, Crewe, CW2

Offers in region of
£170,000

3 Bedroom Terraced House for sale in Crewe

2 3 1
  • Chain-free three-bedroom terraced house, a short walk from Crewe town centre
  • Good-sized lounge with raised dining and sitting areas creating a flexible layout
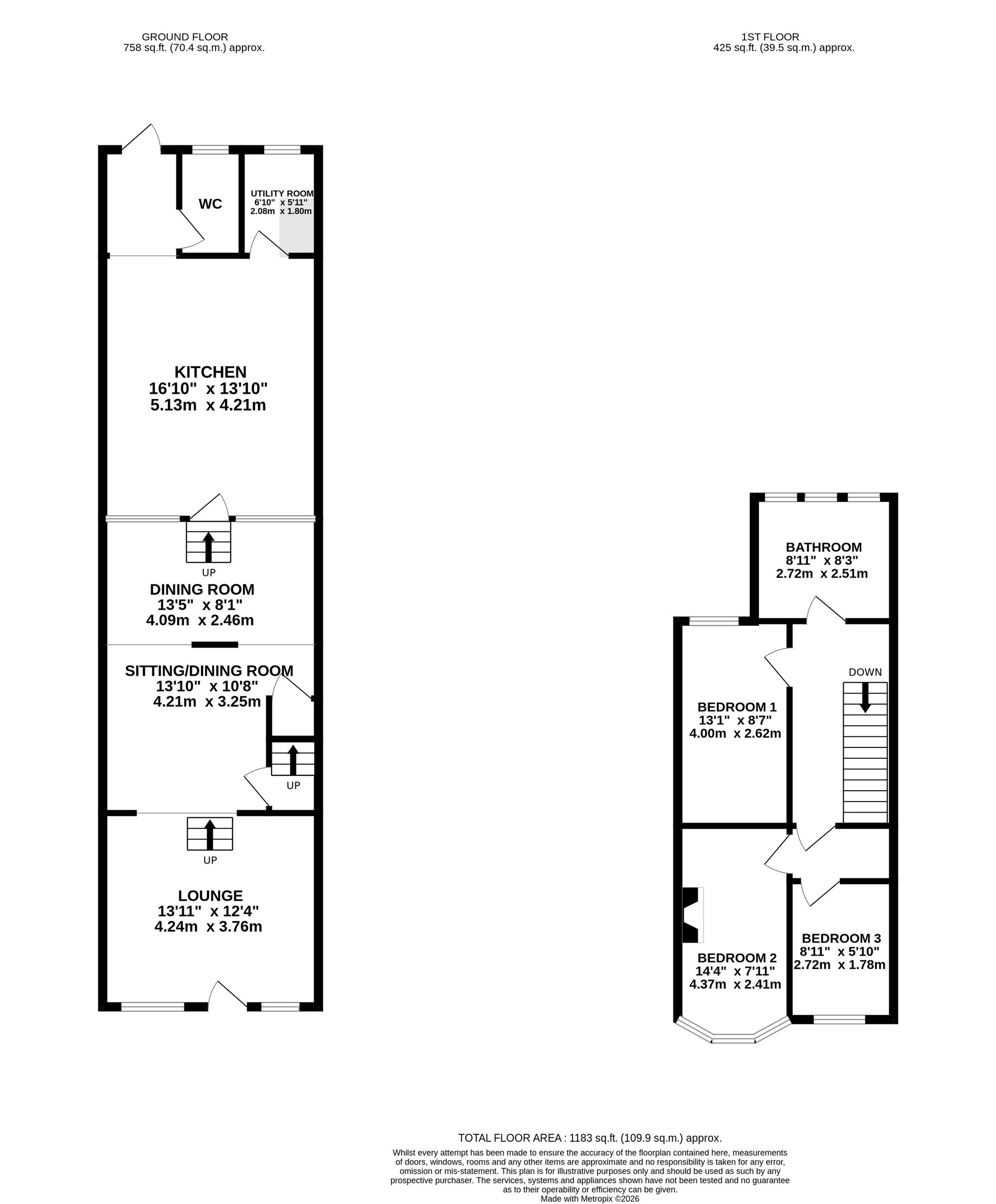
  • Spacious fitted kitchen with room for a table, plus utility room/pantry and ground floor WC
  • Three bedrooms, including a well-proportioned second bedroom with original fireplace
  • Enclosed rear garden in need of attention but offering plenty of potential to improve

Offered to the market chain free, this spacious three-bedroom terraced home in Crewe presents a great opportunity for buyers looking for a property with plenty of room and the potential to update and personalise. With a flexible layout and good overall space, it would suit first-time buyers, families, or investors alike.

The property is entered via the front lounge, a comfortable reception room with space for everyday living. From here, three steps lead up to a raised dining/sitting area, creating a slightly separate yet open feel between the spaces. Beyond this is an additional dining area, making the ground floor layout versatile and well suited to family life or entertaining.

A further two steps lead into a generously sized fitted kitchen, which offers a range of white wall and base units, an electric oven and hob with extractor hood over, plumbing for a washing machine, and space for a dining table. The kitchen provides direct access to a useful utility room/pantry for extra storage, along with a ground floor WC. A rear door leads out to the garden.

Upstairs, the main bedroom is positioned at the rear of the property and offers a good amount of space. The second bedroom is also well proportioned and benefits from an original fireplace, adding a touch of character. The third bedroom is a smaller single room, ideal for use as a child’s bedroom, nursery, dressing room or home office. The family bathroom is fitted with a bath with shower attachment over, wash basin and WC. There is also access to attic space, providing additional storage.

Externally, the property has a rear garden which is currently in need of attention but offers clear potential to be transformed into an enjoyable outdoor space with some landscaping and care.

Overall, this is a solid, well-laid-out home with plenty of scope for improvement, making it a practical choice for buyers wanting to add their own style and value over time.

Location:

The property is situated in the railway town of Crewe and just a few miles from the historic town of Nantwich. Crewe offers an extensive range of amenities including shopping, educational and recreational facilities, as well as outstanding transport and commuter links via the A500 and Junction 16 of the M6 motorway, while Crewe mainline railway station provides direct access to larger cities and towns across the country.

Important Information

  • This is a Freehold property.
  • This Council Tax band for this property is: A
  • EPC Rating is D

Property Ref: 36d123d3-2770-4449-b334-34092635cb6a

Share:

Similar Properties

Hawksey Drive, Nantwich, CW5

1 Bedroom Terraced House | £170,000

This charming one-bedroom house in Nantwich is offered with no onward chain, making it an ideal choice for first-time bu...

Remer Street, Crewe, CW1

2 Bedroom Semi-Detached House | £169,950

This well-proportioned two-bedroom semi-detached house is located in Crewe and offers bright, versatile living spaces id...

Springfield Drive, Wistaston, CW2

2 Bedroom Apartment | £155,000

Spacious top-floor Wistaston apartment with 2 double bedrooms, en-suite, open-plan living, modern kitchen, allocated par...

Whitlow Avenue, Nantwich, CW5

2 Bedroom Semi-Detached House | Offers in excess of £175,000

Two-bed semi in desirable Nantwich, close to shops and amenities. New windows, modern boiler, private garden, storage ou...

John Robinson Place, Crewe, CW1

2 Bedroom End of Terrace House | £180,000

Modern two-bedroom semi in Crewe with stylish living room, integrated kitchen, garden, and parking. Ideal for first-time...

High Street, Alsagers Bank, ST7

2 Bedroom Terraced House | Offers in excess of £185,000

Charming 2-bed terraced home in Alsagers Bank with original features, countryside views & parking. Well-presented with s...

James Du Pavey Estate Agents (Nantwich)

52 Pillory St, Nantwich, Cheshire, CW5 5BG

01270 445678

How much is your home worth?

Use our short form to request a valuation of your property.

Request a Valuation

Mortgage Calculator

Amount Borrowed: £
Total Amount Repayable: £
Total Monthly Payment: £
©2026 The Guild of Property Professionals. All rights reserved. Terms and Conditions | Privacy Policy | Cookie Policy | Complaints Policy | Members Login
The Guild of Property Professionals Trading Address: 121 Park Lane, London W1K 7AG. GPEA Limited. Registered in England & Wales.  Company No: 02819824.  Registered Office Address: 2 St. Stephen's Court, St. Stephen's Road, Bournemouth, Dorset, England, BH2 6LA.  VAT Registration No: 576 8795 61
Book a Property Valuation Update Cookies Preferences