Winsham, Braunton, Devon

Guide Price
£985,000

4 Bedroom Detached House for sale in Devon

3 4 2
  • 4/5 DOUBLE BEDROOMS
  • EXTENDED KITCHEN/DINING/FAMILY ROOM
  • MAINS ELECTRIC
  • GAS AND WATER. PRIVATE DRAINAGE
  • CHARMING FEATURES THROUGHOUT
  • 3 RECEPTION ROOMS
  • DRIVEWAY PARKING FOR MULTIPLE CARS
  • APPROXIMATELY 2 ACRES OF MATURE GARDENS AND GROUNDS
  • SHORT DRIVING DISTANCE OF BRAUNTON
  • WALKING DISTANCE OF KNOWLE AND AMENITIES

4/5 DOUBLE BEDROOMS
EXTENDED KITCHEN/DINING/FAMILY ROOM
MAINS ELECTRIC, GAS AND WATER. PRIVATE DRAINAGE
CHARMING FEATURES THROUGHOUT
3 RECEPTION ROOMS
DRIVEWAY PARKING FOR MULTIPLE CARS
APPROXIMATELY 2 ACRES OF MATURE GARDENS AND GROUNDS
SHORT DRIVING DISTANCE OF BRAUNTON
WALKING DISTANCE OF KNOWLE AND AMENITIES
SMALL FARM SHOP A 2 MINUTE WALK AWAY

Middle Winsham House is a beautifully presented 4/5 bedroom country home, set within gardens and grounds of just under two acres. Recently redecorated to a high standard, the property retains a wealth of charm and character, blended with modern comforts, making it a truly special family home.

The ground floor offers an excellent balance of living space, with three impressive reception rooms. To the front, a welcoming lounge centres around a feature fireplace with wood burner, while a cosy snug with wood burner provides the perfect retreat. To the rear, a striking open-plan kitchen/dining/family room forms part of a thoughtfully designed extension, creating the heart of the home with ample room for entertaining. A useful utility room, downstairs cloakroom, and a study add further practicality.

Upstairs, there are four generous double bedrooms. The main suite is particularly impressive, complete with fitted wardrobes, a stylish en-suite shower room, and French doors leading to a private bridge that connects directly to the garden.

Outside, the property is approached via a gated driveway with ample parking, alongside additional parking at the rear. The landscaped gardens have been carefully designed to create distinct areas for relaxation and enjoyment, including a large patio, a substantial summer house, and gently sloping lawns extending across the plot. From the upper sections, there are far-reaching countryside views, enhancing the sense of peace and privacy.

Perfectly situated, Middle Winsham House enjoys a semi-rural setting within easy reach of local amenities-just a 5 minute drive from Braunton and a short 10 minute walk from the village of Knowle.

VIEWING    Strictlyy by ppointment with the Sole Selling Agent

SERVICES    Mains Electric, Gas and Private Drainage

COUNCIL TAX BAND    D - North Devon Council

TENURE    Freehold

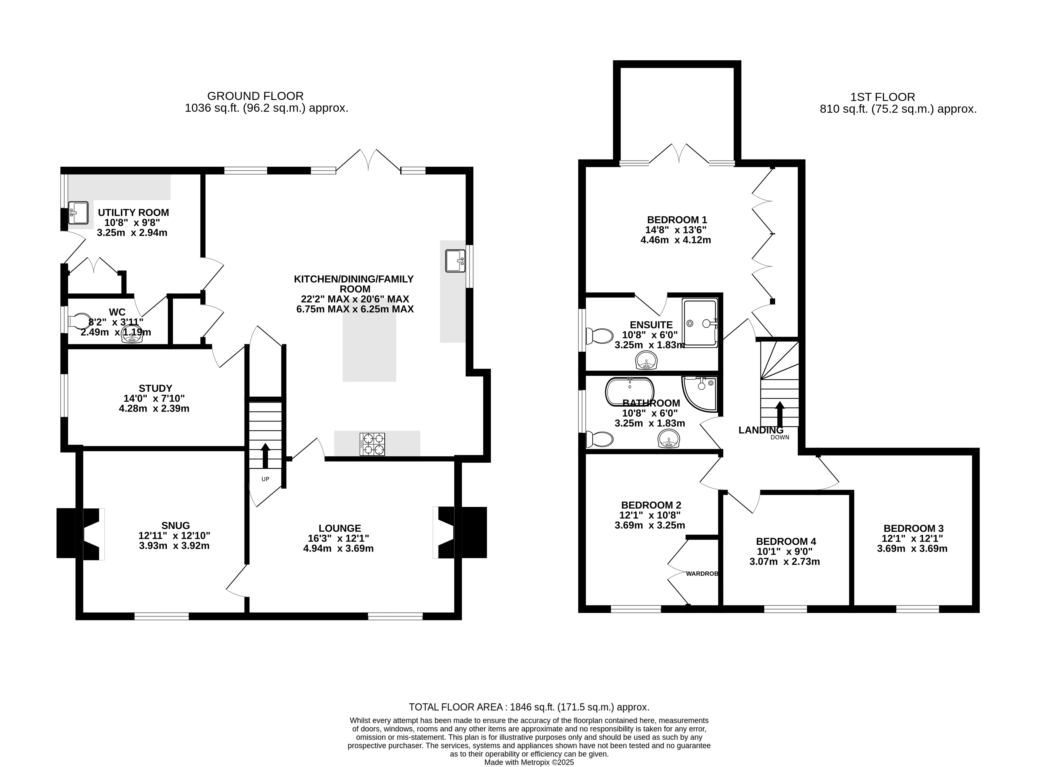
Ground Floor

Kitchen/Dining/Family Room 22'2" x 20'6" (6.76m x 6.25m).

Lounge 16'3" x 12'1" (4.95m x 3.68m).

Snug 12'11" x 12'10" (3.94m x 3.9m).

Study 14' x 7'10" (4.27m x 2.4m).

WC 8'2" x 3'11" (2.5m x 1.2m).

Utility Room 10'8" x 9'8" (3.25m x 2.95m).

First Floor

Landing

Bedroom 1 14'8" x 13'6" (4.47m x 4.11m).

Ensuite 10'8" x 6' (3.25m x 1.83m).

Bathroom 10'8" x 6' (3.25m x 1.83m).

Bedroom 2 12'1" x 6' (3.68m x 1.83m).

Bedroom 4 10'1" x 9' (3.07m x 2.74m).

Bedroom 3 12'1" x 12'1" (3.68m x 3.68m).

On entering Knowle from Braunton direction, take the first turning on the right (also signposted for the Ebrington Arms). At the pub, take the right fork onto Winsham Road. Follow the road up the hill to the T junction at the top. Turn Left and as you head down the lane, Middle Winsham House will be on the left hand side.

Important Information

  • This is a Freehold property.

Property Ref: BRA170254

Share:

Similar Properties

Lower Park Road, Braunton, Devon

4 Bedroom Detached House | Guide Price £950,000

A stunning 4/5 Bedroom detached residence with south facing rear garden, within Lower Park Road, one of Brauntons most s...

Hammados Court, Knowle, Braunton

5 Bedroom Detached House | Guide Price £895,000

A beautifully proportioned, classical 5/6 bedroom, 3 bathroom, detached family home with outstanding versatility and ver...

Willoway Lane, Braunton, Devon

5 Bedroom Detached House | Guide Price £875,000

A remarkable Grade II listed detached residence, thought to have been built in 1905 Cobblestones is one of the original...

Pippacott, Marwood, Nr Braunton

5 Bedroom Detached House | Guide Price £1,000,000

Located within a peaceful setting 15 minutes' drive of the coast and town is Elm Tree House, a remarkable residence comb...

Millers Brook, Croyde, Braunton

5 Bedroom Detached House | Guide Price £1,100,000

SOLAR PANELS AND BATTERY STORAGE. For sale in Croyde is this opportunity to purchase a superb five bedroom detached prop...

Withywell Lane, Croyde, Braunton

5 Bedroom Detached House | Guide Price £1,600,000

A phenomenal residence finished to the highest of standards within Croyde with views towards the bay on the first floor,...

Webbers Braunton (Braunton)

Braunton, Devon, EX33 2JF

01271 812263

How much is your home worth?

Use our short form to request a valuation of your property.

Request a Valuation

Mortgage Calculator

Amount Borrowed: £
Total Amount Repayable: £
Total Monthly Payment: £
©2026 The Guild of Property Professionals. All rights reserved. Terms and Conditions | Privacy Policy | Cookie Policy | Complaints Policy | Members Login
The Guild of Property Professionals Trading Address: 121 Park Lane, London W1K 7AG. GPEA Limited. Registered in England & Wales.  Company No: 02819824.  Registered Office Address: 2 St. Stephen's Court, St. Stephen's Road, Bournemouth, Dorset, England, BH2 6LA.  VAT Registration No: 576 8795 61
Book a Property Valuation Update Cookies Preferences