The Dell, Dunmow, Essex

£490,000

4 Bedroom Detached House for sale in Dunmow

2 4 1
  • Three/Four Bedrooms
  • Detached Family Home Overlooking Paddocks
  • Two Reception Areas
  • Kitchen/Utility Area
  • Study/Bedroom Four
  • Conservatory & Cloakroom
  • Single Garage & Car-Port
  • Driveway Parking
  • Secluded Rear Garden With Countryside Views
  • Walking Distance To Town

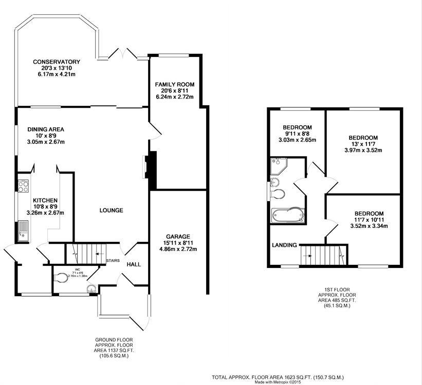
Located in the centre of Great Dunmow on a quiet cul-de-sac is this immaculate three/four bedroom detached family home overlooking open countryside with the potential to extend (STP). The ground floor accommodation comprises:- lounge, dining area, kitchen, utility area, study/bedroom four, conservatory and cloakroom. On the first floor are three bedrooms and a luxury bathroom. The property further benefits from a single garage, car-port, driveway parking and a secluded rear garden.

Entrance Hall - Window to multiple aspect, door to:-

Cloakroom - Opaque window to front aspect, W.C, wash hand basin with vanity unit below, radiator, wood flooring, part tiled walls.

Lounge - 6.25 x 3.40 (20'6" x 11'1") - Solid Wood flooring, patio doors to rear aspect, TV point, telephone point, radiator, opening to dining area, feature gas fireplace, door to study.

Dining Room - 2.84 x 2.87 (9'3" x 9'4") - Window to rear and side aspect, solid wood flooring, radiator, power point, centre opening doors to kitchen.

Kitchen - 3.23 x 2.62 (10'7" x 8'7") - Window to side aspect, base & eye level units, part tiled walls, double oven, induction hob with extractor oven, inset microwave, integrated fridge, integrated freezer archway to utility.

Utility Room - With archway going into rear lobby, door to side aspect and door to:-

Utility Cupboard - 1.80 x 1.02 (5'10" x 3'4") - Opaque window to rear aspect, power points, wall mounted boiler, space for washing machine, tumble dryer and shelving.

Study/Bedroom Four - 6.10 x 2.34 (20'0" x 7'8") - Window to rear aspect, solid wood flooring, radiator, power points.

Conservatory - 5.97 x 4.17 (19'7" x 13'8") - P shaped conservatory, window to multiple aspect, fully tiled flooring, French doors to rear aspect, various power points.

Landing - Windows to front aspect, radiator with cover, power point, loft access which is boarded, power light, doors to:-

Bedroom One - 3.28 x 3.86 (10'9" x 12'7") - Window to rear aspect, radiator with cover, power point, TV point.

Bedroom Two - 3.23 x 3.23 (10'7" x 10'7" ) - Window to front aspect, laminate flooring, radiator, power point.

Bedroom Three - 2.90 x 2.64 (9'6" x 8'7") - Laminate flooring, window to rear aspect, radiator with cover, various power points.

Family Bathroom - Opaque window to side aspect, enclose bath with mixer taps, W.C, wash hand basin with pedestal, enclosed glass shower cubicle, radiator, wall mounted vanity unit, inset spot lights, part tiled walls, lino flooring.

Garage, Carport & Driveway - To the front of the property you have a single garage, car port and two separate driveways, parking for multiple vehicles.

Garden - To the rear of the property side access is granted via a timber gate with a block paved pathway leading to a paved patio and the remaining laid lawn, with shrub borders and additional railway sleeper border, raised shingle area with plotted plants, all enclosed with timber fencing and additional patio area to foot housing timber framed summer house.

Property Ref: 879665_34313069

Share:

Similar Properties

Little Dunmow, Dunmow, Essex

3 Bedroom Semi-Detached House | Offers Over £475,000

Overlooking farmland is this spacious three bedroom semi-detached family home boasting a home office. In brief the accom...

Radcliffe Way, Great Leighs, Chelmsford, Essex

3 Bedroom Detached House | £475,000

Situated within the desirable village of Great Leighs, this immaculately finished three-bedroom detached family home off...

Boyd Close, Bishop's Stortford

4 Bedroom Townhouse | Offers Over £475,000

***No Onward Chain***Planning Permission Granted For Separate New Build Dwelling*** Located on a quiet close in the comm...

Braintree Road, Felsted, Dunmow

4 Bedroom Detached Bungalow | Offers Over £500,000

Nestled in the charming village of Felsted, this delightful four-bedroom detached bungalow on Braintree Road offers a pe...

Woods Road, Ford End, Chelmsford

3 Bedroom Semi-Detached House | Offers Over £500,000

Nestled in the conveniently located village of Ford End, this extended semi-detached house on Woods Road offers a perfec...

Takeley, Bishop's Stortford, Essex

4 Bedroom Detached House | Offers Over £500,000

Daniel Brewer are pleased to market to this charming detached property located in the peaceful residential area of Takel...

Daniel Brewer Estate Agents (Great Dunmow)

51 High Street, Great Dunmow, Essex, CM6 1AE

01371 856 585

How much is your home worth?

Use our short form to request a valuation of your property.

Request a Valuation

Mortgage Calculator

Amount Borrowed: £
Total Amount Repayable: £
Total Monthly Payment: £
©2025 The Guild of Property Professionals. All rights reserved. Terms and Conditions | Privacy Policy | Cookie Policy | Complaints Policy | Members Login
The Guild of Property Professionals Trading Address: 121 Park Lane, London W1K 7AG. GPEA Limited. Registered in England & Wales.  Company No: 02819824.  Registered Office Address: 2 St. Stephen's Court, St. Stephen's Road, Bournemouth, Dorset, England, BH2 6LA.  VAT Registration No: 576 8795 61
Book a Property Valuation Update Cookies Preferences