A well presented three bedroom semi detached property situated in a popular residential area with modern fitted bathroom, master en-suite, enclosed rear garden off road parking and a garage. The property is within close proximity to local shops, bus route, well regarded primary school, riverside walks, and St David's Train Station. EPC C, Council Tax Band C, Freehold.
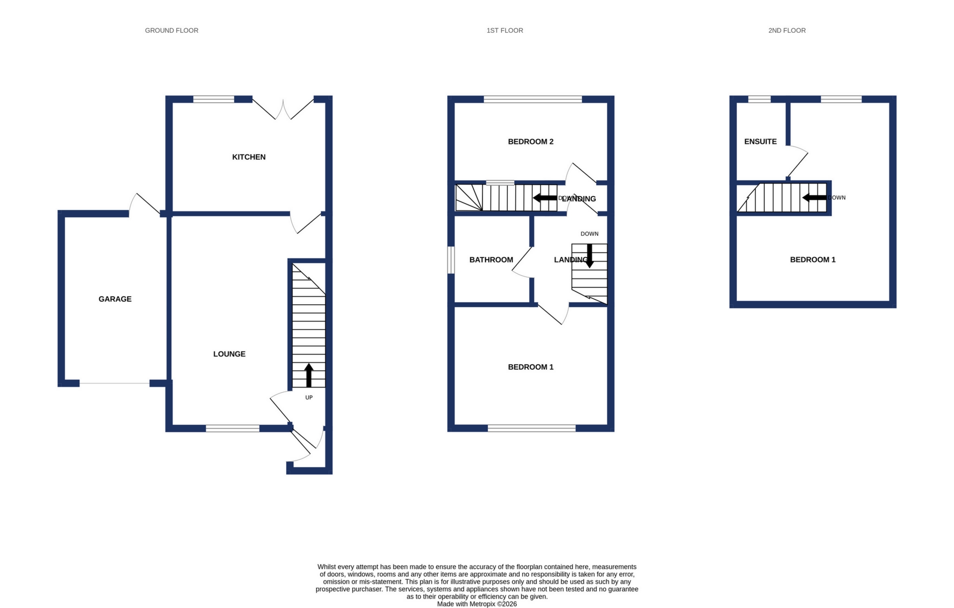
FRONT DOOR TO..
ENTRANCE PORCH: Radiator, door to..
ENTRANCE HALL: Stairs to first floor landing, door to..
LOUNGE: 5.2m x 3.6m (17'1" x 11'10"), Double glazed window to the front, radiator.
KITCHEN: 3.9m x 2.8m (12'10" x 9'2"), Double glazed window to the rear, double glazed door to the rear garden, base cupboard and drawers with worktop over, built in oven and hob, sink and drainer, space for washing machine, space for fridge freezer, wall mounted cupboards, wall mounted boiler, radiator,
FIRST FLOOR LANDING: Stairs to second floor landing, doors to..
BEDROOM 2: 4.0m x 2.3m (13'1" x 7'7"), Double glazed window to the front, radiator.
BEDROOM 3: 4.0m x 1.9m (13'1" x 6'3"), Double glazed window to the rear, radiator.
BATHROOM: Walk in shower, wash hand basin, claw foot bath tub, radiator, double glazed window to the side.
SECOND FLOOR LANDING
BEDROOM 1: 5.9m x 3.4m (19'4" x 11'2"), Radiator, eaves storage, part slopping ceiling, double glazed window to the rear, door to..
EN-SUITE: Shower cubicle, close coupled WC, wash hand basin, radiator, double glazed window to the rear.
OUTSIDE: To the front of the property is a driveway providing off road parking leading to the garage and front door. To the rear is a tiered garden laid to paved patio, artificial grass and decked patio with handy timber storage shed and summer house.
GARAGE: Up and over door, power and light.
Important Information
Property Ref: FRASE003988
Barley Farm Road, St.Thomas, EX4
3 Bedroom Semi-Detached House | £300,000
A well presented three bedroom semi detached property positioned in a popular residential area with good size living acc...
Brunswick Street, St.Thomas, EX4
3 Bedroom Terraced House | Offers in excess of £300,000
A well presented three bedroom end of terrace property situated in a popular residential area within close proximity to...
3 Bedroom Terraced House | Offers in excess of £300,000
A charming terrace property situated in a popular cul de sac within St Thomas boasting good size living accommodation an...
Wellswood Gardens, St Thomas, EX4
3 Bedroom End of Terrace House | £315,000
A well presented and extended three bedroom semi detached property with open plan living situated in in a popular reside...
4 Bedroom Terraced House | £325,000
A rare opportunity to acquire a charming three/four bedroom cottage full of character nestled in the village of Stoke Ca...
Clinton Street, St Thomas, EX4
3 Bedroom Terraced House | Offers Over £325,000
An extended three bedroom terrace property situated in the popular residential area of St Thomas within close proximity...
Fraser & Wheeler (Exeter) (St Thomas)
St Thomas, Exeter, EX4 1AW
Use our short form to request a valuation of your property.
Request a Valuation