ELLISON GARDENS, FAREHAM

£495,000

4 Bedroom Detached House for sale in Fareham

2 4 2
  • DETACHED HOUSE WITH NO FORWARD CHAIN
  • SMALL AND SELECT DEVELOPMENT
  • THREE/FOUR BEDROOMS
  • RECENTLY REDECORATED THROUGHOUT
  • TWO RECEPTION ROOMS
  • TWO BATHROOMS
  • DRESSING ROOM
  • GARAGE WITH PARKING IN FRONT
  • SIZEABLE WELL-MAINTAINED REAR GARDEN
  • EPC RATING TBC

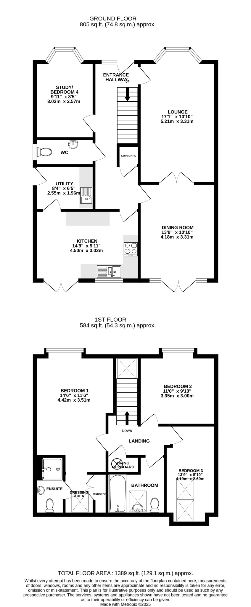
DESCRIPTION
NO FORWARD CHAIN. This versatile three/four bedroom detached house is located in a small and select development in a popular cul-de-sac to the west of Fareham town centre. The property has recently been redecorated throughout and has the benefit of underfloor heating to the ground floor. The accommodation comprises; entrance hallway, cloakroom, 17' lounge, dining room, kitchen/breakfast room, utility and a study/bedroom four. To the first floor, there are three bedrooms, a family bathroom and the main bedroom benefits from a dressing area and an en-suite shower room. Outside, there is a GARAGE measuring 19'5 by 8'10 with parking in front and a sizeable well-maintained rear garden. Viewing is essential to appreciate the property on offer.

ENTRANCE HALL
Double glazed UPVC front door. Double glazed obscure window to the front aspect. Smooth and coved ceiling. Staircase rising to the first floor. Storage cupboard.

CLOAKROOM
Double glazed obscure window to the side aspect. Smooth and coved ceiling. Low level WC. Wash hand basin. Part tiled walls. Tiled flooring.

LOUNGE
Double glazed bay window to the front aspect. Smooth and coved ceiling. Three wall lights.

DINING ROOM
Double glazed French doors leading to the rear garden and two double glazed windows to the rear aspect. Three wall lights.

KITCHEN
Double glazed French doors to the rear garden. Smooth and coved ceiling with inset spotlighting. Matching wall and base units with contrasting work tops. Inset stainless steel sink and half drainer. Tiled splashback. Four ring gas hob with extractor above. Space for fridge/freezer. Integrated oven/grill and dishwasher. Tiled flooring.

UTILITY
Double glazed UPVC door to the side aspect. Smooth and coved ceiling. Low level units with contrasting work tops. Inset stainless steel sink and drainer. Tiled splash back. Space and plumbing for washing machine. Tiled flooring.

STUDY/BEDROOM FOUR
Double glazed bay window to the front aspect. Smooth and coved ceiling.

FIRST FLOOR
LANDING

Smooth and coved ceiling with loft access. Skylight to the front aspect. Airing cupboard with Glow-worm unvented water cylinder.

BEDROOM ONE
Double glazed window to the front aspect. Smooth and coved ceiling. Radiator.

DRESSING AREA
Skylight to the rear aspect with smooth ceiling. Built-in wardrobe. Radiator.

EN-SUITE
Smooth and coved ceiling with extractor fan. Suite comprising shower cubicle, wash hand basin and low level WC. Chrome heated towel rail. Part tiled walls. Tiled flooring.

BEDROOM TWO
Double glazed window to the front aspect. Smooth and coved ceiling. Radiator.

BEDROOM THREE
Two skylights to the rear aspect. Smooth and coved ceiling. Radiator.

BATHROOM
Skylight to the rear aspect. Smooth and coved ceiling with extractor fan. Suite comprising bath with hand shower, wash hand basin and low level WC. Electric heated towel rail. Part tiled walls. Tiled flooring.

OUTSIDE
To the front of the property, there is block paved parking in front of the GARAGE (left hand side as you look at the pair of garages), path leading to the front door and side gated pedestrian access.

GARAGE measuring 19'5 x 8'10. Electric roller garage door. Double glazed door to the side aspect. Power and light.

The rear garden is a particular feature of this home and is mainly laid to lawn with well-maintained borders and a shingled area to the bottom corner of the garden. The path continues along the side aspect where there is a timber garden shed and gated access leading to the front. Outside tap.

AGENT'S NOTE
There is an estate charge payable of approximately £50 per year.

COUNCIL TAX
Fareham Borough Council. Tax Band E. Payable 2025/2026. £2,645.56

Important Information

  • This is a Freehold property.

Property Ref: 2-58628_PFHCC_696968

Share:

Similar Properties

BLACKBROOK ROAD, FAREHAM

3 Bedroom Semi-Detached House | £495,000

This most impressive three bedroom semi-detached 1930’s extended family home is located in a popular area to the west of...

ROEBUCK AVENUE, FUNTLEY

4 Bedroom Detached House | £480,000

A modern four bedroom detached family home located within a popular development within the much requested village of Fun...

REDLANDS LANE, FAREHAM

Land | Guide Price £475,000

A rare opportunity to purchase a piece of land situated off Redlands Lane and measuring approximately 0.42 acres. Curren...

BEECH ROAD, FAREHAM - BUNGALOW WITH DETACHED ANNEXE

5 Bedroom Semi-Detached Bungalow | £500,000

An excellent and unique opportunity to purchase this extended three bedroom semi-detached bungalow with the benefit of a...

WILLIAM PRICE GARDENS, FAREHAM

4 Bedroom Detached House | £500,000

NO FORWARD CHAIN. This four bedroom detached family home is located within one of the town's most sought after developme...

GIFFORD CLOSE, FAREHAM

4 Bedroom Detached House | £500,000

NO FORWARD CHAIN. A modern detached four bedroom family home located in a non-estate position close to Fareham town cent...

Pearsons Estate Agents (Fareham)

21 West Street, Fareham, Hampshire, PO16 0BG

01329 288241

How much is your home worth?

Use our short form to request a valuation of your property.

Request a Valuation

Mortgage Calculator

Amount Borrowed: £
Total Amount Repayable: £
Total Monthly Payment: £
©2025 The Guild of Property Professionals. All rights reserved. Terms and Conditions | Privacy Policy | Cookie Policy | Complaints Policy | Members Login
The Guild of Property Professionals Trading Address: 121 Park Lane, London W1K 7AG. GPEA Limited. Registered in England & Wales.  Company No: 02819824.  Registered Office Address: 2 St. Stephen's Court, St. Stephen's Road, Bournemouth, Dorset, England, BH2 6LA.  VAT Registration No: 576 8795 61
Book a Property Valuation Update Cookies Preferences