WEST STREET, FAREHAM

£175,000

2 Bedroom Flat for sale in Fareham

1 2 1
  • FIRST FLOOR FLAT
  • CENTRALLY LOCATED
  • TWO DOUBLE BEDROOMS
  • KITCHEN/BREAKFAST ROOM
  • LIVING ROOM
  • SHOWER ROOM
  • ONE ALLOCATED PARKING SPACE
  • EPC RATING E

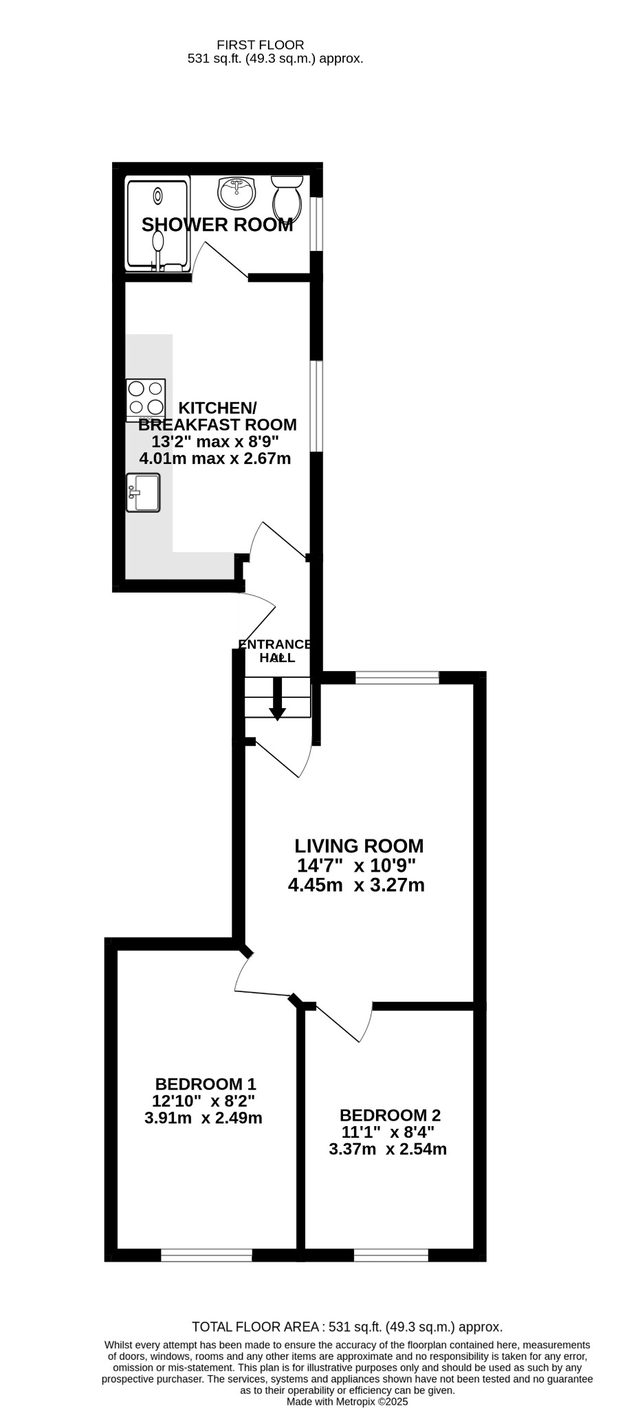
DESCRIPTION
A well-presented first floor flat centrally located within Fareham town centre with the benefit of one allocated parking space. The property's accommodation briefly comprises of a; communal entrance hall with stairs to first floor, private front door leading to an entrance hall, kitchen/breakfast room, a shower room, living room and two double bedrooms. The property benefits from double glazing and is warmed by independent electric heating. The flat has its own allocated parking space, which is located behind the property and accessed via a service road from Hartlands Road. As sole agents we would highly recommend an early inspection.

FRONT DOOR TO:

COMMUNAL ENTRANCE HALL
With stairs to first floor.

PRIVATE FRONT DOOR TO:

ENTRANCE HALL
Double glazed window to side elevation. Steps leading to the living room and door to:

KITCHEN/BREAKFAST ROOM
Double glazed window to side elevation. Sink unit set into solid wooden work surfaces with cupboard under housing electric water heater. There is a selection of wall and base level units with solid wood work surfaces over. Built-in four ring ceramic hob with electric oven under and cooker hood above. Plumbing for washing machine. Recess for fridge/freezer. Area for breakfast table. Door to:

SHOWER ROOM
Double glazed window to side elevation. Walk-in shower cubicle with wall mounted electric shower unit. Vanity unit with wash hand basin and storage beneath. Low level close coupled WC. Heated towel rail. Extractor fan.

LIVING ROOM
Double glazed window to rear elevation. Electric heater with timer. Electric vertical radiator. Inset ceiling spotlights. Doors to both bedrooms.

BEDROOM ONE
Double glazed window to front elevation. Electric vertical radiator. Inset ceiling spotlights.

BEDROOM TWO
Double glazed window to front elevation. Electric vertical radiator. Inset ceiling spotlights.

OUTSIDE
The property benefits from its own parking space, which can be found behind the property and is accessed via a service road from Hartlands Road.

LEASE INFORMATION
Remainder of 250 year lease from 01/11/2020.
Ground rent: £50 payable for the period 01/04/2025 - 31/03/2026.
Maintenance/service charge: £1,093.18 payable for the period 01/04/2025 - 31/03/2026 (includes business insurance).

Please be aware the maintenance/service charges are an annual cost and the amount payable is reviewed each year.

COUNCIL TAX
Fareham Borough Council. Tax Band B. Payable 2025/2026. £1,683.54.

Important Information

  • This is a Leasehold property.
  • The annual cost for the ground rent on this property is £50
  • The annual service charges for this property is £1093

Property Ref: 2-58628_PFHCC_666960

Share:

Similar Properties

LONGFIELD AVENUE, FAREHAM

2 Bedroom Apartment | £175,000

OFFERED WITH 50% OF THE FREEHOLD, this superbly presented two bedroom apartment forms part of a converted house and is l...

FAIRFIELD AVENUE, FAREHAM

2 Bedroom Apartment | £170,000

NO FORWARD CHAIN. A first floor two bedroom flat located to the south west of Fareham town centre which benefits from it...

FURZE COURT, FAREHAM

2 Bedroom Apartment | £169,950

NO FORWARD CHAIN. This modern two bedroom first floor apartment is located to the north of Fareham town centre in a popu...

SUTTON COURT, FAREHAM

2 Bedroom Apartment | £180,000

NO FORWARD CHAIN. A purpose built modern two bedroom first floor apartment located close to Fareham town centre and with...

CRANLEIGH ROAD, PORTCHESTER. AUCTION GUIDE PRICE £180,000.

3 Bedroom Semi-Detached House | Guide Price £180,000

FOR SALE BY PUBLIC AUCTION ON THE 9TH JULY 2025 at 11.00am in the Brooks Suite, Silverlake Stadium, Stoneham Lane, Eastl...

FAREHAM POINT, FAREHAM

2 Bedroom Apartment | £180,000

This superbly presented two bedroom second floor modern apartment is ideally located within a short distance of Fareham...

Pearsons Estate Agents (Fareham)

21 West Street, Fareham, Hampshire, PO16 0BG

01329 288241

How much is your home worth?

Use our short form to request a valuation of your property.

Request a Valuation

Mortgage Calculator

Amount Borrowed: £
Total Amount Repayable: £
Total Monthly Payment: £
©2025 The Guild of Property Professionals. All rights reserved. Terms and Conditions | Privacy Policy | Cookie Policy | Complaints Policy | Members Login
The Guild of Property Professionals Trading Address: 121 Park Lane, London W1K 7AG. GPEA Limited. Registered in England & Wales.  Company No: 02819824.  Registered Office Address: 2 St. Stephen's Court, St. Stephen's Road, Bournemouth, Dorset, England, BH2 6LA.  VAT Registration No: 576 8795 61
Book a Property Valuation Update Cookies Preferences