Bloxham Crescent, Hampton, TW12

Offers Over
£595,000

3 Bedroom Terraced House for sale in Hampton

1 3 1
  • South West Facing Garden
  • Outbuilding multiple functions
  • Double Bedrooms
  • Close to Schools
  • Close to Green Space
  • Close to transport links
  • Splendid mature garden
  • Bespoke fitted kitchen
  • Bespoke Island
  • Hardwood flooring

Council tax band: D.

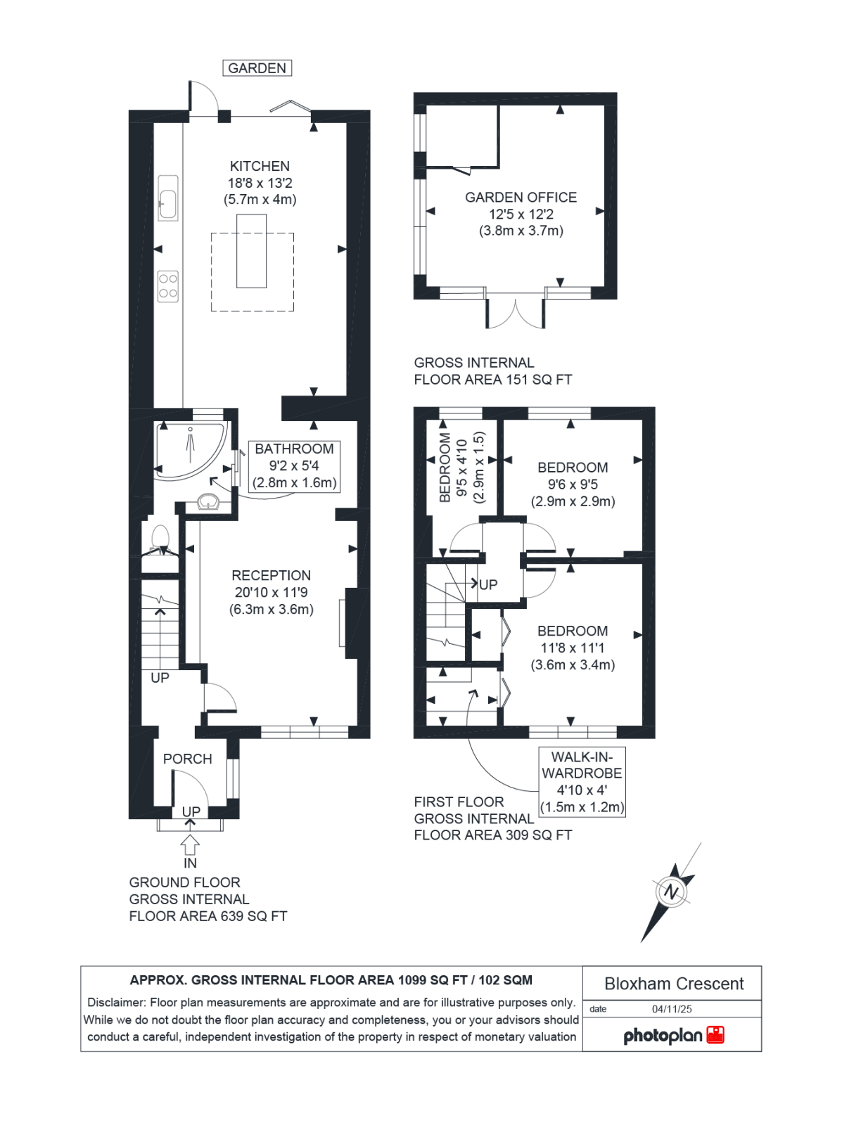
An immaculately presented, two and a half bedroom family home carefully designed by the current owners showcasing intricate detail throughout the house with many bespoke features. The property continues to impress with a mature South-West facing garden which is even more impressive due to the fact that you have bi-folding doors from the kitchen to create a fantastic indoor outdoor space which flows through the ground floor of this property, also a tucked way multi functional too the rear of the garden. With this bespoke kitchen you will be the envy of all your neighbours with the showcase one of piece that was designed for this property. Additionally in the kitchen you have a one off black granite kitchen sink that was especially flown in from abroad for this property furthermore, also Sonor Speakers aswell. Other additional features are breakfast island, apex electrical sky lights adding natural light into the kitchen. The lovely size reception offers cosy and welcoming space that beautifully blends in with the modern comfort. 


The Location of the property is in a quiet residential streets of the charming Hampton Village, This lovely home is located in a desirable road, as its approx 220 yards from the Hampton Infant school & Nursery, approx 0.8 Miles to Hampton High School. For outdoor enjoyment and green space, youre just a short stroll from Carlisle Park which offers tennis courts, Childrens Play area which is approx 0.4 miles from the property. Hampton Railway station is approx 5 minutes walk from the property providing great links to central London.  The 111 Bus which is walking distance from the property offers routes between Kingston and Heathrow Airport. The local village centres has Cafes, Shops and day to day conveniences within easy reach. The house is approx 15-20 minutes away from the River Thames, all year round the open air swimming pool and Bushy Park which is the second largest paring in the Richmond Borough.




Features
  • Surounded sound system in kitchen
  • Bespoke Kitchen sink
  • Bespoke Walk in Wardrobe

Important Information

  • This is a Freehold property.

Property Ref: 632118_homesearch_274405421

Share:

Similar Properties

Randolph Road, London, UB1

2 Bedroom Flat | £590,000

2 Bedroom Luxury Apartment The Green Quarter Quadrant House

Randolph Road, London, UB1

2 Bedroom Flat | £586,000

2 Bedroom Luxury Apartment The Green Quarter Quadrant House

Randolph Road, London, UB1

2 Bedroom Flat | £578,000

2 Bedroom Luxury Apartment The Green Quarter Quadrant House

Pump House Crescent , TW8

2 Bedroom Flat | Offers Over £600,000

A Modern Riverside 2 Bedroom Flat in Brentford with a balcony, gym and secure underground parking

Springvale Avenue, TW8

3 Bedroom Terraced House | Offers Over £625,000

3 bedroom Mid Terraced Spacious Home in Brentford with Large Garden, Garage & Endless Potential

Lampton Parkside, TW3

3 Bedroom Flat | £650,000

Discover Apartment E2.3 at The Evergreens—a generous 1173 sq ft three-bedroom home set alongside the stunning 40-acre La...

Homesearch (Ealing)

Ealing, London, W5 4QB

020 8560 0125

How much is your home worth?

Use our short form to request a valuation of your property.

Request a Valuation

Mortgage Calculator

Amount Borrowed: £
Total Amount Repayable: £
Total Monthly Payment: £
©2025 The Guild of Property Professionals. All rights reserved. Terms and Conditions | Privacy Policy | Cookie Policy | Complaints Policy | Members Login
The Guild of Property Professionals Trading Address: 121 Park Lane, London W1K 7AG. GPEA Limited. Registered in England & Wales.  Company No: 02819824.  Registered Office Address: 2 St. Stephen's Court, St. Stephen's Road, Bournemouth, Dorset, England, BH2 6LA.  VAT Registration No: 576 8795 61
Book a Property Valuation Update Cookies Preferences