Copyground Lane, Copyground Court Copyground Lane, HP12

£220,000

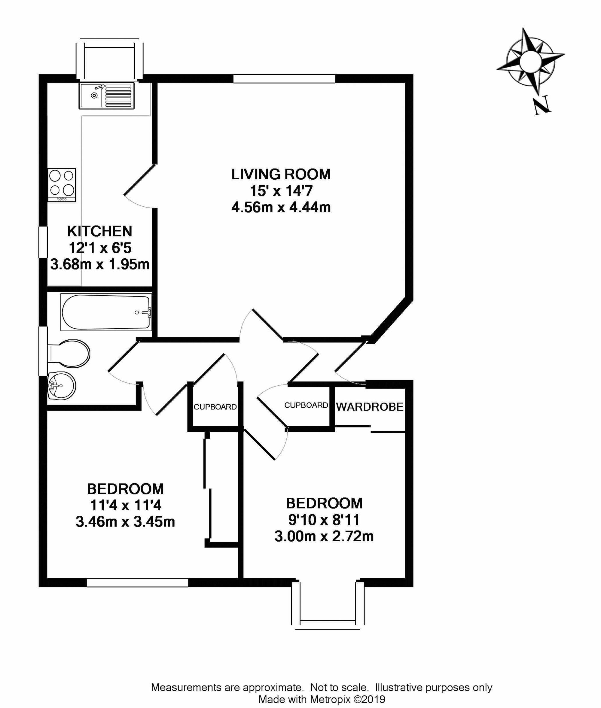
2 Bedroom Flat for sale in High Wycombe

1 2 1
  • Recently Redecorated First Floor Flat
  • Living/Dining Room, Modern Kitchen
  • Resident Parking, Attractive Communal Grounds
  • Extended Lease 152 Years Remaining
  • Two Good Size Bedrooms, Bathroom, Double Glazing

Forming part of this attractive, gated, courtyard development is this well presented first floor flat. Benefiting from a security entry system, a communal hallway providing access to the first floor and flat 3. The property has a large living/dining room, modern kitchen, two good size bedrooms and bathroom. The property has new double glazing fitted by the current owners, hardwood flooring to the living room and electric heating. To the outside there are resident parking bays and beautifully kept communal grounds.

Energy Efficiency Current: 73.0
Energy Efficiency Potential: 78.0

Important Information

  • This is a Leasehold property.
  • The annual service charges for this property is £1500
  • This Council Tax band for this property is: C

Property Ref: a052fdcb-f56a-4c72-b21c-4fc20e25160a

Share:

Similar Properties

Gallows Lane, Langston Court Gallows Lane, HP12

2 Bedroom Flat | £220,000

A well-presented, two-bedroom ground floor apartment with private entrance to the West of High Wycombe

Wellesbourne Crescent, High Wycombe, HP13

1 Bedroom Flat | £219,950

A modern and stylish first floor apartment in a sought-after location.

Windrush Court, High Wycombe, HP13

2 Bedroom Flat | £217,500

A well presented two bedroom first floor apartment in a quiet location to the North East of High Wycombe

Ercolani Avenue, High Wycombe, HP13

2 Bedroom Flat | £225,000

Windrush Drive, High Wycombe, HP13

2 Bedroom Flat | £225,000

Rutland Street, High Wycombe, HP11

1 Bedroom Flat | £229,950

Wye Partnership (High Wycombe)

15 Crendon Street, High Wycombe, Buckinghamshire, HP13 6LE

01494 451300

How much is your home worth?

Use our short form to request a valuation of your property.

Request a Valuation

Mortgage Calculator

Amount Borrowed: £
Total Amount Repayable: £
Total Monthly Payment: £
©2025 The Guild of Property Professionals. All rights reserved. Terms and Conditions | Privacy Policy | Cookie Policy | Complaints Policy | Members Login
The Guild of Property Professionals Trading Address: 121 Park Lane, London W1K 7AG. GPEA Limited. Registered in England & Wales.  Company No: 02819824.  Registered Office Address: 2 St. Stephen's Court, St. Stephen's Road, Bournemouth, Dorset, England, BH2 6LA.  VAT Registration No: 576 8795 61
Book a Property Valuation Update Cookies Preferences