Bookerhill Road, High Wycombe, HP12

£255,000

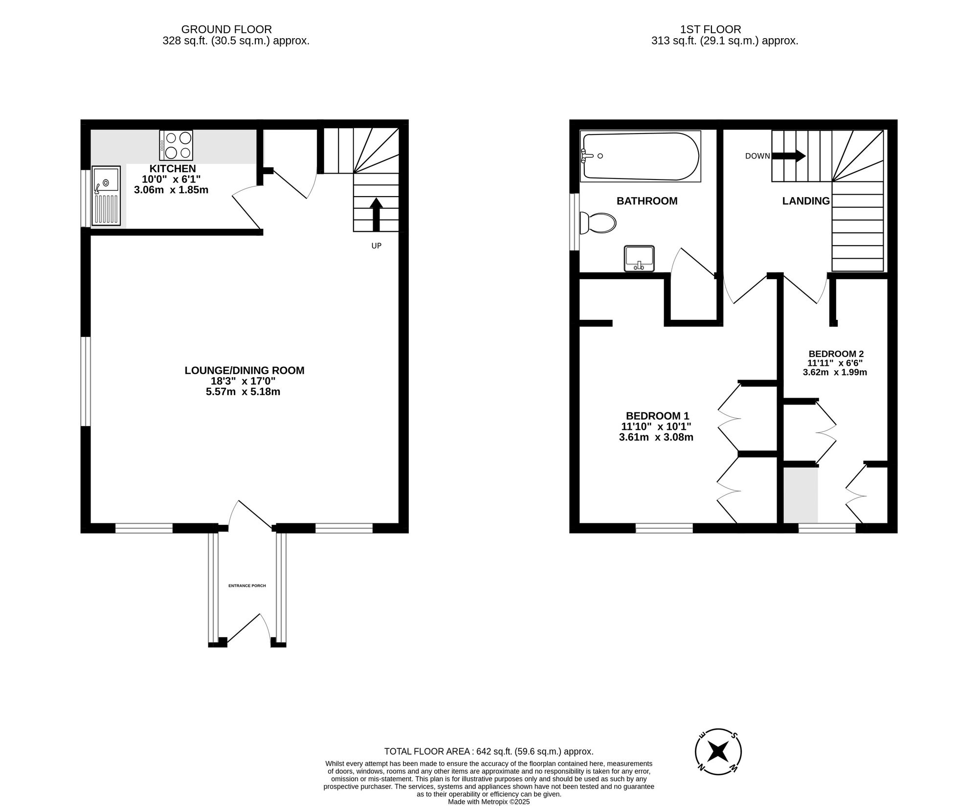
2 Bedroom Maisonette for sale in High Wycombe

1 2 1
  • Well Presented Split-Level Maisonette
  • Private Entrance, Living Room, Kitchen
  • Two Bedrooms And Bathroom
  • Gas C/H, Double Glazing, Allocated Parking
  • Easy Reach Of M40 Motorway And Local Amenities

A well presented, two-bedroom maisonette with private entrance and accommodation over two floors. The property has a share of freehold and holds the balance of a 999 year lease. This lovely home comprises; living room, lounge/dining room, landing, two bedrooms and bathroom, with double glazing and a gas central heating system that benefits from a new gas boiler installed in 2024. To the outside there are communal lawns with allocated parking.

Energy Efficiency Current: 70.0
Energy Efficiency Potential: 89.0

Important Information

  • The annual service charges for this property is £1545
  • This Council Tax band for this property is: C

Property Ref: 9a35e026-5611-43d8-882d-e709a7342714

Share:

Similar Properties

Amersham Hill, High Wycombe, HP13

2 Bedroom Flat | £255,000

A spacious and well maintained ground floor flat situated in a popular location within walking distance of the town cent...

Amersham Hill, High Wycombe, HP13

2 Bedroom Maisonette | £255,000

Micklefield Road, High Wycombe, HP13

2 Bedroom Maisonette | £250,000

New Road, High Wycombe, HP12

2 Bedroom Not Specified | £259,950

London Road, Widgeon House The Millstream London Road, HP11

2 Bedroom Flat | £260,000

First floor apartment in sought after location overlooking The Rye.

Bartlett Crescent, High Wycombe, HP12

2 Bedroom Flat | £260,000

Wye Partnership (High Wycombe)

15 Crendon Street, High Wycombe, Buckinghamshire, HP13 6LE

01494 451300

How much is your home worth?

Use our short form to request a valuation of your property.

Request a Valuation

Mortgage Calculator

Amount Borrowed: £
Total Amount Repayable: £
Total Monthly Payment: £
©2025 The Guild of Property Professionals. All rights reserved. Terms and Conditions | Privacy Policy | Cookie Policy | Complaints Policy | Members Login
The Guild of Property Professionals Trading Address: 121 Park Lane, London W1K 7AG. GPEA Limited. Registered in England & Wales.  Company No: 02819824.  Registered Office Address: 2 St. Stephen's Court, St. Stephen's Road, Bournemouth, Dorset, England, BH2 6LA.  VAT Registration No: 576 8795 61
Book a Property Valuation Update Cookies Preferences