Freer Crescent, Aspen Court Freer Crescent, HP13

£239,950
SSTC
This property listing is now SSTC

2 Bedroom Flat for sale in High Wycombe

1 2 1
  • A Very Well Presented two bedroom First Floor Apartment In Popular East Side Development
  • Modern Fitted Kitchen Including Appliances, Modern Fitted Bathroom
  • Underfloor Heating And Double Glazed Windows And Doors
  • Redecorated, Redecorated, Good Order Throughout, No Upper Chain
  • Balcony Overlooking Well Maintained Communal Gardens, Undercover Parking

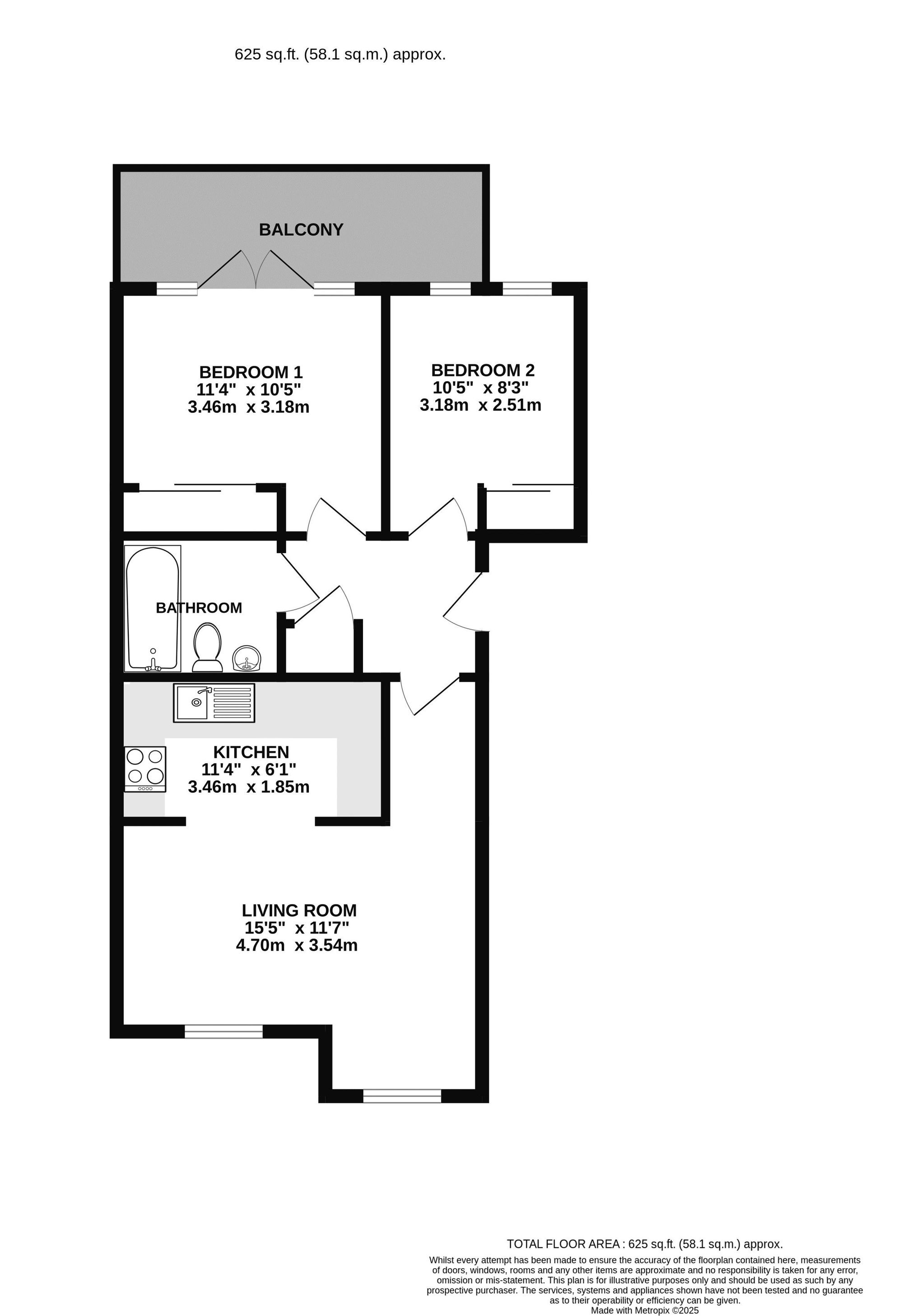
We are delighted to offer for sale this good size, two-bedroom, first floor apartment situated in a popular development close to junction 3 of the M40 motorway. Having recently been the subject of complete redecoration with new carpeting throughout, the property is accessed by a security entry phone system, has a modern kitchen, which includes integral appliances, a large lounge/dining room with far reaching views over the Gomm Valley and beyond, two double bedrooms including built-in wardrobes, with a balcony off the master bedroom, and a modern family bathroom. Externally a balcony overlooks the well cared for communal gardens and there is an allocated undercover parking space. To Be sold with no upper chain, the property has been priced to sell and we hold keys for early viewings.

Energy Efficiency Current: 84.0
Energy Efficiency Potential: 85.0

Important Information

  • This is a Leasehold property.
  • The annual cost for the ground rent on this property is £4200
  • This Council Tax band for this property is: C

Property Ref: a052fd14-7191-4d12-ade5-c02a7464c30c

Share:

Similar Properties

Birinus Close, High Wycombe, HP12

2 Bedroom Flat | £239,950

Rosemary Close, High Wycombe, HP12

2 Bedroom Flat | £239,950

A spacious apartment close to West Wycombe Village with views over the West Wycombe Estate

Micklefield Road, High Wycombe, HP13

2 Bedroom Flat | £235,000

Spacious and well presented first floor apartment offered with vacant possession

Olympic Way, High Wycombe, HP13

2 Bedroom Flat | £240,000

A spacious and well presented first floor floor apartment with balcony

West Wycombe Road, High Wycombe, HP12

2 Bedroom Flat | £243,000

Wye Partnership (High Wycombe)

15 Crendon Street, High Wycombe, Buckinghamshire, HP13 6LE

01494 451300

How much is your home worth?

Use our short form to request a valuation of your property.

Request a Valuation

Mortgage Calculator

Amount Borrowed: £
Total Amount Repayable: £
Total Monthly Payment: £
©2025 The Guild of Property Professionals. All rights reserved. Terms and Conditions | Privacy Policy | Cookie Policy | Complaints Policy | Members Login
The Guild of Property Professionals Trading Address: 121 Park Lane, London W1K 7AG. GPEA Limited. Registered in England & Wales.  Company No: 02819824.  Registered Office Address: 2 St. Stephen's Court, St. Stephen's Road, Bournemouth, Dorset, England, BH2 6LA.  VAT Registration No: 576 8795 61
Book a Property Valuation Update Cookies Preferences