Worsdell Close, Ipswich, Suffolk

Guide Price
£130,000
SSTC
This property listing is now SSTC

2 Bedroom Flat for sale in Ipswich

2 1
  • NO ONWARD CHAIN
  • FIRST FLOOR APARTMENT
  • 2 DOUBLE BEDROOMS
  • LOUNGE/DINING
  • FITTED KITCHEN
  • BATHROOM
  • DOUBLE GLAZED THROUGHOUT
  • GAS CENTRAL HEATING
  • ALLOCATED PARKING SPACE
  • WALKING DISTANCE TO SCHOOLS SHOPS BUS SERVICE T/C, WATERFRONT & RAILOWAY STATION

NO ONWARD CHAIN - We are delighted to be offering for sale this beautiful 2 bedroom first floor apartment located to the south of Ipswich within walking distance to local shops, schools, town centre, waterfront and railway station. Communal entrance hall with carpeted stairs to all floors, entrance hall into apartment, lounge/dining with balcony for your early morning coffee, fitted kitchen including integrated fridge/freezer and washing machine, two double bedrooms and bathroom, further benefits include double glazing throughout, gas central heating allocated parking space, visitors parking front & rear.
EARLY INSPECTION RECOMMENDED. 

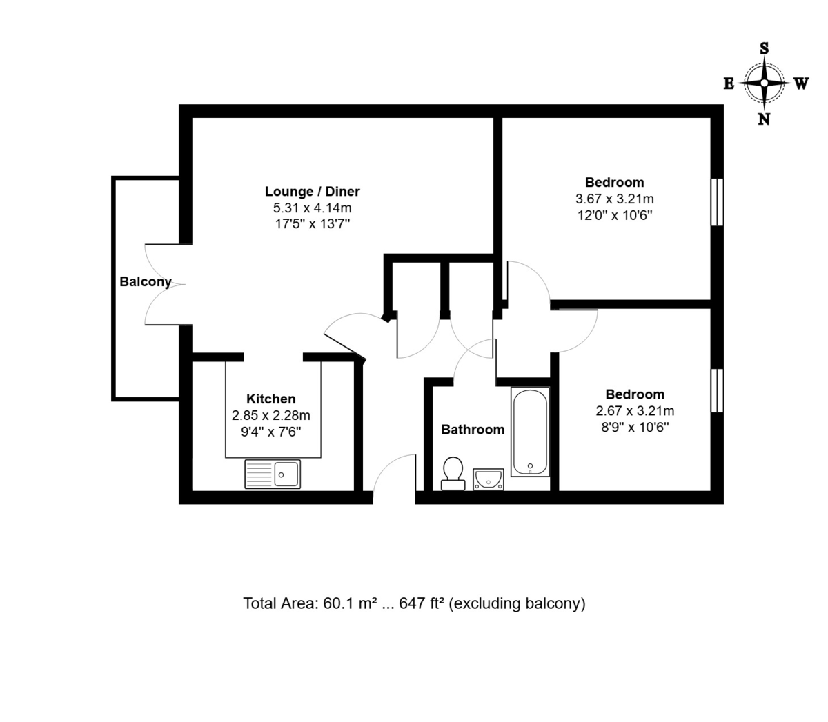
COMMUNAL ENTRANCE HALL Electric & gas meter cupboard, carpeted stairs leading to entrance hall on first floor.  

ENTRANCE HALL Door into entrance hall, radiator with cover, 2 storage cupboard, doors to lounge/dining, bedrooms and bathroom. 

LOUNGE/DINER 17' 5" x 13' (5.31m x 3.96m) Carpeted flooring, radiator, double glazed French doors out to balcony, opening to kitchen. 

KITCHEN 9' 4" x 7' 6" (2.84m x 2.29m) Modern fitted kitchen with eye level and matching base units with roll edge work tops, 4 ring gas hob with extractor over, electric oven, stainless steel sink and drainer with mixer tap, gas combi boiler in concealed wall unit, boiler serviced regularly vinyl floor covering.  

BALCONY Ideal for a small table and chairs. 

BEDROOM 1 12' x 10' 6" (3.66m x 3.2m) Carpeted flooring, radiator, double glazed window to rear aspect. 

BEDROOM 2 10' 6" x 8' 9" (3.2m x 2.67m) Carpeted flooring, radiator, double glazed window to rear aspect. 

BATHROOM Comprising low level WC, wash hand basin with storage under, bath with mixer shower attachment, extractor fan, chrome heated towel rail, vinyl floor covering. 

OUTSIDE 1 Allocated parking space to the rear, 3 visitor spaces to the front and 2 to the rear. 

LEASE DETAILS 80 Years remaining on the lease
Maintenance & service charge is £1,368.00 P.A.
Ground Rent £250.00 P.A.
Management company NRM LTD 

SERVICES We understand all mains services are connected. 

NEAREST SCHOOLS Hillside Primary School & Stoke High School Ormiston Academy. 

DIGITAL MARKETS, COMPETITION AND CONSUMER ACT 2024 (DMCC)
Your Ipswich Ltd has not tested any electrical items, appliances, plumbing or heating systems and therefore cannot testify that they are operational. These particulars are set out as a general outline only for the guidance of potential purchasers or tenants and do not constitute an offer or contract. Photographs are not necessarily comprehensive or current and all descriptions, dimensions, references to condition necessary permissions for use and occupation and other details are given in good faith and believed to be correct but should not be relied upon as statements of, or representations of, fact. Intending purchasers or tenants must satisfy themselves by inspection or otherwise as to the correctness of each of them. We have taken steps to comply with the Digital Markets, Competition and Consumer Act 2024 (DMCC), which require both the seller and their agent to disclose anything, within their knowledge, that would affect the buying decision of the average consumer. If there are any aspects of this property that you wish to clarify before arranging an appointment to view or considering an offer to purchase, please contact us and we will make every effort to be of assistance.

Your Ipswich Ltd, as part of their service to both vendor and purchaser, offer assistance to arrange mortgage and insurance policies, legal services, energy performance certificates, and the valuation and sale of any property relating to any purchaser connected to this transaction. Your Ipswich Ltd confirms they will not prefer one purchaser above another solely because he/she has agreed to accept the offer of any other service from Your Ipswich Ltd. Referral commission (where received) is in the range of £60 to £200.

 

AGENT’S STAMP DUTY NOTE
Please be advised that as of the 1st of April 2025, the government is changing the stamp duty and land tax structure on all residential purchases, which may affect the cost of stamp duty and land tax for your property purchase.
As of the 1st of April 2025, stamp duty and land tax will become due on all residential purchases of £125,000 or more. First time buyers will be required to pay stamp duty and land tax on all purchases of £300,000 or more.
If you are purchasing a second home, you will also be required to pay an additional 5% stamp duty and land tax.
 

BROADBAND & MOBILE PHONE COVERAGE
Broadband- To check the broadband coverage available in the area go to
https://checker.ofcom.org.uk/en-gb/broadband-coverage

Mobile Phone- To check mobile phone coverage in the area go to
https://checker.ofcom.org.uk/en-gb/mobile-coverage
 

Property Ref: 100138005396

Share:

Similar Properties

Yeoman Close, Ipswich

2 Bedroom Apartment | Offers in excess of £130,000

NO ONWARD CHAIN - We are delighted to be offering for sale this beautifully well presented 2 bedroom 3rd floor apartment...

St Edmunds House, Rope Walk, Ipswich Suffolk

2 Bedroom Apartment | Offers in excess of £125,000

NO ONWARD CHAIN - A great opportunity to purchase this apartment centrally located close to the University/college, vibr...

Grebe Close, Ipswich

1 Bedroom Apartment | £115,000

NO ONWARD CHAIN - An ideal opportunity for the DIY enthusiast, first time buyer or investor to purchase this ex-local au...

London Road, Ipswich

2 Bedroom Ground Floor Flat | Guide Price £135,000

Your Ipswich presents to the market this ground floor 2 bedroom apartment. The property is situated close to Ipswich tow...

Constitution Hill, Ipswich

1 Bedroom Apartment | Guide Price £150,000

CHAIN FREE - A rare investment opportunity to purchase a one bedroomed apartment located in a prime residential area, cl...

Dover Road, Ipswich

3 Bedroom End of Terrace House | Offers in excess of £150,000

28 DOVER ROAD - HOME OPEN 1PM - 2PM WEDNESDAY AUGUST 27TH & FRIDAY 29TH AUGUST 12 NOON - 1PM. NO APPOINTMENT NEEDED.NO O...

Your Ipswich (Ipswich)

125 Dale Hall Lane, Ipswich, Suffolk, IP1 4LS

01473 289333

How much is your home worth?

Use our short form to request a valuation of your property.

Request a Valuation

Mortgage Calculator

Amount Borrowed: £
Total Amount Repayable: £
Total Monthly Payment: £
©2026 The Guild of Property Professionals. All rights reserved. Terms and Conditions | Privacy Policy | Cookie Policy | Complaints Policy | Members Login
The Guild of Property Professionals Trading Address: 121 Park Lane, London W1K 7AG. GPEA Limited. Registered in England & Wales.  Company No: 02819824.  Registered Office Address: 2 St. Stephen's Court, St. Stephen's Road, Bournemouth, Dorset, England, BH2 6LA.  VAT Registration No: 576 8795 61
Book a Property Valuation Update Cookies Preferences