Aldgate Court, Ketton, Stamford

£350,000

3 Bedroom Character Property for sale in Ketton

3 3 2
  • Beautifully Converted Maltings Within A Sought-After Development
  • Peaceful Village Location With Easy Access To Stamford And The A1
  • Over 1,500 sq. ft. Of Flexible Accommodation
  • Three/Four Double Bedrooms & Two Bathrooms
  • Contemporary Kitchen & Stylish Interiors
  • 2/3 Reception Rooms
  • Allocated Parking for 2 Vehicles - One space Covered in Open Fronted Barn
  • Communal Garden
  • Please Refer to Attached KFB For Material Information Disclosures


Accommodation

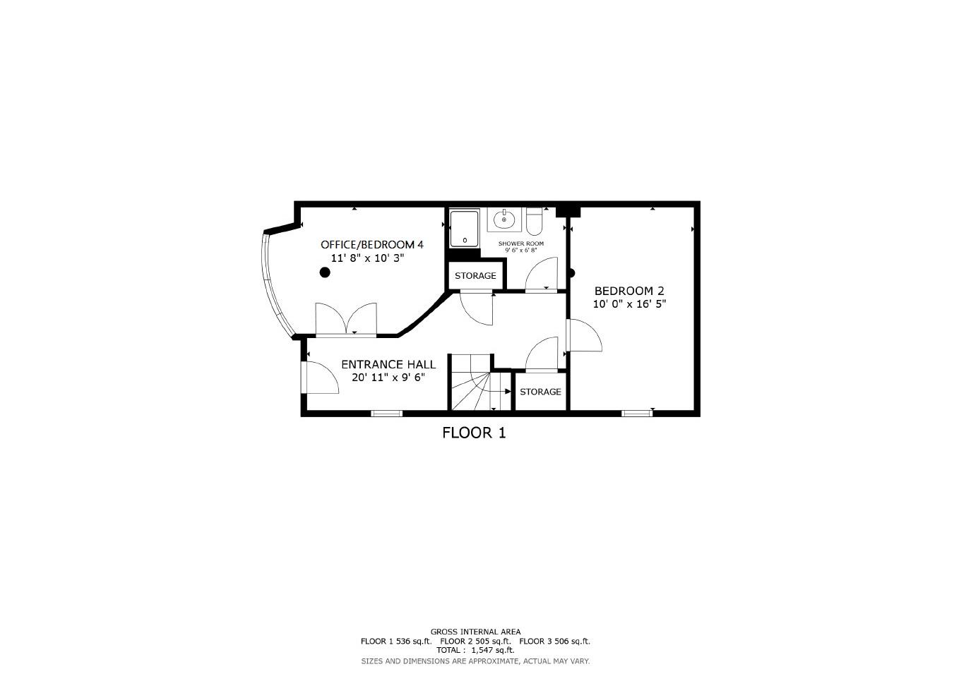
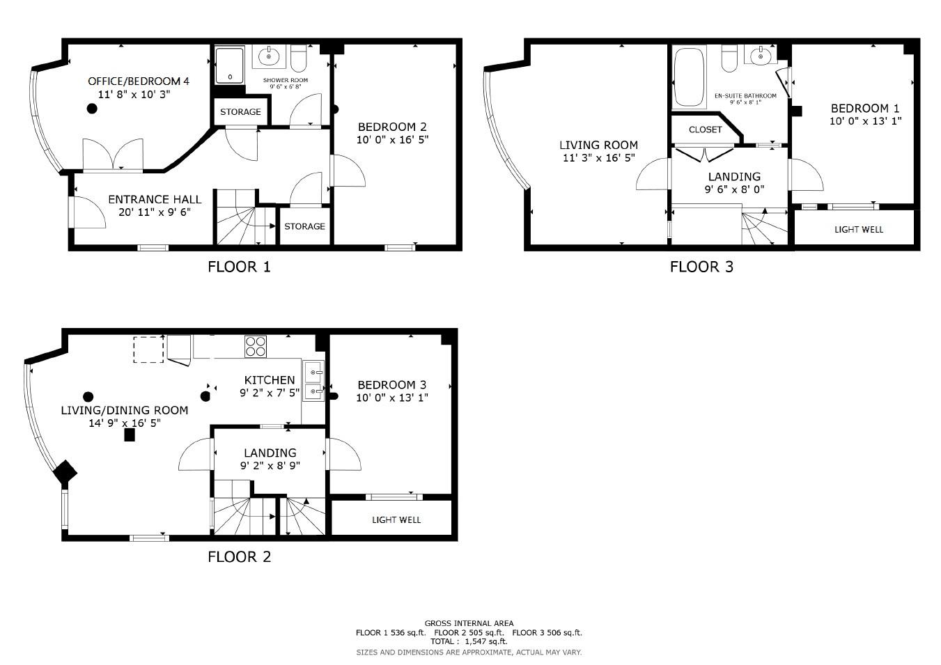
Ground Floor:
The welcoming entrance hall leads to a versatile office/4th bedroom, ideal for remote working, alongside a well-proportioned double bedroom and a modern shower room. Two generous storage cupboards provide excellent practicality.

First Floor:
A striking open-plan living and dining room features exposed stonework and large windows, creating a warm and airy atmosphere. The adjoining kitchen is fitted with contemporary units, integrated appliances, and ample worktop space - perfect for both everyday living and entertaining. A further double bedroom completes this floor.

Second Floor:
The top floor houses the primary bedroom suite, which includes a stylish en-suite bathroom, built-in closet, and access to the main living room - ideal as a private retreat or reading space.

Agents Note:
Local Authority - Rutland
Council Tax Band - D
EPC Rating - C
Annual Service Charge - £1,920.00 per Annum (Currently Paid monthly - £160.00) Service charge incudes all maintenance around the property, gardening, buildings insurance, general DIY, window cleaning, smoke vent certification in atrium.

Central Courtyard

Entrance Hall
6.38m x 2.90m (20'11" x 9'6")

Office/Bedroom 4
3.56m x 3.12m (11'8" x 10'3")

Shower Room
2.90m x 2.03m (9'6" x 6'8")

Bedroom 2
3.05m x 5.00m (10'0" x 16'5")

First Floor Landing
2.79m x 2.44m (9'2" x 8'0")

Living/Dining Room
4.50m x 5.00m (14'9" x 16'5")

Kitchen
2.79m x 2.26m (9'2" x 7'5")

Bedroom 3
3.05m x 3.99m (10'0" x 13'1")

Second Floor Landing
2.90m x 2.44m (9'6" x 8'0")

Living Room
3.43m x 5.00m (11'3" x 16'5")

Bedroom 1
3.05m x 3.99m (10'0" x 13'1")

En Suite Bathroom
2.90m x 2.46m (9'6" x 8'1")

Communal Garden

Allocated Parking for 2 including Car Port


Sizes and dimensions are calculated using a laser measuring modelling device and as such whilst representative it must be noted that they are all approximate, actual sizes may vary.

Important Information

  • This is a Freehold property.
  • This Council Tax band for this property is: D
  • EPC Rating is C

Property Ref: 34266691

Share:

Similar Properties

Livermore Green, Peterborough

4 Bedroom Detached House | Offers in excess of £350,000

Situated in a quiet cul-de-sac within the popular residential area of Werrington, this spacious four-bedroom detached ho...

Gloucester Road, Stamford

3 Bedroom Detached House | £350,000

Introducing 7a Gloucester Road, a beautifully finished new build detached home located in a quiet residential area of St...

High Street, St Martins

2 Bedroom Flat | £330,000

This Stunning Maisonette Apartment is located in the very heart of historic Stamford just behind The George Hotel, and i...

Torkington Gardens, Stamford

3 Bedroom Semi-Detached House | £360,000

Well-presented 3 bedroom semi detached house situated in the heart of Stamford, close to Waitrose and within a five-minu...

Primrose Way, Stamford

3 Bedroom Detached House | £370,000

Immaculate 3-Bedroom Detached Home – Fully Renovated to an Exceptional Standard. A rare opportunity to purchase a stunni...

Recreation Ground Road, Stamford

3 Bedroom End of Terrace House | £375,000

3-Bedroom Victorian Townhouse | 4 Floors | Enviable Central Location | Period Charm with Modern LivingThis beautifully p...

Goodwin Property (Stamford)

St Johns Street, Stamford, Lincolnshire, PE9 2DA

01780 750000

How much is your home worth?

Use our short form to request a valuation of your property.

Request a Valuation

Mortgage Calculator

Amount Borrowed: £
Total Amount Repayable: £
Total Monthly Payment: £
©2026 The Guild of Property Professionals. All rights reserved. Terms and Conditions | Privacy Policy | Cookie Policy | Complaints Policy | Members Login
The Guild of Property Professionals Trading Address: 121 Park Lane, London W1K 7AG. GPEA Limited. Registered in England & Wales.  Company No: 02819824.  Registered Office Address: 2 St. Stephen's Court, St. Stephen's Road, Bournemouth, Dorset, England, BH2 6LA.  VAT Registration No: 576 8795 61
Book a Property Valuation Update Cookies Preferences