Gloucester Road, Stamford

£350,000
SSTC
This property listing is now SSTC

3 Bedroom Detached House for sale in Stamford

2 3 2
  • Brand New Detached Home – Built to a high specification with modern finishes throughout.
  • Spacious Open-Plan Kitchen/Diner
  • Three Double Bedrooms
  • Two Reception Rooms
  • Contemporary Bathrooms
  • Private Enclosed Garden
  • Energy Efficient & Low Maintenance - Double glazed & Air Source Heat Pump
  • Walking Distance of Town Centre & Schooling
  • Please Refer to Attached KFB For Material Information Disclosures


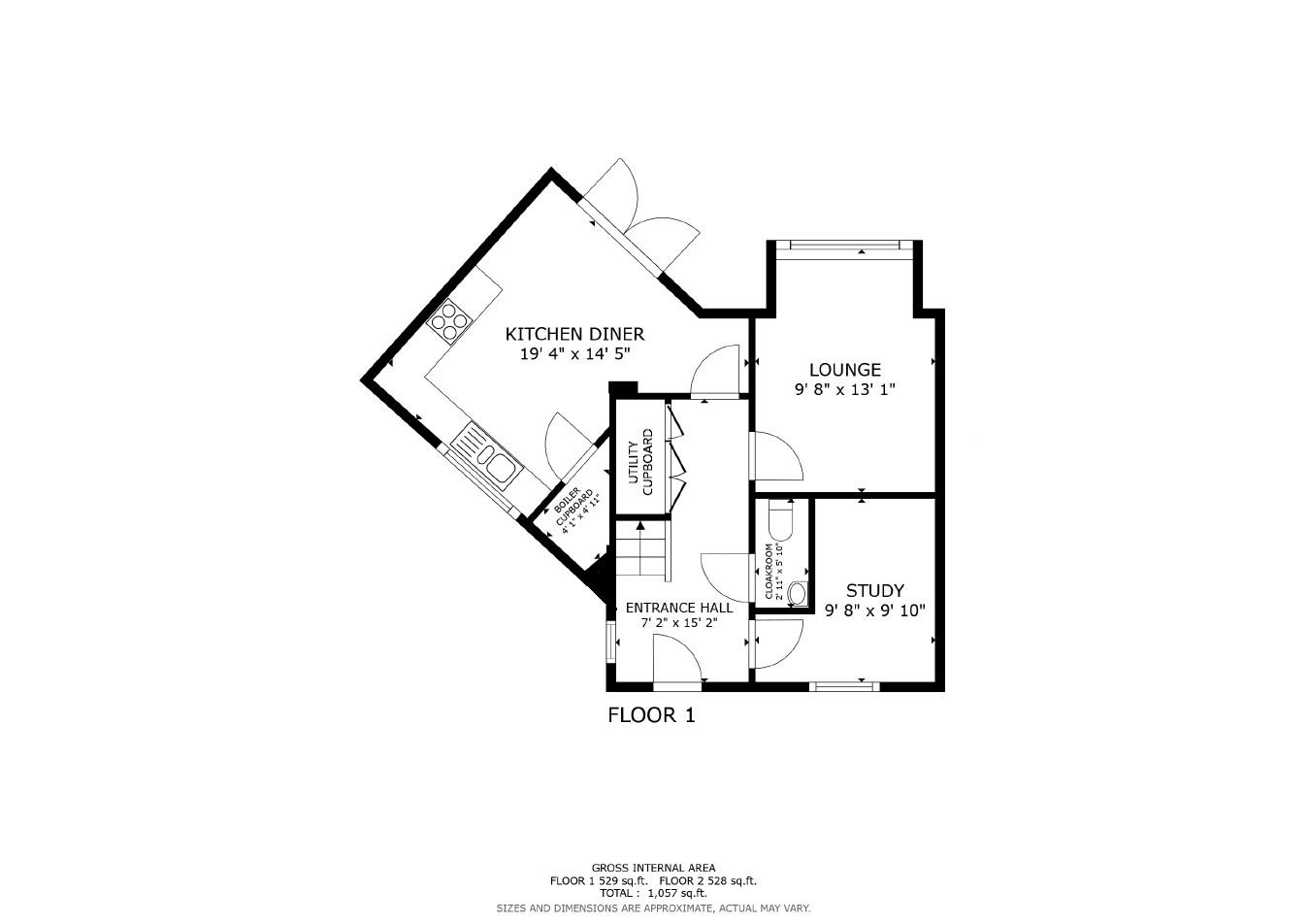
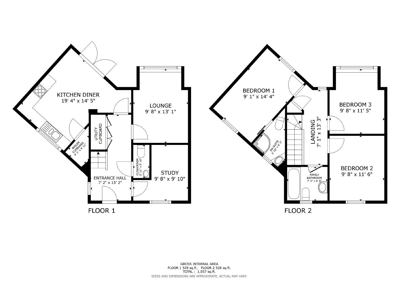
Upon entering the home, you are greeted by a light and spacious entrance hall with wood-effect flooring and access to a utility cupboard and cloakroom. To the front is a versatile study, ideal for working from home or as a playroom. The generous lounge sits centrally and enjoys a large window offering plenty of natural light.

To the rear, the standout kitchen/diner is a fantastic space for entertaining and everyday living. Finished to a high standard with integrated appliances and ample cupboard space, it opens directly onto the garden via French doors – perfect for indoor-outdoor living.

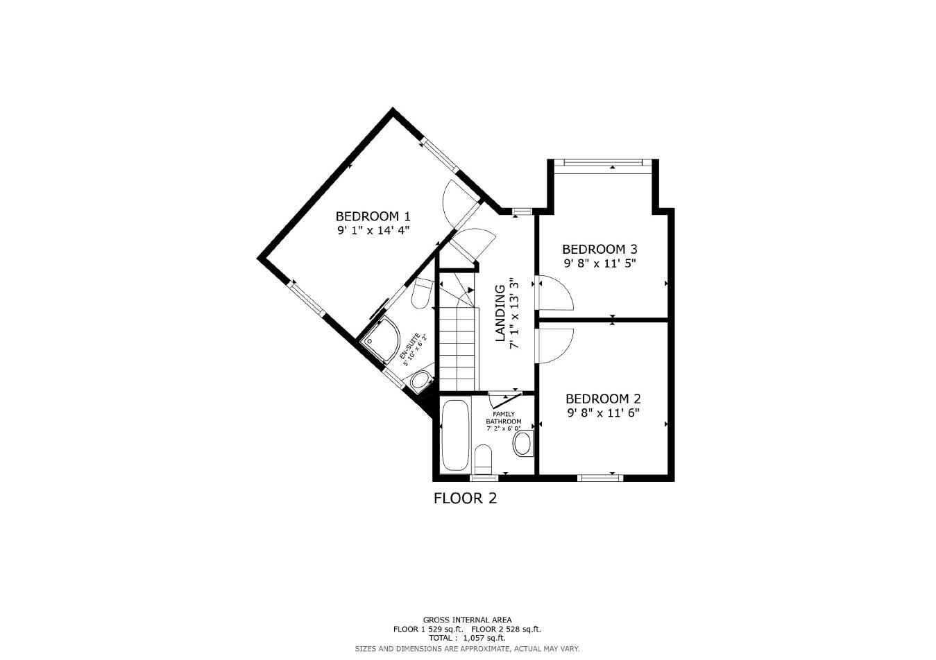
Upstairs, the property boasts three double bedrooms, including a spacious master bedroom with en-suite shower room. Bedrooms 2 and 3 are well-proportioned and served by a contemporary family bathroom.

The property sits behind a newly installed timber fence, offering privacy and curb appeal. The garden wraps around the property, providing a blank canvas for landscaping or family use. There's ample space for creating a patio or lawn area, with gravel laid for easy maintenance.

Agents Note:
Local Authority - South Kesteven
Council Tax Band - New Build - Rating not available yet
EPC Rating - C

Entrance Hall
2.18m x 4.62m (7'2" x 15'2")

Cloakroom
0.89m x 1.78m (2'11" x 5'10")

Study
2.95m max x 3.00m (9'8" max x 9'10")

Lounge
2.95m x 3.99m (9'8" x 13'1")

Kitchen Diner
5.89m max x 4.39m (19'4" max x 14'5")

Landing
2.16m x 4.04m (7'1" x 13'3")

Bedroom 1
2.77m x 4.37m (9'1" x 14'4")

En-Suite Shower Room
1.78m x 1.88m (5'10" x 6'2")

Bedroom 2
2.95m x 3.51m (9'8" x 11'6")

Bedroom 3
2.95m x 3.48m (9'8" x 11'5")

Family Bathroom
2.18m x 1.83m (7'2" x 6'0")


Sizes and dimensions are calculated using a laser measuring modelling device and as such whilst representative it must be noted that they are all approximate, actual sizes may vary.

Important Information

  • This is a Freehold property.
  • This Council Tax band for this property is: TBC
  • EPC Rating is C

Property Ref: 34376578

Share:

Similar Properties

Livermore Green, Peterborough

4 Bedroom Detached House | Offers in excess of £350,000

Situated in a quiet cul-de-sac within the popular residential area of Werrington, this spacious four-bedroom detached ho...

Aldgate Court, Ketton, Stamford

3 Bedroom Character Property | £350,000

Tucked away in the sought-after village of Ketton, just a short drive from the historic market town of Stamford, this be...

High Street, St Martins

2 Bedroom Flat | £330,000

This Stunning Maisonette Apartment is located in the very heart of historic Stamford just behind The George Hotel, and i...

Torkington Gardens, Stamford

3 Bedroom Semi-Detached House | £360,000

Well-presented 3 bedroom semi detached house situated in the heart of Stamford, close to Waitrose and within a five-minu...

Primrose Way, Stamford

3 Bedroom Detached House | £370,000

Immaculate 3-Bedroom Detached Home – Fully Renovated to an Exceptional Standard. A rare opportunity to purchase a stunni...

Recreation Ground Road, Stamford

3 Bedroom End of Terrace House | £375,000

3-Bedroom Victorian Townhouse | 4 Floors | Enviable Central Location | Period Charm with Modern LivingThis beautifully p...

Goodwin Property (Stamford)

St Johns Street, Stamford, Lincolnshire, PE9 2DA

01780 750000

How much is your home worth?

Use our short form to request a valuation of your property.

Request a Valuation

Mortgage Calculator

Amount Borrowed: £
Total Amount Repayable: £
Total Monthly Payment: £
©2026 The Guild of Property Professionals. All rights reserved. Terms and Conditions | Privacy Policy | Cookie Policy | Complaints Policy | Members Login
The Guild of Property Professionals Trading Address: 121 Park Lane, London W1K 7AG. GPEA Limited. Registered in England & Wales.  Company No: 02819824.  Registered Office Address: 2 St. Stephen's Court, St. Stephen's Road, Bournemouth, Dorset, England, BH2 6LA.  VAT Registration No: 576 8795 61
Book a Property Valuation Update Cookies Preferences