Wordsworth Street, Lincoln

£1,350,000

4 Bedroom Apartment for sale in Lincoln

4 4
  • Luxury Penthouse Apartment
  • Prestigious Bailgate Court Development
  • Impressive Open Plan Living Kitchen Diner
  • Roof Terrace With Castle & Cathedral Views
  • 4 Bedrooms, 4 Bathrooms
  • Secure Gated Car Park with Three Allocated Spaces
  • Communal Gardens with City views
  • NO CHAIN
  • EPC Energy Rating - D
  • Council Tax Band - F (Lincoln City Council)

Perfectly positioned in the heart of Bailgate Court, this exceptional Penthouse Apartment boasts arguably the finest views in Lincoln, overlooking both the iconic Cathedral and Castle. The largest of just 13 apartments within this exclusive gated development, the property offers luxurious accommodation arranged over two floors. Period charm is beautifully retained with high ceilings, sash windows and original beams, while seamlessly blending with modern comforts including underfloor heating throughout, a contemporary fitted kitchen with integrated appliances, and indulgent bathrooms with smart technology. Set within secure, gated grounds, the apartment further benefits from three allocated parking spaces and access to communal landscaped gardens. A true highlight of the property is the spacious roof terrace – a rare and remarkable vantage point offering breathtaking views across Lincoln's historic Bailgate. This is a rare opportunity to acquire a truly outstanding home in one of Lincoln's most sought-after locations – early viewing is highly recommended. 

LOCATION The historic Cathedral and University City of Lincoln has the usual High Street shops and department stores, plus banking and allied facilities, multiplex cinema, Marina and Art Gallery. The famous Steep Hill leads to the Uphill area of Lincoln and the Bailgate, with its quaint boutiques and bistros, the Castle, Cathedral and renowned Bishop Grosseteste University. 

BAILGATE COURT A highly sought-after, secure gated development of just 13 apartments, Bailgate Court combines elegant Georgian architecture with a stylish contemporary extension. Nestled in the very heart of Lincoln's historic Cathedral Quarter, this prestigious development is an exquisite conversion of a Grade II listed 18th century property.
Fully restored and modernised in 2018/19, the building offers a rare blend of period charm and modern luxury, with breathtaking views over Lincoln Cathedral, the Castle, and the City Centre. Perfectly positioned, Bailgate Court sits amongst the boutique shops and restaurants of the Bailgate area in 'Uphill' Lincoln, while being only a short stroll from the city centre, train station, and university. 

COMMUNAL ENTRANCE With secure coded entry system, staircases and elevators to all floors. 

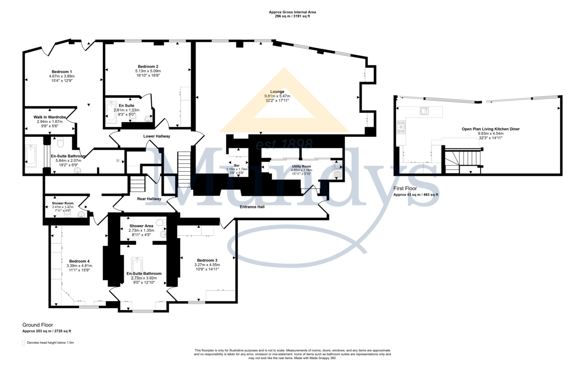
ENTRANCE HALL An impressive light filled entrance hall with fully glazed ceiling, original beams and oak flooring with underfloor heating.  

UTILITY ROOM 15' 11" x 3' 10" (4.85m x 1.17m) Fitted with a quality range of wall and base units with full height storage cupboards with sliding doors, stainless steel sink with mixer tap over, spaces for washing machine and tumble dryer, laminate flooring with underfloor heating and spotlights.  

LOWER HALLWAY With understairs storage cupboard, video intercom system and oak flooring with underfloor heating. 

LOUNGE 32' 2" x 17' 11" (9.8m x 5.46m) With four double glazed picture windows with fitted blinds and views of Lincoln Cathedral and Lincoln Castle, contemporary electric fire, oak flooring with underfloor storage, fitted bar area with wine storage, shelving and storage cupboards. 

BEDROOM 1 15' 4" x 12' 9" (4.67m x 3.89m) With two double glazed picture windows with fitted blinds and views of Lincoln Cathedral and Lincoln Castle and underfloor heating. 

WALK IN WARDROBE With a range of fitted wardrobes with lighting, fitted drawers, spotlights and underfloor heating.  

EN SUITE BATHROOM Fitted with a luxurious four piece suite comprising of raised bath with starlight ceiling, inset television and Mira smart taps, wash hand basin in a vanity style unit with storage beneath, spacious walk in shower cubicle with rainfall shower and close coupled WC, chrome towel radiator, spotlights, tiled walls, tiled flooring with underfloor heating.  

BEDROOM 2 16' 10" x 16' 8" (5.13m x 5.08m) With two double glazed picture windows with fitted blinds and views of Lincoln Cathedral and Lincoln Castle, fitted drawers and dressing table and underfloor heating. 

EN SUITE BATHROOM Fitted with a three piece suite comprising of panelled bath with Mira smart shower over, glass shower screen and inset television, wash hand basin in a vanity style unit with storage beneath and close coupled WC, towel radiator, tiled walls, tiled flooring with underfloor heating.  

REAR HALLWAY With oak staircase to the upper floor and oak flooring with underfloor heating.  

BEDROOM 3 14' 11" x 10' 9" (4.55m x 3.28m) With sash window giving views of the City of Lincoln and window seat with storage beneath, fitted wardrobes, vaulted ceiling with original beams and oak flooring with underfloor heating.  

JACK AND JILL BATHROOM Fitted with a luxurious four piece suite comprising of freestanding bath tub with Mira smart taps, wash hand basin in a vanity style unit with storage beneath, walk in shower cubicle with rainfall shower and close coupled WC, chrome towel radiator, storage cupboards and dressing table, spotlights, impressive feature tiled wall, tiled flooring with underfloor heating, vaulted ceiling with original beams and sash window giving views across the City of Lincoln.  

BEDROOM 4 15' 9" x 11' 1" (4.8m x 3.38m) With sash window giving views of the City of Lincoln, range of fitted wardrobes, drawers and dressing table, concealed pull down double bed, vaulted ceiling with original beams and oak flooring with underfloor heating. 

SHOWER ROOM Fitted with a three piece suite comprising of shower cubicle with rainfall shower head and Mira smart shower, wash hand basin in a vanity style unit with storage beneath and close coupled WC, chrome towel radiator, spotlights, tiled walls and tiled flooring with underfloor heating.  

OPEN PLAN LIVING KITCHEN DINER 32' 3" x 14' 11" (9.83m x 4.55m) An impressive open plan room. The luxury kitchen is fitted with a range of modern storage cupboards with Dekton work surfaces over, twin undermount sinks with mixer tap over, boiling water tap and Insinkerator, Neff induction hob, twin eye level Neff electric ovens with hide and slide doors, steam oven and microwave, integrated Neff dishwasher, AEG tall fridge and freezer, spotlights, downlighters, oak flooring with underfloor heating, double glazed sliding doors giving access to the roof terrace.  

ROOF TERRACE A fantastic space with decked seating areas, artificial lawn, and panoramic views of Lincoln Castle, Cathedral and the Bailgate.  

OUTSIDE Bailgate Court is set within beautifully landscaped communal gardens with lawned areas, mature trees and seating areas. There is a secure gated car park with electric gates and three allocated parking spaces. 

LEASEHOLD INFORMATION Length of Lease - 999 years from and including 4th May 2022

Years Remaining on Lease - 996 years

Annual Ground Rent - £TBC

Ground Rent Reviewed - Annually

Annual Service Charge Amount - TBC

Service Charge Reviewed - Annually

All figures should be checked with the Vendor/Solicitor prior to Exchange of Contracts and completion of the sale.  

Property Ref: 58704_102125034988

Share:

Similar Properties

Waddington House, Maltkiln Lane, Waddington

7 Bedroom Detached House | £1,250,000

Waddington House is a stunning Grade II Listed 7 bedroom detached residence, part of which originally dates back to circ...

St. Margarets Lodge, 2 Upper Lindum Street

Apartment | Guide Price £1,100,000

Prestigious Residential Investment Property For Sale - Superb residential investment opportunity comprising Four Luxury...

Lindum Terrace, Lincoln

7 Bedroom Semi-Detached House | £999,995

NO ONWARD CHAIN - An impressive semi-detached family residence located in this prime Uphill area of Lincoln and close to...

Church Hill, Washingborough, Lincoln

10 Bedroom Detached House | £1,650,000

Set in one of Washingborough's most desirable areas, Church Hill, this outstanding 10 bedroom residence combines excepti...

James Street, Lincoln

4 Bedroom Detached House | £2,000,000

An exceptional and rare opportunity to acquire a modern and unique family home in a secluded position in one of the most...

Mundys (Lincoln)

29 Silver Street, Lincoln, Lincolnshire, LN2 1AS

01522 510044

How much is your home worth?

Use our short form to request a valuation of your property.

Request a Valuation

Mortgage Calculator

Amount Borrowed: £
Total Amount Repayable: £
Total Monthly Payment: £
©2025 The Guild of Property Professionals. All rights reserved. Terms and Conditions | Privacy Policy | Cookie Policy | Complaints Policy | Members Login
The Guild of Property Professionals Trading Address: 121 Park Lane, London W1K 7AG. GPEA Limited. Registered in England & Wales.  Company No: 02819824.  Registered Office Address: 2 St. Stephen's Court, St. Stephen's Road, Bournemouth, Dorset, England, BH2 6LA.  VAT Registration No: 576 8795 61
Book a Property Valuation Update Cookies Preferences