Minster Road, Cricklewood, London, NW2

£599,000

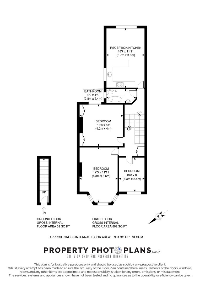
2 Bedroom Flat for sale in London

2 2 1

Spacious 2/3 Bedroom First-Floor Flat | Share of Freehold | Excellent Potential

Set on the popular Minster Road, this bright and well-proportioned first-floor flat extends to approximately 901 sq ft and offers excellent potential for first-time buyers or investors alike.
The property is currently arranged as a flexible 2/3 bedroom layout, featuring an open-plan kitchen/reception room, well-sized bedrooms, and a family bathroom. High ceilings and large windows provide an abundance of natural light throughout, creating a bright and airy feel.
There is clear scope to modernise and add value, with further potential to extend into the loft space (subject to the usual planning consents), making this an attractive opportunity for buyers seeking future upside.
Offered with a share of freehold and a long 953-year lease, the flat is ideally located close to Cricklewood Broadway, West Hampstead, and excellent transport links including Thameslink services and the Jubilee Line.
A superb opportunity to step onto the property ladder or secure a solid investment in a sought-after North West London location.

Property Ref: 34223890

Share:

Similar Properties

The Lofts, Grenville Place, Mill Hill, NW7

2 Bedroom Flat | £552,500

Stunning two bedroom, two bathroom (one en-suite) 1st Floor apartment ( 953 sq ft ) set within this unique development o...

Byron Mews, Hampstead, London, NW3

1 Bedroom Flat | £465,000

Lovely Refurbished one bedroom 2nd floor flat featuring one double bedroom, located within a charming modern gated mews...

Carlton Mansions Chichele Road, Willesden Green, NW2

2 Bedroom Flat | Guide Price £455,000

Living Residential are pleased to bring to the market this lovely 676sqft two bedroom garden flat. The property is locat...

Mackellar House, Burgess Hill, London, NW2

3 Bedroom Flat | £600,000

A well-proportioned three-bedroom ground floor apartment of approx. 873 sq. ft (81 sq. m), situated in a highly sought-a...

Cumbrian Gardens, Cricklewood, London. NW2

3 Bedroom House | £675,000

We are pleased to bring to the market this semi-detached house located on a sought-after road on the Golders Green Estat...

New Trinity Road, East Finchley, London, N2

4 Bedroom Town House | £685,000

Located on New Trinity Road, East Finchley is this end of terraced freehold townhouse (1032 sq.ft / 96 sq.m) built in 20...

Living Residential (West Hampstead)

118 Fortune Green Road, West Hampstead, London, NW6 1DH

0207 4356066

How much is your home worth?

Use our short form to request a valuation of your property.

Request a Valuation

Mortgage Calculator

Amount Borrowed: £
Total Amount Repayable: £
Total Monthly Payment: £
©2026 The Guild of Property Professionals. All rights reserved. Terms and Conditions | Privacy Policy | Cookie Policy | Complaints Policy | Members Login
The Guild of Property Professionals Trading Address: 121 Park Lane, London W1K 7AG. GPEA Limited. Registered in England & Wales.  Company No: 02819824.  Registered Office Address: 2 St. Stephen's Court, St. Stephen's Road, Bournemouth, Dorset, England, BH2 6LA.  VAT Registration No: 576 8795 61
Book a Property Valuation Update Cookies Preferences