Lumley Estates are proud to present this stunning four bedroom semi-detached bungalow in the ever-desirable location of Brent.
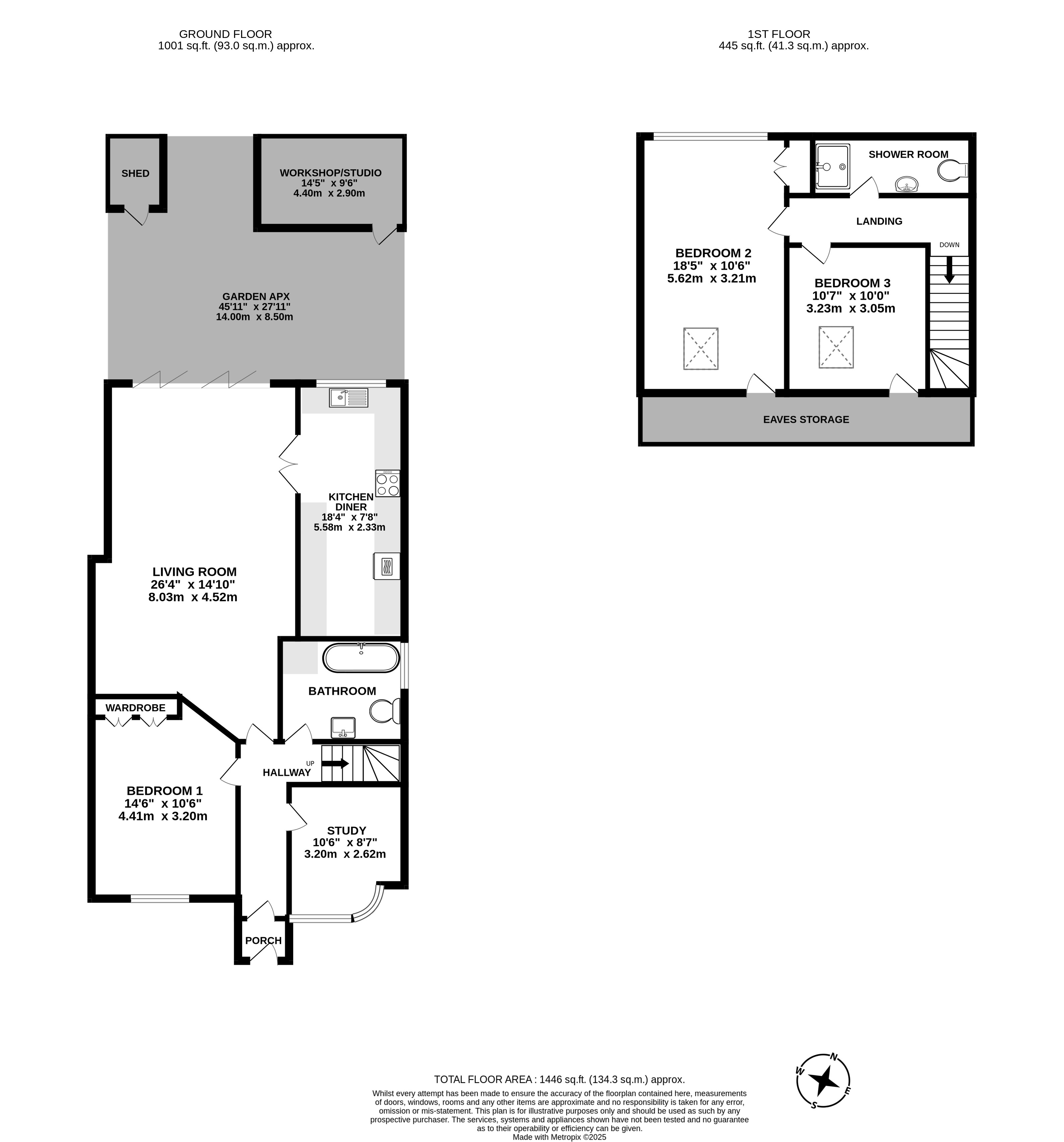
This property briefly consists of; a welcoming entrance porch opening to the entrance hallway, from the hallway you can access the two ground floor bedrooms, ground floor bathroom, the expansive open plan lounge/dining space with patio doors leading out to the garden with outbuilding, from the dining area, the kitchen is accessed via French doors. To the first floor, you can access the main bedroom and bedroom two as well as the shower room with WC.
The expansive lounge and dining room offers a bright, open-plan layout for entertaining. Featuring elegant French doors that open directly into the kitchen, the space combines comfort and functionality with seamless indoor flow. High ceilings and ample natural light enhance the inviting atmosphere, creating a sophisticated yet welcoming environment.
This property offers a plentiful amount of bedroom space, offering great versatility for any expansive family, and with the additional benefit of having a bathroom to each floor, adding to the convenience.
The rear garden is a generously sized outdoor space, ideal for both leisure and entertaining. It benefits from convenient side access, making it easy to reach without passing through the main house. At the far end of the garden, a practical outbuilding provides ample storage, perfect for garden tools, bikes, or seasonal items.
The property is within proximity to the Welsh Harp Reservoir and Open Spaces. Hendon Station is approximately 0.7 miles away from the property, offering connections into the city and towards Hertfordshire & Luton Airport. Highly regarded local schools are nearby, including the Ofsted rated "Outstanding" The Hyde School.
Important Information
Property Ref: 603603_LUM250080
Hale Grove Gardens, London, NW7
2 Bedroom Apartment | £675,000
**SHARE OF FREEHOLD** Lumley Estates are proud to present this stunning two-bedroom duplex apartment set in the ever des...
Station Road, Radlett, Hertfordshire, WD7
3 Bedroom Terraced House | Guide Price £650,000
Nestled on the highly sought-after Station Road in Radlett, this beautifully presented three-bedroom home offers a perfe...
Hale Grove Gardens, London, NW7
2 Bedroom Apartment | £625,000
**SHARE OF FREEHOLD** Lumley Estates are proud to present this stunning two-bedroom apartment set in the ever desirable...
Orchard Close, Radlett, Hertfordshire, WD7
3 Bedroom Semi-Detached House | £700,000
Nestled within the highly sought-after village of Radlett, this beautifully presented semi-detached home offers generous...
High Firs, Gills Hill, Radlett, Hertfordshire, WD7
2 Bedroom Apartment | £700,000
Situated on High Firs, just off Gills Hill in the heart of Radlett, this well-presented two-bedroom leasehold flat offer...
Orchard Close, Radlett, Hertfordshire, WD7
4 Bedroom Terraced House | £700,000
Lumley Estates are proud to present this immaculate four bedroom home, situated in a cul-de-sac road in the ever desirab...
 
                            Lumley Estates (Radlett)
72 Watling Street, Radlett, Hertfordshire, WD7 7NP
Use our short form to request a valuation of your property.
Request a Valuation