Lady Martin Drive Woodhouse Eaves

Asking Price
£1,650,000

5 Bedroom Detached House for sale in Loughborough

4 5 3
  • Individual Detached Home
  • Exclusive Gated Development
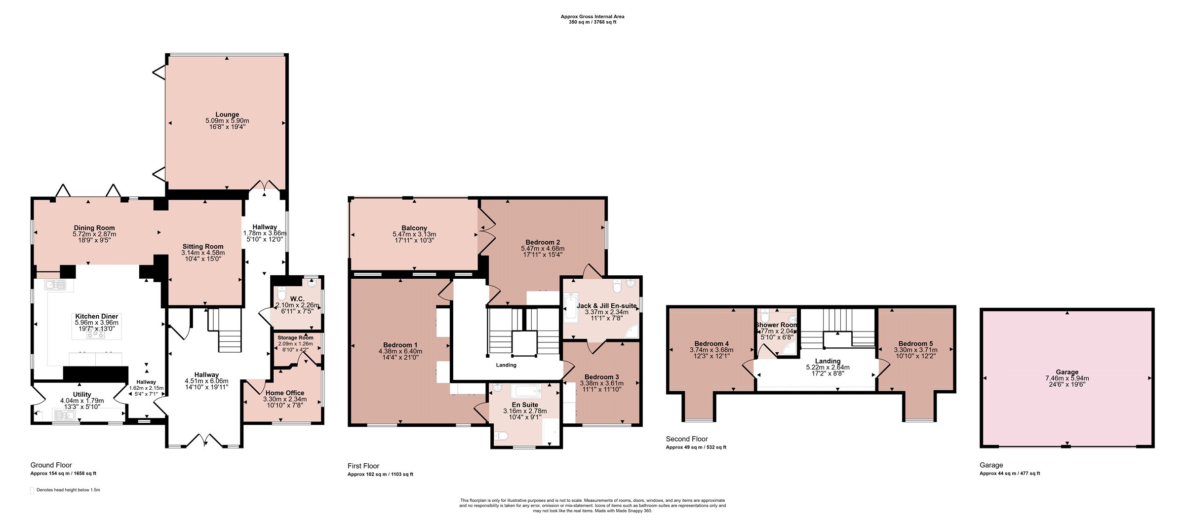
  • Set Across Three Floors
  • 3,750 sqft Accommodation
  • Contemporary Living Kitchen
  • Four Reception Rooms
  • Five Double Bedrooms
  • Energy Rating B
  • Council Tax Band G
  • Tenure Freehold

Located within a select and exclusive gated development of only eight homes is this substantial detached home set in a fabulous landscaped plot of 0.5 acres with a woodland backdrop and scenic Charnwood Forest views. The property is set across three floors and offers over 3,750 sqft of accommodation. Upon entering the home into the spacious hallway, an oak and glazed staircase rises to the first and second floor accommodation and oak doors lead through to spacious room including a contemporary breakfast kitchen as well as four reception rooms which includes a fabulous lounge with high vaulted ceiling with central glass lantern. The reception rooms offer huge versatility as well as a utility room and ground floor cloakroom. On the first floor the principal bedroom has extensive wardrobes with a walk-through dressing area and luxury en-suite bathroom. There is a fabulous guest suite with its own external first floor balcony with far reaching Charnwood Forest views and access to a luxury Jack & Jill bathroom which also serves the third bedroom. On the top floor there are two further double bedrooms and a modern shower room. Outside the grounds come into their own, they have been beautifully landscaped with a large patio terrace and a lit pathway leads to a lower sunken patio surrounded by established lawns abutting woodland providing privacy and a green backdrop. A large driveway leads to an oversized double garage with electric charging point. The property has been meticulously maintained and offers ready to move into accommodation with no chain. Early viewing is strongly advised.

Important Information

  • This is a Freehold property.
  • This Council Tax band for this property is: G
  • EPC Rating is B

Property Ref: BNT_BNT180283

Share:

Similar Properties

Warren Hills Road Abbots Oak

4 Bedroom Detached House | Guide Price £1,595,000

A quite outstanding ‘Grand Designs' Mediterranean style split level contemporary family home. Situated in approximately...

Warren Hills Road Abbots Oak

4 Bedroom Detached House | Guide Price £1,499,999

With approximately 3.68 acres of formal gardens, paddocks and woodland, this stunning property is situated in glorious o...

Sutton Lane Market Bosworth

7 Bedroom Detached House | Guide Price £1,495,000

A stunning Edwardian built, three storey, six-bedroom detached period residence with a further separate Coach House anne...

School Hill Walton on the Wolds

7 Bedroom Detached House | Guide Price £1,900,000

The Old Rectory is a magnificent Grade II listed, detached residence built in 1739, offering three reception rooms, seve...

King Street Seagrave

6 Bedroom Detached House | Guide Price £2,000,000

A truly remarkable 18th century Grade II listed former Rectory sitting adjacent to the Church of All Saints in the much...

Main Street Newtown Linford

6 Bedroom Detached House | Guide Price £2,300,000

Linford House offers over 7,400 sqft of lavishly remodelled and appointed 1700s built period detached family home with s...

Bentons (Melton Mowbray)

47 Nottingham Street, Melton Mowbray, Leicestershire, LE13 1NN

01664 563892

How much is your home worth?

Use our short form to request a valuation of your property.

Request a Valuation

Mortgage Calculator

Amount Borrowed: £
Total Amount Repayable: £
Total Monthly Payment: £
©2025 The Guild of Property Professionals. All rights reserved. Terms and Conditions | Privacy Policy | Cookie Policy | Complaints Policy | Members Login
The Guild of Property Professionals Trading Address: 121 Park Lane, London W1K 7AG. GPEA Limited. Registered in England & Wales.  Company No: 02819824.  Registered Office Address: 2 St. Stephen's Court, St. Stephen's Road, Bournemouth, Dorset, England, BH2 6LA.  VAT Registration No: 576 8795 61
Book a Property Valuation Update Cookies Preferences