Gloucester Road, Malmesbury

£595,000

4 Bedroom Terraced House for sale in Malmesbury

2 4 2
  • Grade II listed townhouse
  • Wonderful charming features throughout
  • 3 large double bedrooms
  • Further single bedroom and versatile attic room
  • 2 bathrooms
  • 2 reception rooms
  • Bespoke kitchen/breakfast room with underfloor heating
  • South-west garden
  • Easy walking distance of the town centre

Description
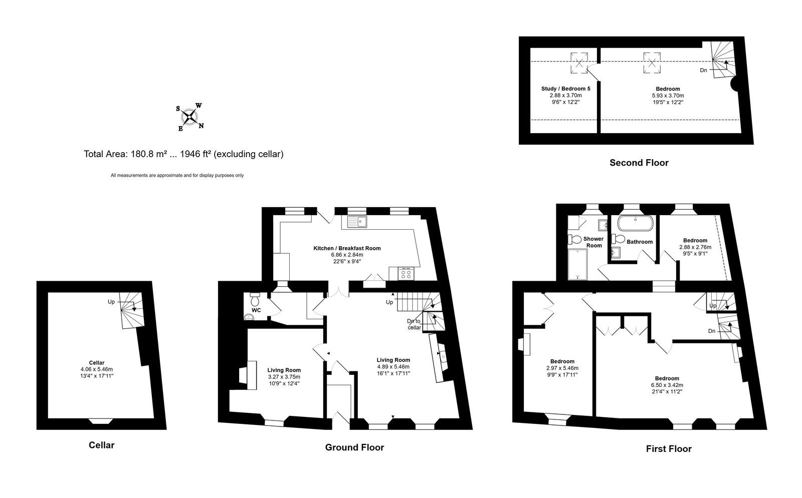
100-102 Gloucester Road is a striking Grade II listed townhouse situated within a convenient location close to the town centre. Dating back to the 18th Century, the property displays an abundance of charm and character featuring exposed timber beams, sash windows and solid wood flooring. The accommodation is generously proportioned throughout extending to around 1,950 sq.ft across three floors with the addition of a useful cellar for storage below. 
 
The ground floor comprises two front reception rooms both with fireplaces and a kitchen/breakfast room at the rear opening to the garden. The bespoke kitchen is fitted with a dishwasher and induction hob plus there is connections for a washing machine and tumble dryer. The kitchen benefits from underfloor heating. There is a downstairs WC to the side. On the first floor, there are two double bedrooms, a single bedroom and two bathrooms; a shower room and bathroom with roll-top bath. There is a further double bedroom on the top floor with exposed timber vaulted ceiling and a versatile room adjoining. 
 
The rear garden is a delight and enjoys a sunny south-westerly aspect. There is a private seating terrace off the back of the kitchen and steps lead up to a good-sized lawn which has been levelled in recent years. On street parking is available within the local vicinity as well as public carparks. 
 
The property has potential for the new owners to put their stamp on it. The property does not have a central heating system though mains gas is connected and there is a combi-boiler installed ready for the full system to be completed. 
Situation
Malmesbury is an ancient hilltop town situated on the southern edge of The Cotswolds. Traditionally a market town serving the rural area of North West Wiltshire, the town is reputed to be the oldest borough in England created by Charter in 880 AD by Alfred the Great. Today, the High Street has numerous independent shops, pubs and restaurants, and there is a new Aldi, Waitrose store and a regular weekly Farmer's market whilst the town has excellent choice of both primary and secondary schools and good recreational and leisure facilities. The M4 motorway (J17) to the south provides fast road access to the major employment centres of Bristol and Swindon together with London and the West Country. Main line rail services are available from Chippenham and Kemble (Paddington in about 75 minutes).
Additional Information
The property is Freehold with mains gas connected through a combi-boiler alongside a wood-burning stove and open fire, underfloor heating in the kitchen, mains drainage, water and electricity. The property is Grade II Listed and located within a conservation area. Superfast broadband is available and there is mobile phone coverage with some limitations. Information taken from the Ofcom mobile and broadband checker website, please check the website for more information. Wiltshire Council Tax Band E.

Important Information

  • This is a Freehold property.
  • This Council Tax band for this property is: E

Property Ref: 1139921

Share:

Similar Properties

The Berrells, Tetbury

3 Bedroom Detached House | £595,000

Situated within this highly desirable private no-through lane beside the Cutwell valley, this detached chalet home enjoy...

Hollis Gardens, Luckington

3 Bedroom Detached House | £595,000

Situated within a desirable mature close, this detached modern house has extended accommodation with further potential t...

Gaston Lane, Sherston

4 Bedroom Link Detached House | Guide Price £595,000

With a stunning interior and great layout, this link-detached modern house has a larger than average garden and driveway...

Bath Road, Tetbury

3 Bedroom Detached House | £615,000

Occupying an excellent position close to the town centre and lovely countryside walks, an individual detached house whic...

The Street, Alderton

4 Bedroom Semi-Detached House | £625,000

Situated in the rural village of Alderton, this attractive double gable fronted semi-detached Cotswold stone cottage off...

Sawyers Close, Minety

4 Bedroom Detached House | £625,000

With front and back gardens, this detached house has been extended over the years offering substantial and versatile liv...

James Pyle & Co (Sherston)

Swan Barton, Sherston, Wiltshire, SN16 0LJ

01666 840886

How much is your home worth?

Use our short form to request a valuation of your property.

Request a Valuation

Mortgage Calculator

Amount Borrowed: £
Total Amount Repayable: £
Total Monthly Payment: £
©2026 The Guild of Property Professionals. All rights reserved. Terms and Conditions | Privacy Policy | Cookie Policy | Complaints Policy | Members Login
The Guild of Property Professionals Trading Address: 121 Park Lane, London W1K 7AG. GPEA Limited. Registered in England & Wales.  Company No: 02819824.  Registered Office Address: 2 St. Stephen's Court, St. Stephen's Road, Bournemouth, Dorset, England, BH2 6LA.  VAT Registration No: 576 8795 61
Book a Property Valuation Update Cookies Preferences