Four bedroom detached bungalow

Guide Price
£550,000
SSTC
This property listing is now SSTC

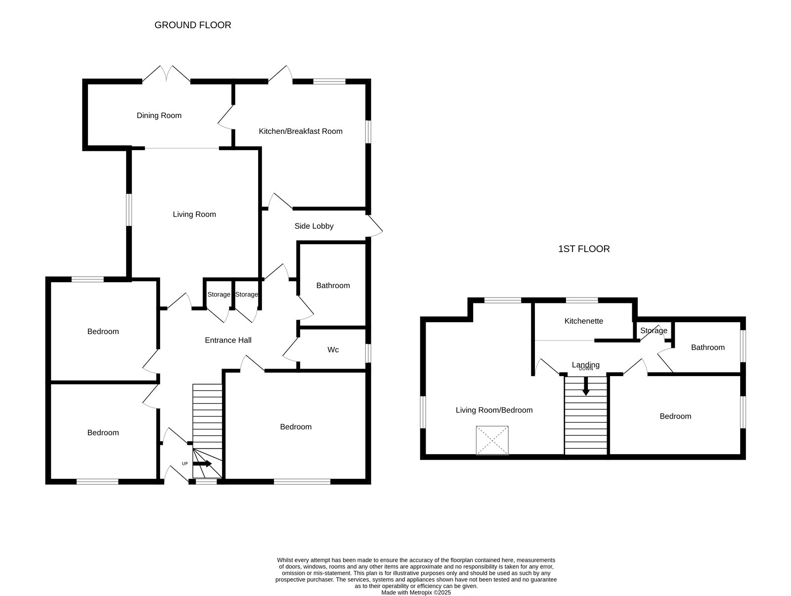
5 Bedroom Detached Bungalow for sale in Manningtree

2 5 2
  • Central Lawford location
  • Spacious and flexible living accommodation
  • Detached family home
  • Possible independent unit to first floor
  • Garage and off-road parking
  • Gardens
  • Easy reach of transport links
  • No onward chain

This spacious property offers flexible living with a unique layout with the main accommodation conveniently laid out on the ground floor, perfect for family life or downsizing without compromise. On the first floor, further accommodation could be a self-contained suite with its own kitchen, bathroom, and living/bedroom space opens the door to multi-generational living or guest accommodation. Outside, the property features ample off-road parking, a garage, and private gardens.

Important Information

  • This is a Freehold property.
  • This Council Tax band for this property is: D
  • EPC Rating is D

Property Ref: DDH_DDH250011

Share:

Similar Properties

Four-bedroomed detached house

4 Bedroom Detached House | Guide Price £550,000

Beautifully presented detached family home in the heart of Ardleigh, with accommodation comprising living room, study, k...

Four bedroom detached bungalow

4 Bedroom Detached Bungalow | Guide Price £550,000

Commanding a sought-after corner plot in highly desirable Welshwood Park, this detached bungalow offers accommodation co...

Four Bedroomed Detached House

4 Bedroom Detached House | Guide Price £535,000

Situated in a sought-after residential area of Lawford, this well-presented detached home offers spacious and versatile...

Four bedroom Link detached bungalow

4 Bedroom Bungalow | Guide Price £600,000

** Guide price £600,000 to £625,000 ** Located in the heart of Bentley, this beautifully presented link-detached bungalo...

Four bedroomed detached cottage

4 Bedroom Cottage | Guide Price £600,000

Set within the sought-after village of East Bergholt, this charming cottage offers well-proportioned and thoughtfully ar...

Five bedroomed detached house

5 Bedroom Detached House | Guide Price £600,000

Situated on the desirable Cansey Lane in the heart of Bradfield, this substantial detached residence presents an excepti...

Kingsleigh Estate Agents (Dedham)

Dedham, Essex, CO7 6DE

01206 940123

How much is your home worth?

Use our short form to request a valuation of your property.

Request a Valuation

Mortgage Calculator

Amount Borrowed: £
Total Amount Repayable: £
Total Monthly Payment: £
©2025 The Guild of Property Professionals. All rights reserved. Terms and Conditions | Privacy Policy | Cookie Policy | Complaints Policy | Members Login
The Guild of Property Professionals Trading Address: 121 Park Lane, London W1K 7AG. GPEA Limited. Registered in England & Wales.  Company No: 02819824.  Registered Office Address: 2 St. Stephen's Court, St. Stephen's Road, Bournemouth, Dorset, England, BH2 6LA.  VAT Registration No: 576 8795 61
Book a Property Valuation Update Cookies Preferences