Leven Pastures, Stokesley

Guide Price
£325,000
Under Offer
This property listing is now Under Offer

4 Bedroom Semi-Detached House for sale in Middlesbrough

2 4 2
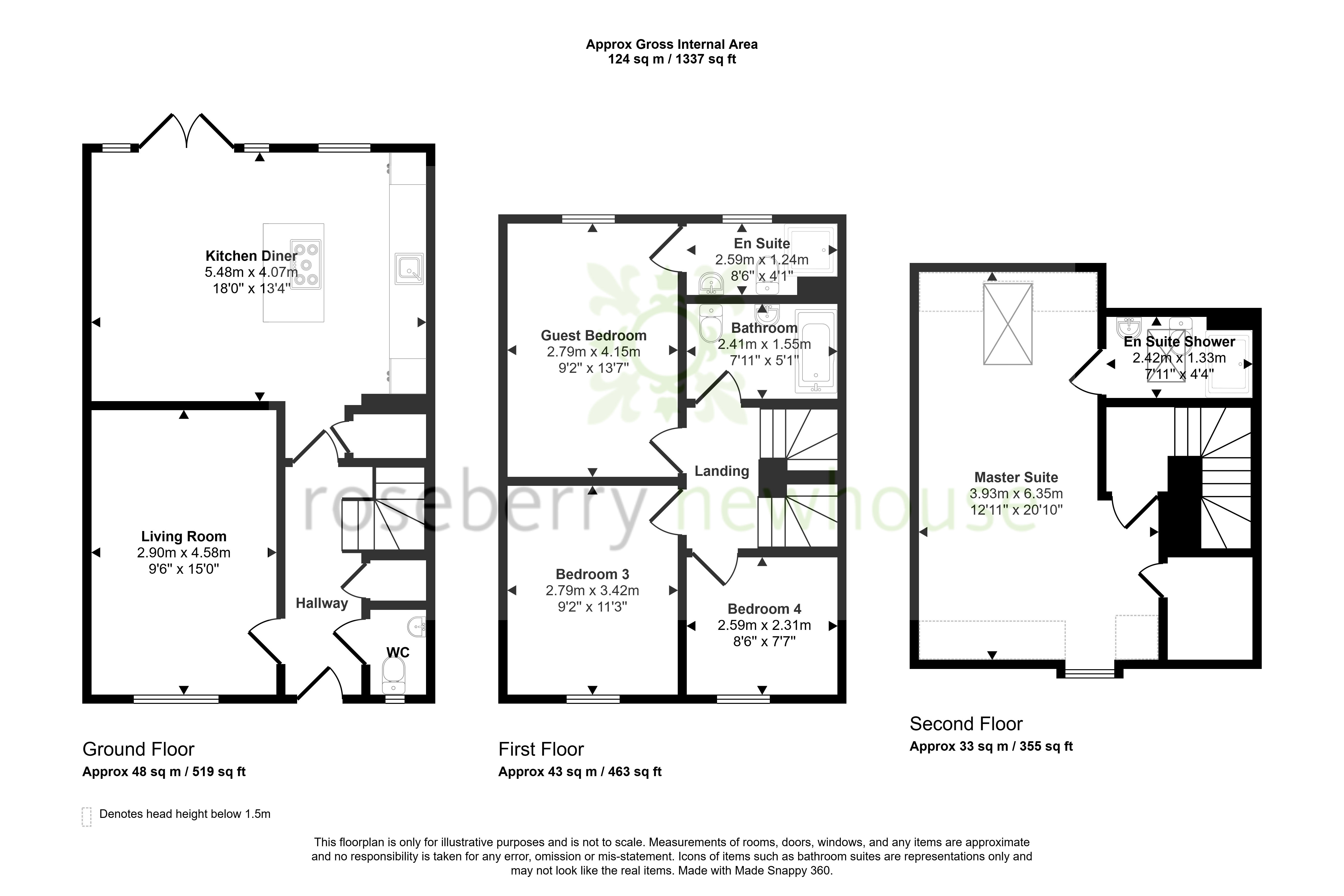
  • Semi detached townhouse Four bedrooms Living room Open plan kitchen diner with Island unit Master bedroom with en suite Guest bedroom with en suite Off street parking Front and rear gardens High s...

Leven Pastures is a stunning development by Brierley Homes consisting of high end bespoke homes on this small and exclusive development close to Stokesley town centre.

With its convenient location, breath taking views of the Cleveland Hills it’s a perfect place to call home.

The Birch design is a three storey semi detached townhouse design with open plan kitchen diner with Island unit as the hub of the home.

The property offers high specifications and comprises; entrance hall with storage cupboards and cloakroom, living room and kitchen family dining with integrated appliances.

On the first floor the master bedroom has an en suite, two further bedrooms and bathroom.

On the second floor there is a guest bedroom with en suite and storage.

Externally there are gardens to the front and rear and off road parking.

Freehold

Photos for marketing purposes only.

Important Information

  • This is a Freehold property.

Property Ref: STO240327

Share:

Similar Properties

Leven Pastures, Stokesley

4 Bedroom Semi-Detached House | Guide Price £325,000

REDUCED RESERVATION FEE £99. Stamp Duty Contribution available on reservations. T&C's ApplyLeven Pastures is a stunning...

St. Cuthbert Avenue, Marton-in-Cleveland

4 Bedroom Detached House | Guide Price £315,000

Set within a sought-after residential area in Marton, this modern four-bedroom detached family home offers generous, wel...

Wainstones Close, Great Ayton

2 Bedroom Detached Bungalow | Guide Price £300,000

Tucked away in a quiet cul-de-sac just a short walk from Great Ayton’s High Street, Wainstones Close is a detached dorme...

Afton Hall, School Lane

2 Bedroom Terraced House | Guide Price £330,000

Set within the historic Friends School development, this character stone-built conversion enjoys a peaceful setting surr...

West Green, Stokesley

2 Bedroom Semi-Detached House | Guide Price £335,000

Tucked away in a discreet position behind the charming surrounds of West Green, this beautifully refurbished character h...

Levenside, Stokesley

4 Bedroom Terraced House | Guide Price £340,000

Tucked away in the very heart of Stokesley’s historic market town, this beautifully characterful cottage is one of those...

Roseberry Newhouse (Stokesley)

Stokesley, North Yorkshire, TS9 5DU

01642 711 111

How much is your home worth?

Use our short form to request a valuation of your property.

Request a Valuation

Mortgage Calculator

Amount Borrowed: £
Total Amount Repayable: £
Total Monthly Payment: £
©2026 The Guild of Property Professionals. All rights reserved. Terms and Conditions | Privacy Policy | Cookie Policy | Complaints Policy | Members Login
The Guild of Property Professionals Trading Address: 121 Park Lane, London W1K 7AG. GPEA Limited. Registered in England & Wales.  Company No: 02819824.  Registered Office Address: 2 St. Stephen's Court, St. Stephen's Road, Bournemouth, Dorset, England, BH2 6LA.  VAT Registration No: 576 8795 61
Book a Property Valuation Update Cookies Preferences