Middlewich Road, Nantwich, CW5

Offers Over
£600,000

5 Bedroom Detached House for sale in Nantwich

3 5 3
  • Stylish Interiors: Oak-and-glass staircase and high-quality Karndean flooring highlight the elegant, modern finish throughout
  • Spacious Living Areas: Large lounge with feature fire and French doors, dedicated study, utility room, and cloakroom
  • Showpiece Kitchen/Diner/Family Space: Contemporary open-plan kitchen with quartz worktops, breakfast bar, and premium Neff integrated appliances; bi-fold doors to the garden
  • Luxury Bedrooms & Bathrooms: Master suite with Juliet balcony and boutique-style en-suite with freestanding bath; four additional bedrooms, family bathroom, and extra shower room
  • Impressive Outdoor Space: Landscaped rear garden with patio and decking
  • Prime Location & Access: Driveway and detached garage with power and automatic door; desirable edge-of-Barony Park setting, close to Nantwich town centre and scenic walks

Occupying a prime plot on the edge of Barony Park and just a short stroll from the centre of Nantwich, this outstanding family residence is as rare as it is remarkable. Set in one of the area’s most sought-after locations, it combines stylish interiors with generous proportions and a setting that offers immediate access to scenic walks, open green space, and all the amenities of town life.

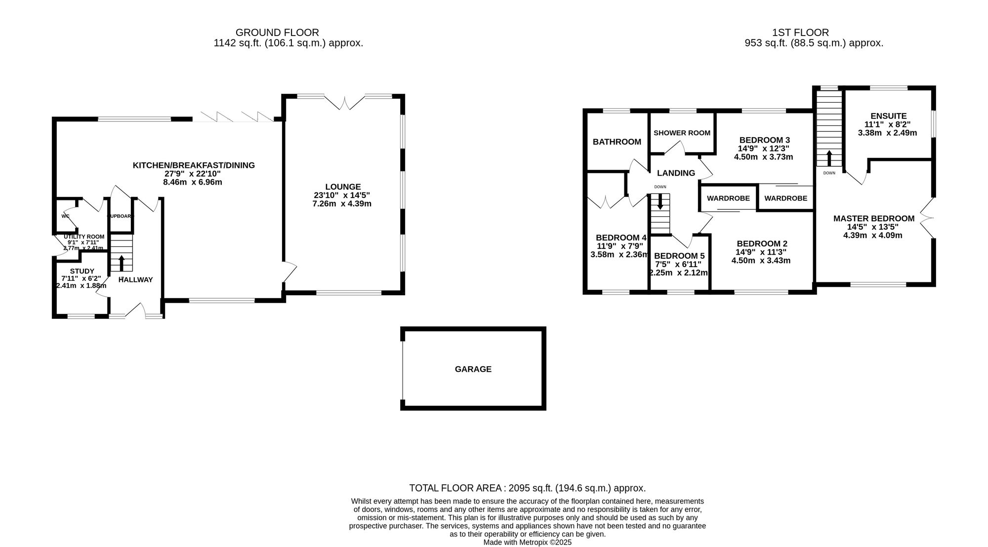
The home has been thoughtfully extended and meticulously improved over the past decade, resulting in a superb blend of modern convenience and elegant design. From the moment you step inside, the attention to detail is clear. The welcoming entrance hall showcases an oak and glass staircase and is finished with high-quality Karndean flooring, creating an immediate sense of style and quality.

The large lounge is an inviting retreat, designed for both relaxation and entertaining, with a sleek feature fire, space for a wall-mounted television, and French doors opening directly onto the garden. At the heart of the home lies the spectacular open-plan kitchen, dining, and family room—a true showpiece. The kitchen is fitted with a comprehensive range of contemporary units, including deep pan drawers and full-height storage, all set beneath striking quartz worktops. A matching breakfast bar provides a sociable focal point, while high-end integrated appliances, including a Neff ‘hide and slide’ oven, combination oven, induction hob, fridge, freezer, and dishwasher, ensure every modern need is catered for. The adjoining dining and family areas are equally impressive, with elegant Karndean flooring running throughout and bi-fold doors that flood the space with natural light while seamlessly connecting the indoors with the landscaped garden.

Practical touches have not been overlooked, with a dedicated study, a utility room offering fitted units, a sink, and space for both a washing machine and tumble dryer, as well as a stylish downstairs cloakroom.

Upstairs, the master suite is a luxurious haven. French doors open to a Juliet balcony with tranquil views across Barony Park, while the en-suite bathroom is a true highlight. Designed with indulgence in mind, it features a freestanding bath with waterfall filler, a separate shower enclosure, and a wide vanity unit with twin hand wash basins, offering a boutique hotel feel. Four further well-proportioned bedrooms provide excellent accommodation for family or guests, complemented by a chic family bathroom and an additional shower room for convenience.

Outside, the property continues to impress. To the front, there is ample driveway parking which leads to a detached garage with lighting, power, and an automatic roller door. The rear garden is a private and thoughtfully landscaped space, perfect for both entertaining and relaxation, with a paved patio, raised decking area, lawn, flower borders, and mature shrubs adding year-round interest.

This exceptional home, in its prime setting, offers not just a property but a lifestyle—spacious, stylish, and perfectly located for enjoying everything Nantwich and its surroundings have to offer.

Location:

Nantwich is a historic market town located in the county of Cheshire, England. It lies on the banks of the River Weaver and is approximately 5 miles south-west of the larger town of Crewe. Nantwich has a rich history that dates back to Roman times, and it is known for its well-preserved medieval architecture and charming streets.

One of the most prominent features of Nantwich is its black and white timber-framed buildings, which give the town a distinctive character. The town centre is filled with historic structures, including the Nantwich Town Walls, St. Mary's Church, and the Queen's Aid House. The Nantwich Museum, located in a restored Georgian townhouse, offers visitors an opportunity to explore the town's history and heritage.

Nantwich is also famous for its annual food and drink festival, which takes place in September and attracts thousands of visitors. The festival showcases a variety of local and regional produce, including Cheshire cheese, pies, and real ale. Additionally, the town holds a traditional market on Tuesdays and Saturdays, where locals and tourists can browse a range of goods, from fresh produce to antiques.

The River Weaver, which runs through Nantwich, provides opportunities for leisurely walks along the waterfront and offers a picturesque setting for boat trips. The town is surrounded by beautiful Cheshire countryside, with plenty of scenic trails and paths for outdoor enthusiasts to explore.

Nantwich has a thriving community and offers a range of amenities, including shops, restaurants, cafes, and pubs. It also has several primary and secondary schools, making it an attractive place to live for families.

Nantwich is conveniently placed for commuter travel, with excellent road links including access to the M6 motorway network via the A500. Rail travel is offered via Nantwich train station which has direct services to Manchester and Shrewsbury, and Crewe Railway Station which is within 8 miles and provides direct services to a host of major cities including London, Manchester, Liverpool, Birmingham, and Glasgow.

In summary, Nantwich is a charming market town in Cheshire, England, known for its rich history, medieval architecture, annual food festival, and picturesque surroundings. It's a place where visitors can immerse themselves in the past while enjoying the amenities of a vibrant community.

Energy Efficiency Current: 73.0
Energy Efficiency Potential: 78.0

Important Information

  • This is a Freehold property.
  • This Council Tax band for this property is: F

Property Ref: 33c901d4-6d46-481e-87fc-1adf96500e96

Share:

Similar Properties

Chads Green, Wybunbury, CW5

5 Bedroom Detached House | £600,000

Elegant 5-bed detached home with luxurious features, double aspect lounge, kitchen, panoramic views, master suite with b...

Minster Court, Wistaston, CW2

5 Bedroom Detached House | Offers Over £600,000

Immaculate 5-bedroom family home with modern features. Spacious rooms, double garage, solar panels, and south-facing gar...

Chiltern Close, Wychwood Park, Weston, Crewe, CW2 5GE

5 Bedroom Detached House | Offers in excess of £599,950

Spectacular 5-bed detached house in sought-after Wychwood Park with stunning features, spacious rooms, sunny garden, dou...

Rookery Drive, Nantwich, CW5

5 Bedroom Detached House | £625,000

5-bed detached family home in desirable Nantwich location. Spacious living areas, landscaped garden, double garage. No c...

Broad Lane, Stapeley, CW5

3 Bedroom Detached Bungalow | Offers in excess of £625,000

Stunning 3-bed detached bungalow in tranquil setting with countryside views. High-end renovation, open-plan living, mast...

Westwood Close, Weston, CW2

5 Bedroom Detached House | £630,000

Stunning house in prestigious Wychwood Park with spacious modern living, contemporary kitchen, private garden, and doubl...

James Du Pavey Estate Agents (Nantwich)

52 Pillory St, Nantwich, Cheshire, CW5 5BG

01270 445678

How much is your home worth?

Use our short form to request a valuation of your property.

Request a Valuation

Mortgage Calculator

Amount Borrowed: £
Total Amount Repayable: £
Total Monthly Payment: £
©2025 The Guild of Property Professionals. All rights reserved. Terms and Conditions | Privacy Policy | Cookie Policy | Complaints Policy | Members Login
The Guild of Property Professionals Trading Address: 121 Park Lane, London W1K 7AG. GPEA Limited. Registered in England & Wales.  Company No: 02819824.  Registered Office Address: 2 St. Stephen's Court, St. Stephen's Road, Bournemouth, Dorset, England, BH2 6LA.  VAT Registration No: 576 8795 61
Book a Property Valuation Update Cookies Preferences