Winterberry Way, Stapeley, CW5

£700,000
SSTC
This property listing is now SSTC

5 Bedroom Detached House for sale in Nantwich

3 5 3
  • Expansive entrance hall creating a grand and welcoming first impression.
  • Large modern kitchen/diner with integrated appliances, wine fridge, and additional seating area with garden access.
  • Five well-proportioned double bedrooms, including two with en-suites and a master suite with dressing room.
  • Versatile living spaces including a spacious living room, formal dining room, and separate office.
  • Generous outdoor space with garden, hot tub area, double garage, and driveway parking for up to four cars.

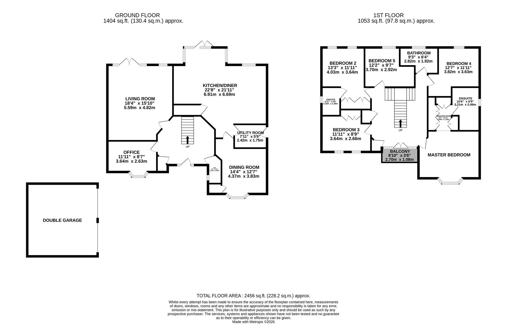
Set within the desirable village of Stapeley, this impressive five-bedroom detached home offers generous proportions, elegant design, and versatile living spaces throughout—ideal for modern family life.

Upon entering, you’re welcomed by an expansive entrance hall that immediately creates a sense of grandeur and sets the tone for the rest of the property. The living room is a beautifully sized space, perfect for both social gatherings and relaxed evenings, featuring French doors opening directly onto the garden, allowing natural light to flood the room.

The heart of the home is the stunning kitchen/diner, designed with a sleek, modern finish and excellent functionality. It boasts an integrated double oven, five-burner gas hob, fridge, freezer, dishwasher, and wine fridge, alongside an abundance of cupboard and worktop space. A secondary seating area provides a more informal place to relax, complete with another set of French doors leading out to the garden.

The formal dining room comfortably accommodates a large dining table and is enhanced by a large bay window, creating a bright and welcoming atmosphere. A handy storage cupboard allows the space to remain clutter-free. The office is another well-proportioned room, also featuring a bay window, and offers flexibility as a home workspace, hobby room, or even a snug. A conveniently located WC completes the ground floor.

Upstairs, the master bedroom is an exceptional private retreat, offering a spacious double room, a separate dressing room, and a luxurious en-suite complete with both a bath and walk-in shower. Bedroom two is another generous double with built-in wardrobes and its own en-suite shower room. Bedrooms three and four are similar in size, with bedroom three benefiting from built-in wardrobes and currently being used as a full dressing room. Bedroom five, while slightly smaller, still comfortably accommodates a double bed. The main family bathroom maintains a contemporary style and features both a separate bath and walk-in shower.

Adding a unique and picturesque feature, the landing opens through French doors onto a balcony overlooking the front of the property—an ideal spot to enjoy the surroundings.

Externally, the garden provides multiple areas for relaxation, including a side section currently housing a hot tub, perfect for unwinding. There is also a shed and a double garage, offering excellent storage or secure parking. The driveway provides space for up to four vehicles, completing this outstanding family home.

Location

Nantwich is a historic market town located in the county of Cheshire, England. It lies on the banks of the River Weaver and is approximately 5 miles south-west of the larger town of Crewe. Nantwich has a rich history that dates back to Roman times, and it is known for its well-preserved medieval architecture and charming streets.

One of the most prominent features of Nantwich is its black and white timber-framed buildings, which give the town a distinctive character. The town centre is filled with historic structures, including the Nantwich Town Walls, St. Mary's Church, and the Queen's Aid House. The Nantwich Museum, located in a restored Georgian townhouse, offers visitors an opportunity to explore the town's history and heritage.

Nantwich is also famous for its annual food and drink festival, which takes place in September and attracts thousands of visitors. The festival showcases a variety of local and regional produce, including Cheshire cheese, pies, and real ale. Additionally, the town holds a traditional market on Tuesdays and Saturdays, where locals and tourists can browse a range of goods, from fresh produce to antiques.

The River Weaver, which runs through Nantwich, provides opportunities for leisurely walks along the waterfront and offers a picturesque setting for boat trips. The town is surrounded by beautiful Cheshire countryside, with plenty of scenic trails and paths for outdoor enthusiasts to explore.

Nantwich has a thriving community and offers a range of amenities, including shops, restaurants, cafes, and pubs. It also has several primary and secondary schools, making it an attractive place to live for families.

Nantwich is conveniently placed for commuter travel, with excellent road links including access to the M6 motorway network via the A500. Rail travel is offered via Nantwich train station which has direct services to Manchester and Shrewsbury, and Crewe Railway Station which is within 8 miles and provides direct services to a host of major cities including London, Manchester, Liverpool, Birmingham, and Glasgow.

In summary, Nantwich is a charming market town in Cheshire, England, known for its rich history, medieval architecture, annual food festival, and picturesque surroundings. It's a place where visitors can immerse themselves in the past while enjoying the amenities of a vibrant community.

Important Information

  • This is a Freehold property.
  • This Council Tax band for this property is: F
  • EPC Rating is B

Property Ref: 05159fad-083a-4016-aa07-d5fc2fd9f2fe

Share:

Similar Properties

Village View Close, Audlem, CW3

5 Bedroom Detached House | Offers in excess of £700,000

Stunning 5-bed detached home on exclusive end plot in Audlem. Spacious, luxury fittings, 3 en-suites, double garage, pri...

Whitchurch Road, Audlem, CW3

5 Bedroom Detached House | Offers in excess of £699,950

Beautiful five-bedroom detached home with open countryside views. Spacious living, high-end finishes, landscaped gardens...

Shrewbridge Road, Nantwich, CW5

5 Bedroom Semi-Detached House | £685,000

Beautifully restored 5 bed Edwardian property, offered chain free. Located opposite Brookfield Park. Modern comforts, pe...

Balterley Court, Balterley, CW2

4 Bedroom Barn Conversion | £725,000

Stunning four-bed barn conversion in Balterley with modern country style, luxury kitchen, spacious living, home office,...

Wrenbury Road, Aston, CW5

4 Bedroom Detached House | £735,000

This exceptional four-bedroom detached home in the sought-after area of Aston offers an impressive blend of modern desig...

Hospital Street, Nantwich, CW5

8 Bedroom Detached House | £750,000

Kiltearn House, 33 Hospital Street, CW5 5RL. We are acting in the sale of the above property and have received an offer...

James Du Pavey Estate Agents (Nantwich)

52 Pillory St, Nantwich, Cheshire, CW5 5BG

01270 445678

How much is your home worth?

Use our short form to request a valuation of your property.

Request a Valuation

Mortgage Calculator

Amount Borrowed: £
Total Amount Repayable: £
Total Monthly Payment: £
©2026 The Guild of Property Professionals. All rights reserved. Terms and Conditions | Privacy Policy | Cookie Policy | Complaints Policy | Members Login
The Guild of Property Professionals Trading Address: 121 Park Lane, London W1K 7AG. GPEA Limited. Registered in England & Wales.  Company No: 02819824.  Registered Office Address: 2 St. Stephen's Court, St. Stephen's Road, Bournemouth, Dorset, England, BH2 6LA.  VAT Registration No: 576 8795 61
Book a Property Valuation Update Cookies Preferences