Nantaderyn, Main Avenue, Peterston-Super-Ely, The Vale of Glamorgan, CF5 6LQ

Asking Price
£875,000

5 Bedroom Detached House for sale in Peterston-Super-Ely

3 5 2
  • Five bedroom detached family home.
  • Large mature garden plot.
  • In need of full decorative renovation.
  • Highly sought after, edge of village location.
  • Three reception rooms plus kitchen/breakfast room.
  • Bedroom one with ensuite bathroom.
  • Sold with vacant possession and no upward chain.
  • Potential to extend subject to relevant planning permission.
  • Viewing highly recommended.


This five-bedroom detached family home sits on a large mature garden plot in a highly sought-after location on the periphery of Peterston-Super-Ely. Situated on a large mature garden plot bordering agricultural land on the periphery of Peterston-Super-Ely lies Nantaderyn.

This much-loved five-bedroom detached family home is offered to the market for the first time since its construction.

It offers generous-sized living and bedroom accommodation and holds potential for extension subject to relevant planning permission.

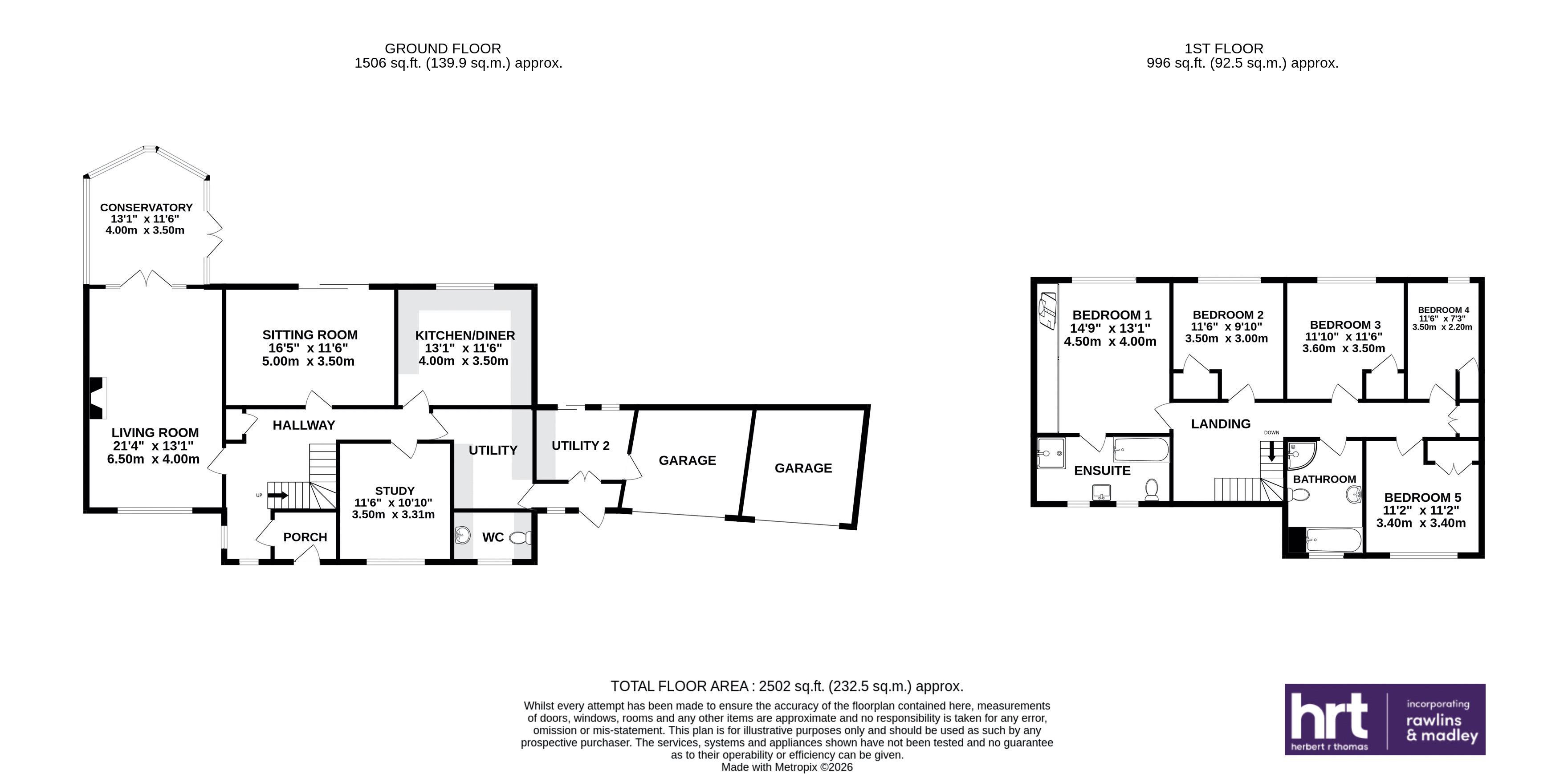
It offers accommodation which is in need of full decorative updating, which briefly comprises an entrance porch leading into a generous-sized entrance hall with stairs rising to a first-floor gallery landing.

The dual-aspect lounge, with window to front plus French doors flanked by windows to rear leading into a conservatory extension, has a wood-burning stove set in a brick-built fireplace with flagstone hearth and extended wooden display mantle over.

The conservatory has windows to three aspects and French doors giving access into the rear garden. It has a polycarbonate roof with central light/fan point.

The study is located at the front of the property with a window overlooking the driveway.

The dining room has patio doors giving access and views into the rear garden. It is situated adjacent to the kitchen/breakfast room, which also has a window to rear. It offers a range of oak base and wall-mounted units with space and plumbing for a range cooker and dishwasher.

The utility room has a further fitted range of base and wall-mounted units. The central heating boiler is found in the larder unit. Off the utility room is a ground-floor cloakroom housing a white two-piece suite with full tiling to walls.

The first-floor gallery landing, with window to front, has a built-in airing cupboard and gives access to the bedroom accommodation.

Bedroom one is a large double bedroom with window to rear overlooking the garden, with an extensive range of fitted wardrobe and bedroom furniture. It benefits from an ensuite bathroom with shower enclosure, bath, low-level WC, bidet, and sink unit with storage under. Bedroom two is located at the front of the house and has double doors into a wardrobe cupboard with hanging and shelf space. Bedrooms three, four, and five are all located at the rear of the house with views over the garden and into the farmland beyond. All three benefit from built-in wardrobe cupboards. Bedroom five has wall-mounted display shelving plus a loft inspection point.

Off the utility room is a side porch which has a glazed door to front, glazed door into an outer porch which has a fitted roll-top worksurface with space and plumbing below for a washing machine, a built-in storage cupboard plus patio doors leading into the rear garden. Attached to the porch is a double garage with two single up-and-over doors from the driveway. The garage benefits from power and lighting and has a water tap.

To the front of the property is a private, large gravel driveway with parking for several vehicles plus lawned garden with mature tree. To the rear is a large mature garden plot which lies in a southerly direction enjoying the sun throughout the day. A paved patio extends from the rear of the property out onto a lawn with an abundance of mature trees. Within the garden are a number of storage sheds and summer house plus greenhouse. A bridge over a babbling brook leads into an additional strip of land which was purchased from the neighbouring farmer and enjoys uninterrupted views over the neighbouring field.

Important Information

  • This is a Freehold property.

Property Ref: HRT16136

Share:

Similar Properties

Bryntirion, Church Hill Close, Cowbridge, The Vale of Glamorgan CF71 7JH

5 Bedroom Detached House | Asking Price £875,000

Flexible five double bedroomed detached family home in a delightful elevated position with attractive rural views and ea...

Lot 4 - Equestrian facilities set in 50.42 acres, Llanmihangel Farm, Pyle, Bridgend, CF33 6RL

Not Specified | Guide Price £875,000

Exceptional 5* equestrian facilities set in approximately 50.42 acres (shaded orange on the sale plan), benefitting from...

Dolcoed, Carmarthen Road, Newcastle Emlyn SA38 9DA

5 Bedroom Detached House | Offers in excess of £850,000

Substantial, detached, late Victorian house with attached stone barns and adjacent ground extending to approximately 3.6...

The Keep, Llandough, The Vale of Glamorgan CF71 7LR

5 Bedroom Detached House | Asking Price £895,000

Substantial 5 double bedroomed detached family house in a glorious rural setting lying a short distance to the south of...

Cwm Ciddy Farm House, Cwm Ciddy Lane, The Vale of Glamorgan CF62 3NA

5 Bedroom Detached House | Asking Price £895,000

Stunning stone built, five bedroom character farm house set in large mature gardens of approximately 0.4 acres, to inclu...

Swallows Lodge, Penllyn, The Vale of Glamorgan CF71 7RQ

4 Bedroom Detached House | Asking Price £895,000

This detached four-bedroom family home sits on a generous sized garden plot, bordering farmland, on the periphery of thi...

H R Thomas Ltd (Cowbridge)

Cowbridge, South Wales, CF71 7AF

01446 772911

How much is your home worth?

Use our short form to request a valuation of your property.

Request a Valuation

Mortgage Calculator

Amount Borrowed: £
Total Amount Repayable: £
Total Monthly Payment: £
©2026 The Guild of Property Professionals. All rights reserved. Terms and Conditions | Privacy Policy | Cookie Policy | Complaints Policy | Members Login
The Guild of Property Professionals Trading Address: 121 Park Lane, London W1K 7AG. GPEA Limited. Registered in England & Wales.  Company No: 02819824.  Registered Office Address: 2 St. Stephen's Court, St. Stephen's Road, Bournemouth, Dorset, England, BH2 6LA.  VAT Registration No: 576 8795 61
Book a Property Valuation Update Cookies Preferences