Ketley Bank, Telford, Shropshire, TF2

Offers in excess of
£200,000

Land for sale in Shropshire

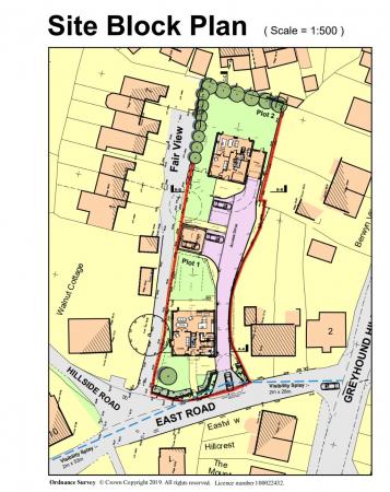
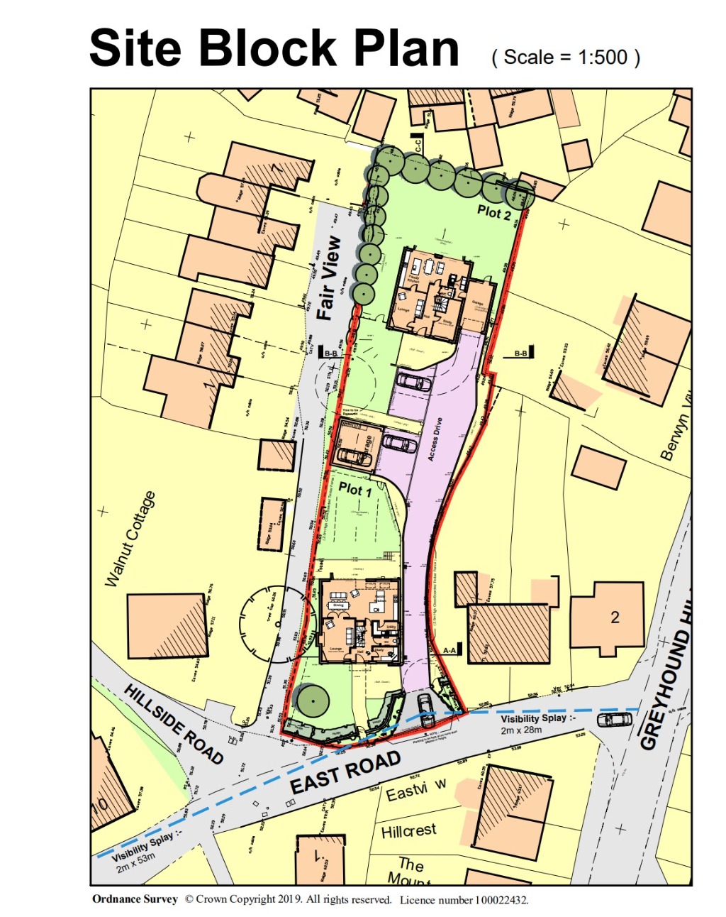
  • Development Opportunity Full Planning Approval For Two Large Detached Homes
  • Planning Reference TWC/2021/1139
  • Established Location with Good Local Amenities & Road Links
  • 1 x 5 Bedroom Detached approx 250sqm & 1 x 3 Bedroom Detached approx 227sqm
  • Both Properties to Have Good SIzed Plots & Garaging
  • Plot Approximately 0.33 Acres
  • Planning Approval For Siting of Static Caravan During Build Phase
  • For More Details Contact Mannleys

For additional details and inquiries, please don't hesitate to contact Mannleys

Property Ref: 910_309536

Share:

Similar Properties

Flat 2, 37 Belle Vue Road, Shrewsbury, Shropshire, SY3 7LN

2 Bedroom Apartment | Offers in region of £200,000

Discover this beautifully presented two-bedroom apartment, ideally located in the heart of Shrewsbury Town Centre, offer...

Hopkins Heath, Telford, Shropshire, TF5 0LU

3 Bedroom End of Terrace House | Offers in region of £200,000

Discover this three-bedroom end of terrace family home in Hopkins Heath, offering excellent potential, ample parking, an...

Longnor Road, Wellington, Telford, Shropshire, TF1 3NY

3 Bedroom Semi-Detached House | Offers in region of £200,000

Discover this delightful three-bedroom semi-detached home in Wellington, offering significant renovation potential and s...

Fenns Crescent, St. Georges, Telford, Shropshire, TF2 9BN

2 Bedroom Bungalow | Offers in region of £210,000

Discover this beautifully presented 2-bedroom bungalow in St. Georges, Telford, featuring a modern kitchen, sleek bathro...

Monksmoor Road, Lightmoor Village, Telford, Shropshire, TF4 3FX

3 Bedroom Semi-Detached House | Offers Over £210,000

Discover this well-presented three-bedroom semi-detached house in Lightmoor Village, offering stylish interiors, a delig...

Trenleigh Gardens, Trench, Telford, TF2 6RN

3 Bedroom Semi-Detached House | Offers in region of £210,000

Discover this excellent three-bedroom semi-detached family home in a desirable Telford neighbourhood, featuring a garage...

Mannleys Property (Telford)

Telford, Shropshire, TF1 1DT

01952 245 064

How much is your home worth?

Use our short form to request a valuation of your property.

Request a Valuation

Mortgage Calculator

Amount Borrowed: £
Total Amount Repayable: £
Total Monthly Payment: £
©2025 The Guild of Property Professionals. All rights reserved. Terms and Conditions | Privacy Policy | Cookie Policy | Complaints Policy | Members Login
The Guild of Property Professionals Trading Address: 121 Park Lane, London W1K 7AG. GPEA Limited. Registered in England & Wales.  Company No: 02819824.  Registered Office Address: 2 St. Stephen's Court, St. Stephen's Road, Bournemouth, Dorset, England, BH2 6LA.  VAT Registration No: 576 8795 61
Book a Property Valuation Update Cookies Preferences