Haling Road, South Croydon, Surrey, CR2 6HS

£425,000
SSTC
This property listing is now SSTC

2 Bedroom Terraced House for sale in South Croydon

2 1
  • Two double bedrooms
  • Stunning and deceptively spacious
  • Open plan kitchen / living / dining area
  • Driveway
  • Garden office
  • Underfloor heating
  • Walking distance to train station
  • Close to amenities & schools
  • EPC rating D

Council tax band: C

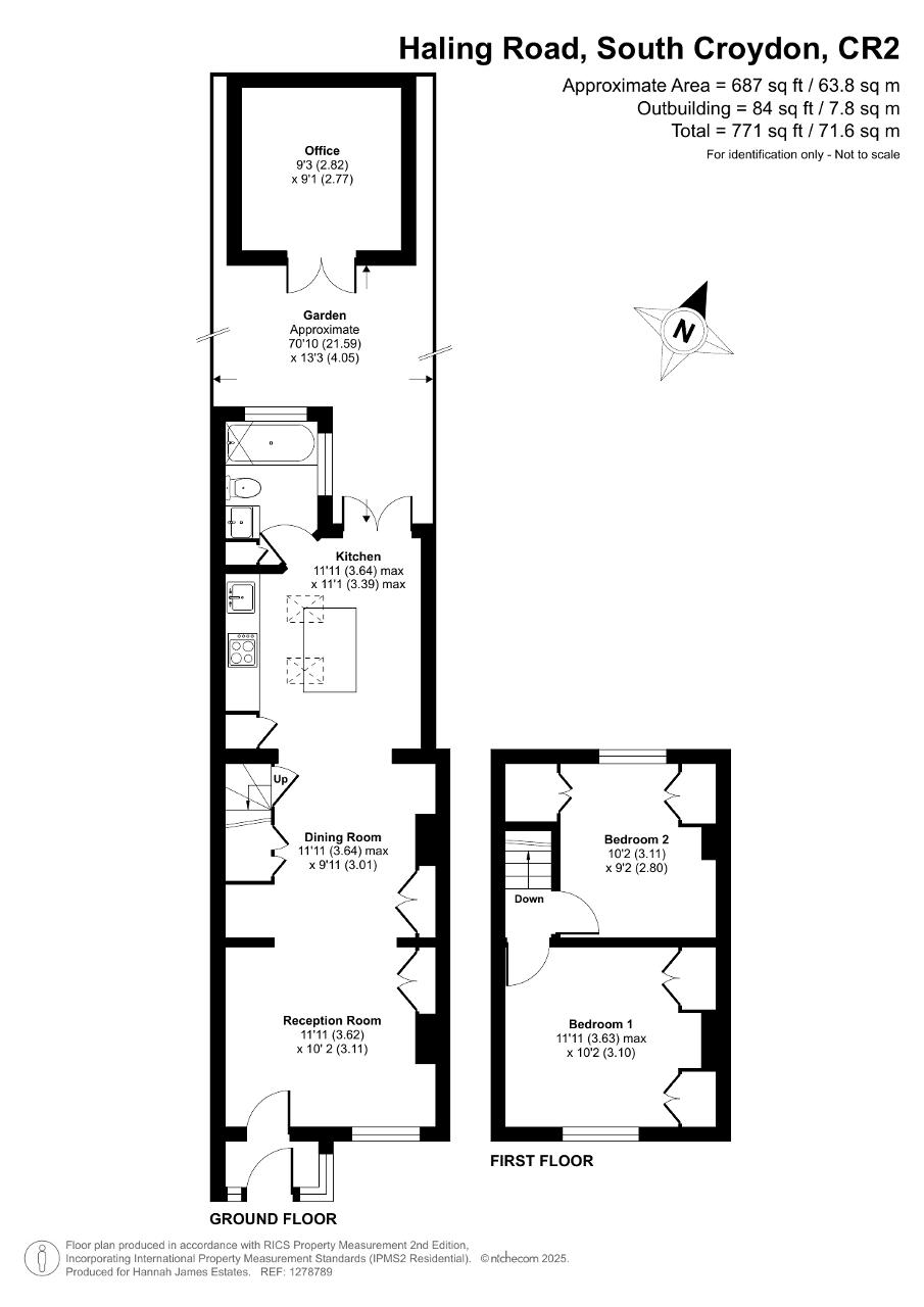
Hannah James Estates are proud to present this stunning and deceptively spacious two bedroom terrace character home. The property benefits from a driveway which offers off street parking, larger than average rear garden and home office.

The property has been tastefully decorated to a high standard, with feature fireplace and plantation shutters. Unlike other terraced homes the stairs are located to the side of the property which provides more spacious and flexible living spaces.

The bright and airy open plan kitchen / dining / living area is a generous space ideal for spending quality time with friends and family and benefits from Velux windows, underfloor heating (kitchen area), integrated appliances and an island/breakfast bar.

The modern bathroom is fully tiled with a three piece suite, overhead shower and heated towel rail and the luxury of underfloor heating.

To the first floor there are two generously sized double bedrooms, each thoughtfully designed to maximize comfort and style and both have fitted wardrobes.

Externally you have the driveway offering off street parking to the front and a large rear garden which is mainly laid to lawn, but with a large patio area directly from the property and a useful/well designed summer house at the bottom which is fully powered, double glazed and has internet access. The summer house is currently being used as a home office, but lends itself to a space for a gym or just to enjoy whilst hosting friends & family.

The property is superbly located within easy access of South/East Croydon and Sanderstead stations, each offering superb connections into Central London, Gatwick and the South Coast. Croydon town centre is just a short walk away providing an array of shops and amenities, as well as leisure facilities including a cinema complex. The 'Restaurant Quarter' is also just a stroll away for a diverse selection of bars and restaurants. The area is well served by good local schools and open spaces.

Important Information

  • This is a Freehold property.

Property Ref: 58823_701895

Share:

Similar Properties

Addington Road, Sanderstead, Surrey, CR2 8AX

2 Bedroom Flat | £350,000

Hannah James Estates are proud to bring to the market this beautifully presented, ground floor apartment, with two doubl...

Wettern Close, Sanderstead, Surrey, CR2 0NT

2 Bedroom Flat | £325,000

Hannah James Estates are proud to present this exceptional two-bedroom flat. The spacious reception room provides ample...

Haling Park Road, South Croydon, Surrey, CR2 6NJ

2 Bedroom Flat | £260,000

NO ONWARD CHAINHannah James Estates is proud to present this spacious 2 bedroom ground floor flat which has been recentl...

Limpsfield Road, Sanderstead, CR2 9DE

3 Bedroom Terraced House | £460,000

NO ONWARD CHAINHannah James Estates are proud to present this well presented and proportioned 3 bedroom terraced house f...

Mallard Road, Selsdon Vale, Surrey, CR2 8PX

3 Bedroom Semi-Detached House | £475,000

NO ONWARD CHAINHannah James Estates are delighted to present to the market this beautifully presented, three-bedroom, se...

West Hill, Sanderstead, Surrey, CR2 0SA

3 Bedroom Flat | Offers Over £475,000

GUIDE PRICE £485,000 TO £500,000Hannah James Estates are proud to present this exquisite, high-end, ground floor, 3 bedr...

Hannah James Estates (Sanderstead)

Limpsfield Road, Sanderstead, Surrey, CR2 9LA

0208 6575599

How much is your home worth?

Use our short form to request a valuation of your property.

Request a Valuation

Mortgage Calculator

Amount Borrowed: £
Total Amount Repayable: £
Total Monthly Payment: £
©2025 The Guild of Property Professionals. All rights reserved. Terms and Conditions | Privacy Policy | Cookie Policy | Complaints Policy | Members Login
The Guild of Property Professionals Trading Address: 121 Park Lane, London W1K 7AG. GPEA Limited. Registered in England & Wales.  Company No: 02819824.  Registered Office Address: 2 St. Stephen's Court, St. Stephen's Road, Bournemouth, Dorset, England, BH2 6LA.  VAT Registration No: 576 8795 61
Book a Property Valuation Update Cookies Preferences