South Huish Farm, South Huish

Guide Price
£395,000
SSTC
This property listing is now SSTC

2 Bedroom Barn Conversion for sale in South Huish

1 2 1
  • Abundance of character
  • Stunning and rural location
  • Close to beautiful beaches
  • Countryside views
  • Low maintenance garden
  • Allocated parking
  • Potential for modernisation
  • No onward chain

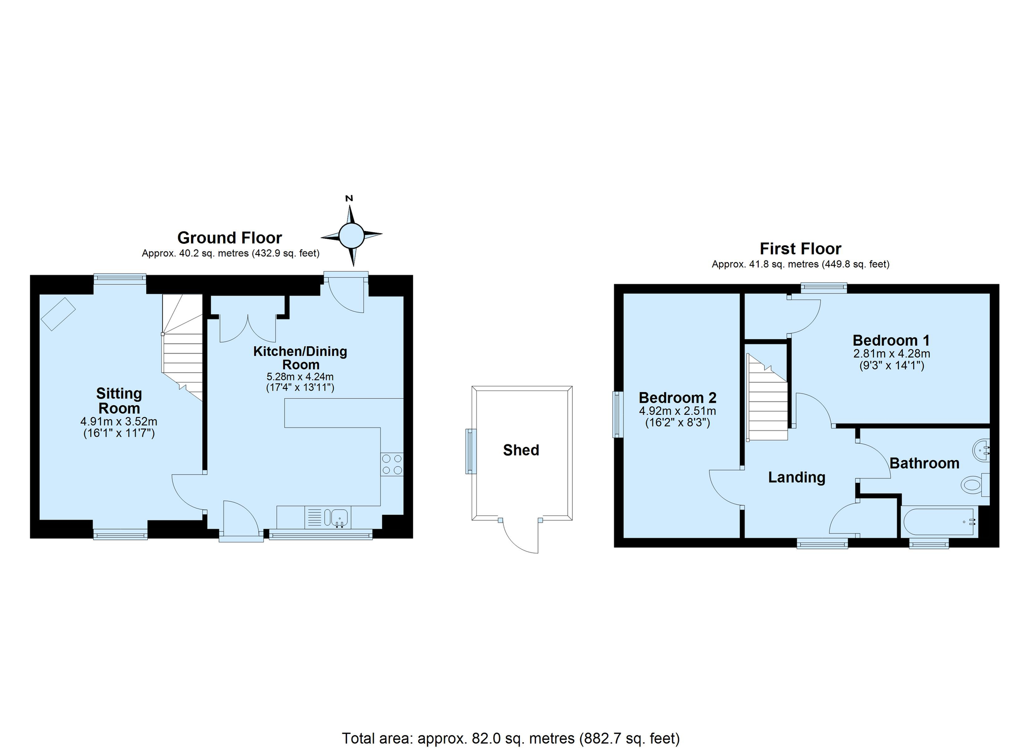
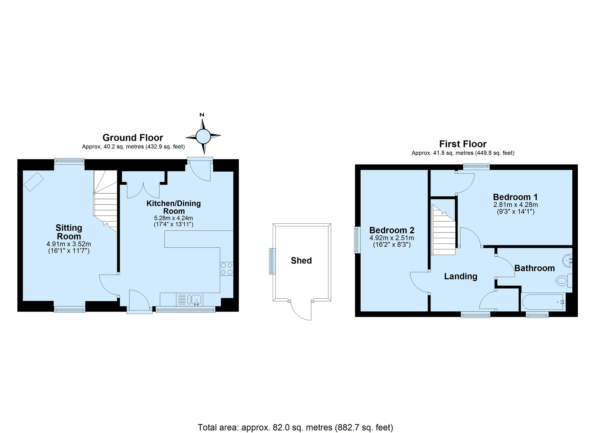
The Shippen is a charming and characterful two bedroom semi-detached cottage, nestled in the idyllic rural hamlet of South Huish. Set in a picturesque countryside location, just moments from South Milton Beach and Thurlestone Sands, this delightful home offers the perfect blend of indoor comfort, outdoor space, and scenic views. The property also presents excellent potential for personalisation and modernisation, offering an exciting opportunity to make the space your own.

Inside, the home features a spacious open-plan kitchen and dining area with doors leading directly to the rear patio and garden, the perfect space for entertaining. The ground floor also benefits from a generous dual aspect sitting room, complete with a cosy log burner and plenty of natural light.

Upstairs, a wide landing connects two generously sized bedrooms, with the master bedroom enjoying lovely views over the surrounding countryside. A well-appointed family bathroom completes the upper floor.

Outside, the rear garden features a level patio leading to a lawn bordered by hedging. Steps at the back of the garden take you down to a paved area with a shed and private parking for two vehicles. There is also an additional parking space at the front of the cottage.

South Huish is a peaceful rural hamlet in a delightfully unspoilt valley which runs down to the sea at South Milton Sands, less than a mile away. This is a wonderful beach for sunbathing, swimming and watersports, whilst a little further around the coast is Thurlestone village with its famous links golf course and other facilities. South Huish is also very near to the old fishing village of Hope Cove which also has sandy beaches.

Salcombe lies in the other direction and is justly famous for its beautiful estuary, its sailing and boating and its golden beaches. In between the coastal scenery is magnificent and there are fabulous walks around the South Devon coast path. At the head of the Salcombe estuary is Kingsbridge which offers a good range of shopping and other amenities and is the focal point for this part of the South Hams.

Services
Mains electricity and water. Private drainage. Oil central heating.

Fixtures and Fittings
All items in the written text of these particulars are included in the sale. All others are expressly excluded regardless of inclusion in any photographs. Purchasers must satisfy themselves that any equipment included in the sale of the property is in satisfactory order.

Viewings
Very strictly by appointment only through Marchand Petit (Salcombe Office) Tel: 01548 844473

Important Information

  • This is a Freehold property.
  • This Council Tax band for this property is: C

Property Ref: JMQ748994

Share:

Similar Properties

Fore Street, Salcombe

2 Bedroom Flat | Guide Price £395,000

A charming 2 bedroom apartment in a prime location. This cosy property boasts wonderful original features, and is conven...

Fore Street, Salcombe

2 Bedroom Flat | Guide Price £395,000

Beautifully presented two-bedroom apartment offering a rare opportunity to own a stylish coastal bolt hole in the heart...

Camperdown Road, Salcombe, Devon

3 Bedroom Terraced House | Guide Price £375,000

Charming 3-Bedroom Semi-Detached Home in Salcombe – First Time on the Market in Over 40 Years. Corner plot with estuary...

Portlemore Gardens, Malborough

3 Bedroom Bungalow | Guide Price £450,000

A beautifully presented 3 bedroom bungalow with views over rolling fields, and a spacious living area that opens onto a...

Bolberry Road, Hope Cove

3 Bedroom Semi-Detached House | Guide Price £450,000

A charming 3 bedroom semi-detached cottage set in a peaceful rural location on the edge of Hope Cove, featuring a genero...

The Soar, Salcombe, Devon

Lodge | Guide Price £455,000

A private collection of holiday homes on the hills above Salcombe in one of the UK’s most desirable destinations.

Marchand Petit (Salcombe)

24 Fore Street, Salcombe, Devon, TQ8 8ET

01548 844 473

How much is your home worth?

Use our short form to request a valuation of your property.

Request a Valuation

Mortgage Calculator

Amount Borrowed: £
Total Amount Repayable: £
Total Monthly Payment: £
©2026 The Guild of Property Professionals. All rights reserved. Terms and Conditions | Privacy Policy | Cookie Policy | Complaints Policy | Members Login
The Guild of Property Professionals Trading Address: 121 Park Lane, London W1K 7AG. GPEA Limited. Registered in England & Wales.  Company No: 02819824.  Registered Office Address: 2 St. Stephen's Court, St. Stephen's Road, Bournemouth, Dorset, England, BH2 6LA.  VAT Registration No: 576 8795 61
Book a Property Valuation Update Cookies Preferences