Mill Lane, Standon, ST21

£350,000
SSTC
This property listing is now SSTC

3 Bedroom Semi-Detached House for sale in Stafford

2 3 2
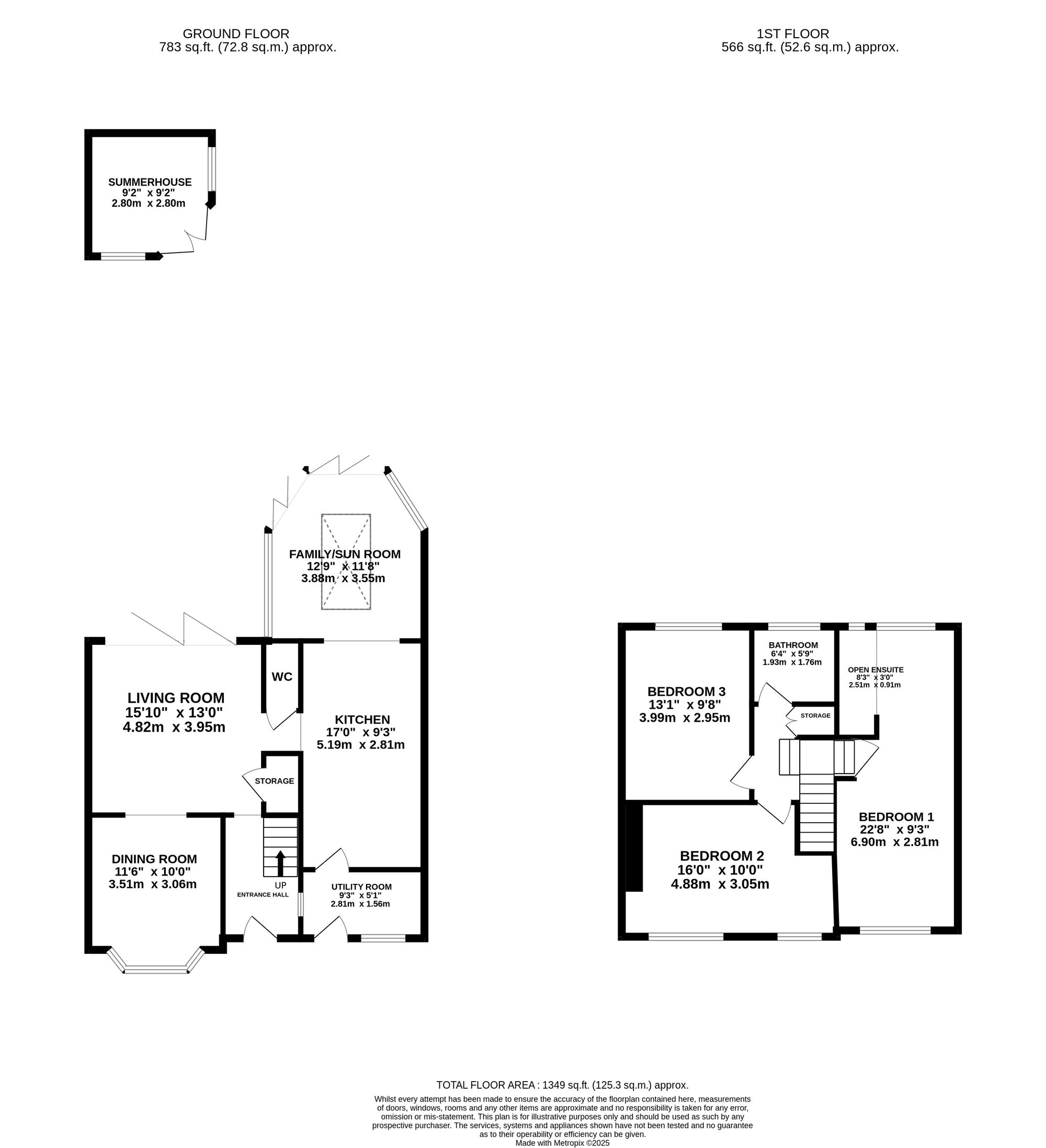
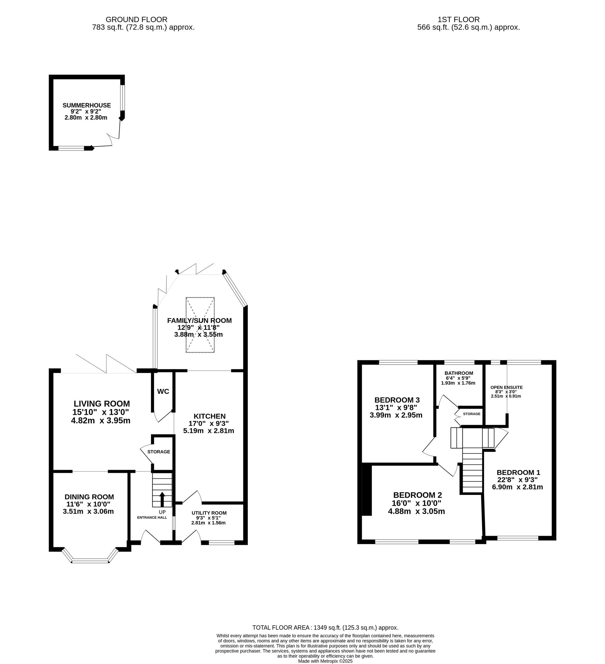
  • A charming semi-detached home in Standon offering practical family living with scenic views.
  • Three double bedrooms, a family bathroom and open ensuite to the master bedroom allows plenty of space to relax and unwind on the first floor.
  • On the ground floor find an open living/dining room, kitchen, family/sun room, utility and cloakroom.
  • Outside, enjoy a rear garden with lawn, patio and a summerhouse to make your own, while to the front a driveway provides ample off road parking.
  • Located in Standon, enjoy semi rural living with the local Primary School a short walk away, while Eccleshall is down the road for further needs and amenities.

Start your engines, this one’s a real contender! Get ready for the property race of your life, because the grand prize isn’t just a trophy… it’s your dream home. Welcome to this show-stopping three-bedroom, two-bathroom semi-detached gem, a perfect blend of modern style, family comfort and full-throttle charm.

As you pull up to the spacious gravel driveway with off-road parking, you’ll know you’re already off to a flying start. Step inside and the pace picks up, two inviting reception rooms give you plenty of space to shift gears from relaxation to entertaining. The open-plan living and dining area features wood-effect flooring, bags of natural light and a cosy wood-burning stove, the perfect spot to warm up after a long lap. Bi-fold doors open wide to the garden, blurring the line between indoor and outdoor living and flooding the home with sunshine. The modern kitchen is truly pole-position worthy, fitted with stylish cabinetry, integrated appliances, a large range cooker and glowing under-cabinet lighting. It flows smoothly into the sun/family room, complete with more bi-fold doors and a sky lantern that keeps everything bright and airy, ideal for everyday family life or hosting a pit-stop party. A cloakroom and separate utility room keep the ground floor running like a well-tuned engine. Head upstairs to find three double bedrooms and two bathrooms. The principal bedroom takes the lead with its own open ensuite featuring a shower, W.C., and sink. The family bathroom brings comfort across the finish line with a full bath, overhead shower, W.C. and sink.

Outside, the property really hits top speed. A generous garden offers lawn, spacious patio for outdoor entertaining and a versatile summerhouse ready to become your home office, hobby hideout or relaxation retreat. Period brick architecture adds timeless character, while the countryside views create a calm and peaceful setting, ideal for families or anyone craving a quieter pace of life. Located in the charming village of Standon, you’ll enjoy rural living with the local All Saints CE First School just a short walk away, while nearby Eccleshall provides all the extra amenities you might need.

Ready to claim victory? Race to the finish line and become the proud new owner of 2 Mill Lane. Give us a call today to book your viewing, the checkered flag is waving!

Important Information

  • This is a Freehold property.
  • This Council Tax band for this property is: A
  • EPC Rating is D

Property Ref: e849ceed-ba4a-4a23-a1e9-0e0f02ac1ad7

Share:

Similar Properties

Nelson Crescent, Cotes Heath, ST21

3 Bedroom Detached House | £350,000

Stand to attention! Lord Nelson is in attendance! Fear not! The only battle to be won here is the fight to become the tr...

Gateway Avenue, Baldwins Gate, ST5

3 Bedroom Detached House | Offers in region of £350,000

Charming detached house in Baldwins Gate. Spacious rooms, lounge with beams, dining room, kitchen, conservatory. Three d...

Church Street, Eccleshall, ST21

2 Bedroom Detached House | £350,000

Straight from the pages of a storybook, this enchanting detached period cottage is ready to steal your heart and start i...

Shrewsbury Road, Market Drayton, TF9

4 Bedroom Detached House | £365,000

Set in a sought-after location in Market Drayton, this impressive four-bedroom detached home combines spacious interiors...

Billington Lane, Derrington, ST18

3 Bedroom Bungalow | £365,000

Sit back, relax and watch the magic unfold as this enchanting three-bedroom bungalow casts its charm.

Churchfield Road, Eccleshall, ST21

3 Bedroom Detached Bungalow | £365,000

Your prayers have been answered! Spacious modernised bungalow with 3 bedrooms, lounge, sun room, dining kitchen, utility...

James Du Pavey Estate Agents (Eccleshall)

Eccleshall, Staffordshire, ST21 6BH

01785 851886

How much is your home worth?

Use our short form to request a valuation of your property.

Request a Valuation

Mortgage Calculator

Amount Borrowed: £
Total Amount Repayable: £
Total Monthly Payment: £
©2026 The Guild of Property Professionals. All rights reserved. Terms and Conditions | Privacy Policy | Cookie Policy | Complaints Policy | Members Login
The Guild of Property Professionals Trading Address: 121 Park Lane, London W1K 7AG. GPEA Limited. Registered in England & Wales.  Company No: 02819824.  Registered Office Address: 2 St. Stephen's Court, St. Stephen's Road, Bournemouth, Dorset, England, BH2 6LA.  VAT Registration No: 576 8795 61
Book a Property Valuation Update Cookies Preferences