Trentham, Stoke-On-Trent, ST4

Offers in excess of
£469,995

4 Bedroom Detached House for sale in Stoke-On-Trent

2 4 2
  • Set on a unique development where sustainable living and modern technology become one to future proof your home for years to come within a sustainable environment
  • A detached double garage sits to the side of the property providing further storage space and parking should you require it
  • Innovative technology used throughout the property including underfloor heating on the ground floor, wifi kitchen appliances, car charging point and speedy wifi as standard
  • All of this sat on a large garden plot with space to the front, side and rear providing and abundance of private outdoor space to combine with the public spaces within the development
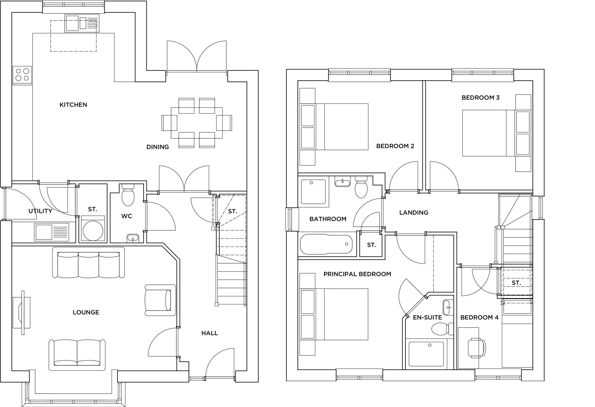
  • Four bedrooms with en-suite to the principle bedroom with fabulous kitchen diner to the rear and large lounge to the front with utility room and guest WC nestled in between.

The Cedar stands proud within the group to be a fantastic family home. The hallway of this property provides access through the house with doors to the lounge, kitchen/diner that stretches across the rear of the house with doors opening into the rear garden bringing the outdoors inside on those warm summer days, and guest WC, whilst stairs rise up to the first floor. The utility room is accessed from the kitchen to provide further storage and work top space. The kitchen is fitted with a range of wifi enabled appliances to make your life easier and much more convenient. Up on the first floor there are four bedrooms, three doubles and a very large single, there is plenty of space up on the first floor. The principle bedroom benefits from having both fitted wardrobes and an en-suite shower room whilst the family bathroom services all the other three bedrooms. Outside, there is a driveway and detached double garage along with extensive garden to both the front and rear with access all around the property. Beyond your private garden, you have access to all that this stunning development has to offer in regards to open spaces, out door play spaces and gym equipment or nature walks through the woodland and around the ponds. This is the perfect family home with all of the space and versatility both inside and out that a family could need along with a fantastic specification as standard to include features such underfloor heating on the ground floor, carpets throughout, cottage oak with solid core internal doors, photovoltaic panels, fibre internet connection and a huge choice of fixtures and fittings within the kitchens and bathrooms to make it just right for you. The Cedar can be your house to make your home. Get in touch with us today to arrange your appointment to take the next step into making this house your home

Property Ref: 31abe126-13c3-4fb1-9215-6324e4e664bb

Share:

Similar Properties

Tixall Court, Tixall, ST18

4 Bedroom Barn Conversion | Offers in excess of £465,000

Exciting Grade II listed 4-bed terraced home in Tixall. Modern kitchen, spacious living areas, ensuite master, landscape...

Maple Wood, Stafford, ST17

4 Bedroom House | £465,000

Lovely 4-bed detached home in Maple Wood. Living/dining room, Garden room, kitchen & utility room, shower room. South-fa...

Tixall Court, Tixall, ST18

4 Bedroom Barn Conversion | Offers in excess of £450,000

Grade II listed barn conversion in the heart of Tixall, nearby schools, shops and pubs. Four double bedrooms, master en...

Greenway, Trentham, ST4

3 Bedroom Detached House | Offers in excess of £475,000

Today is gonna be the day that you’re gonna find your forever dream home. And by now, you should’ve somehow realised wha...

Conran Place, Barlaston, ST12

4 Bedroom Detached House | Offers Over £475,000

Stunning 4-bed family home in Wedgwood Estate. Living room, modern kitchen/diner, master suite, garden with patio, garag...

Harecastle Bank, Stone, ST15

5 Bedroom Detached House | £475,000

Some say that finding the perfect home is a wild goose chase, but we here at JDP say it’s more of a hop down the rabbit...

James Du Pavey Estate Agents (Stone)

Christchurch Way, Stone, Staffordshire, ST15 8BZ

01785 814917

How much is your home worth?

Use our short form to request a valuation of your property.

Request a Valuation

Mortgage Calculator

Amount Borrowed: £
Total Amount Repayable: £
Total Monthly Payment: £
©2025 The Guild of Property Professionals. All rights reserved. Terms and Conditions | Privacy Policy | Cookie Policy | Complaints Policy | Members Login
The Guild of Property Professionals Trading Address: 121 Park Lane, London W1K 7AG. GPEA Limited. Registered in England & Wales.  Company No: 02819824.  Registered Office Address: 2 St. Stephen's Court, St. Stephen's Road, Bournemouth, Dorset, England, BH2 6LA.  VAT Registration No: 576 8795 61
Book a Property Valuation Update Cookies Preferences