Orchard Road, Street

£320,000

3 Bedroom Character Property for sale in Street

2 3 2
  • Conveniently located within easy walking distance of the high street and local amenities.
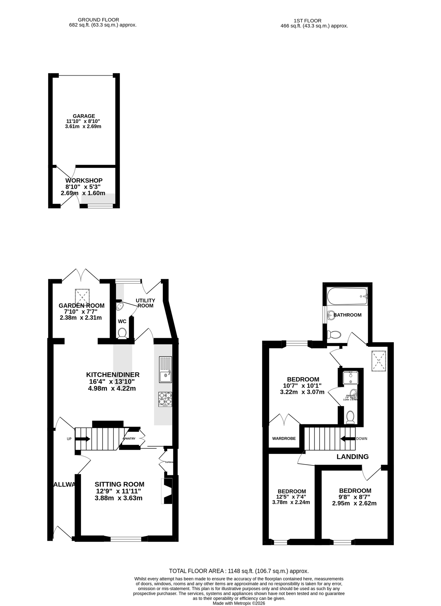
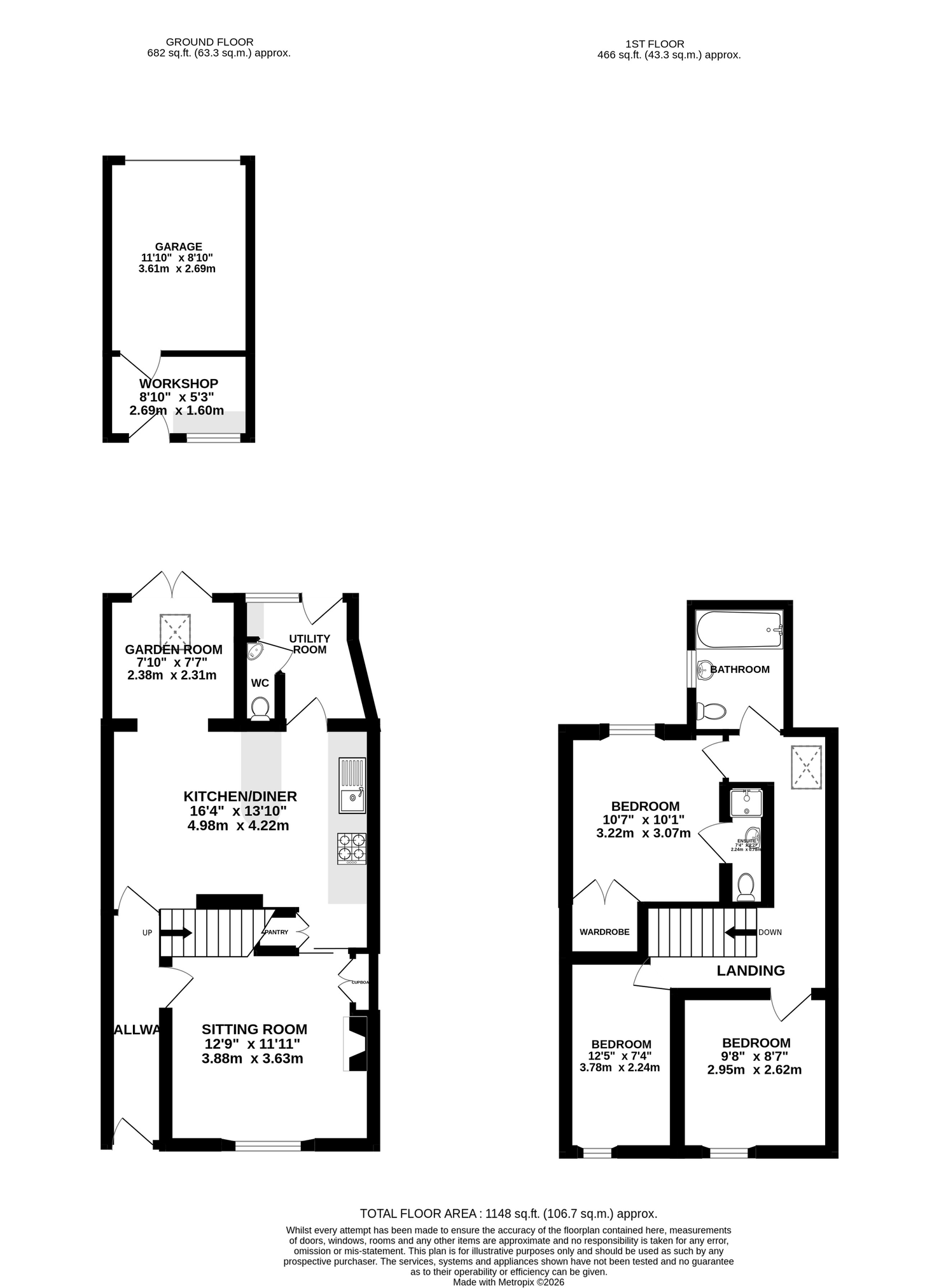
  • Enjoying a spacious sitting room with a characterful wood-burning stove, providing a cosy and welcoming atmosphere.
  • A superb open-plan kitchen, dining and garden room, thoughtfully designed for entertaining and everyday family living. Flooded with natural light from velux windows and French doors out to the gar...
  • Stylish, well appointed kitchen with fitted wall, base and drawer units, built-in oven and hob, large pantry cupboard, integrated dishwasher and space for a freestanding fridge/freezer.
  • Affording three bedrooms, including two well-proportioned doubles, with the principal bedroom benefiting from a built-in wardrobe and en suite shower room.
  • The property is serviced by the family bathroom, comprising bath with shower over, wash basin and WC.
  • A low-maintenance rear garden featuring a small patio with bespoke seating and a decked walkway leading to an area of lawn.
  • Externally, the property boasts ample driveway parking for multiple vehicles, leading to a single garage fitted with an up-and-over door, power and lighting, and a useful small workshop area.

More than meets the eye and not to be overlooked, this deceptively spacious three-bedroom cottage is a true hidden gem. Tastefully decorated throughout, the property is rich in character while offering generous accommodation. Further benefits include a private garden, garage and off-road parking. Early viewing is highly advised.

Location
The property is conveniently situated in the heart of this thriving mid-Somerset town famous as the home of Clarks Shoes, prestigious Millfield School and popular with shoppers visiting Clarks Village. Street provides good primary and secondary schooling, Ofsted rated Outstanding Strode College, Strode Theatre, indoor and open air swimming pools, Victoria Sports club and a choice of pubs and restaurants. The historic town of Glastonbury is 2 miles and the Cathedral City of Wells 8 miles. M5 Junction 23 12 miles, A303 (Podimore roundabout) 12 miles, Castle Cary Train station (DL London Paddington) 12.5 miles, Bristol 33 miles, Bath 27 miles, Taunton 20 miles, Exeter 57 miles.

Directions
From the High Street proceed to Living Homes and turn right into Orchard Road where the property will soon be identified on the left hand side by our For Sale Board. To access the off road parking, upon entering Orchard road, take a left hand turn into back lane. Pass Orchard Court retirement complex and turn right down a private lane. The parking and garage will be found on the right hand side.

Material Information
All available property information can be provided upon request from Holland & Odam. For confirmation of mobile phone and broadband coverage, please visit checker.ofcom.org.uk

Identity Verification
To ensure full compliance with current legal requirements, all buyers are required to verify their identity and risk status in line with anti-money laundering (AML) regulations before we can formally proceed with the sale. This process includes a series of checks covering identity verification, politically exposed person (PEP) screening, and AML risk assessment for each individual named as a purchaser. In addition, for best practice, we are required to obtain proof of funds and where necessary, to carry out checks on the source of funds being used for the purchase. These checks are mandatory and must be completed regardless of whether the purchase is mortgage-funded, cash, or part of a related transaction. A disbursement of £49 per individual (or £75 per director for limited company purchases) is payable to cover all aspects of this compliance process. This fee represents the full cost of conducting the required checks and verifications. You will receive a secure payment link and full instructions directly from our compliance partner, Guild365, who carry out these checks on our behalf.

Important Information

  • This is a Freehold property.

Property Ref: 552333_SCJ958515

Share:

Similar Properties

Glaston Road, Street

4 Bedroom End of Terrace House | £317,500

We are delighted to present this beautifully presented four-bedroom Victorian end-of-terrace home, offering generous and...

Ivythorn Road, Street

3 Bedroom Semi-Detached House | £310,000

Recently refurbished throughout, this attractive and mature three-bedroom home offers stylish, ready-to-move-into accomm...

Goss Drive, Street

3 Bedroom Semi-Detached House | £309,500

We are pleased to bring to market this larger-than-average three-bedroom semi-detached house which has been a much-loved...

Taunton Road, Ashcott

3 Bedroom Semi-Detached House | £325,000

Located on the outskirts of the sought-after village of Ashcott, this mature and extended three-bedroom semi-detached ho...

West End, Street

4 Bedroom Terraced House | £335,000

This extended four-bedroom Victorian terrace boasts character features throughout, spacious interiors, and a generously...

Ambridge Close, Street

4 Bedroom Detached House | £335,000

Situated in a quiet cul-de-sac, this attractive four bedroom detached house offers spacious accommodation throughout. Th...

Holland & Odam (Street)

Street, Somerset, BA16 0BJ

01458 841411

How much is your home worth?

Use our short form to request a valuation of your property.

Request a Valuation

Mortgage Calculator

Amount Borrowed: £
Total Amount Repayable: £
Total Monthly Payment: £
©2026 The Guild of Property Professionals. All rights reserved. Terms and Conditions | Privacy Policy | Cookie Policy | Complaints Policy | Members Login
The Guild of Property Professionals Trading Address: 121 Park Lane, London W1K 7AG. GPEA Limited. Registered in England & Wales.  Company No: 02819824.  Registered Office Address: 2 St. Stephen's Court, St. Stephen's Road, Bournemouth, Dorset, England, BH2 6LA.  VAT Registration No: 576 8795 61
Book a Property Valuation Update Cookies Preferences