Guildford, Surrey, GU4

Guide Price
£425,000

2 Bedroom Terraced House for sale in Surrey

1 2 1
  • Freehold
  • Terraced
  • Modern decor throughout
  • Loft access
  • Private garden
  • Allocated parking space
  • Close to local amenities
  • Ultrafast broadband available

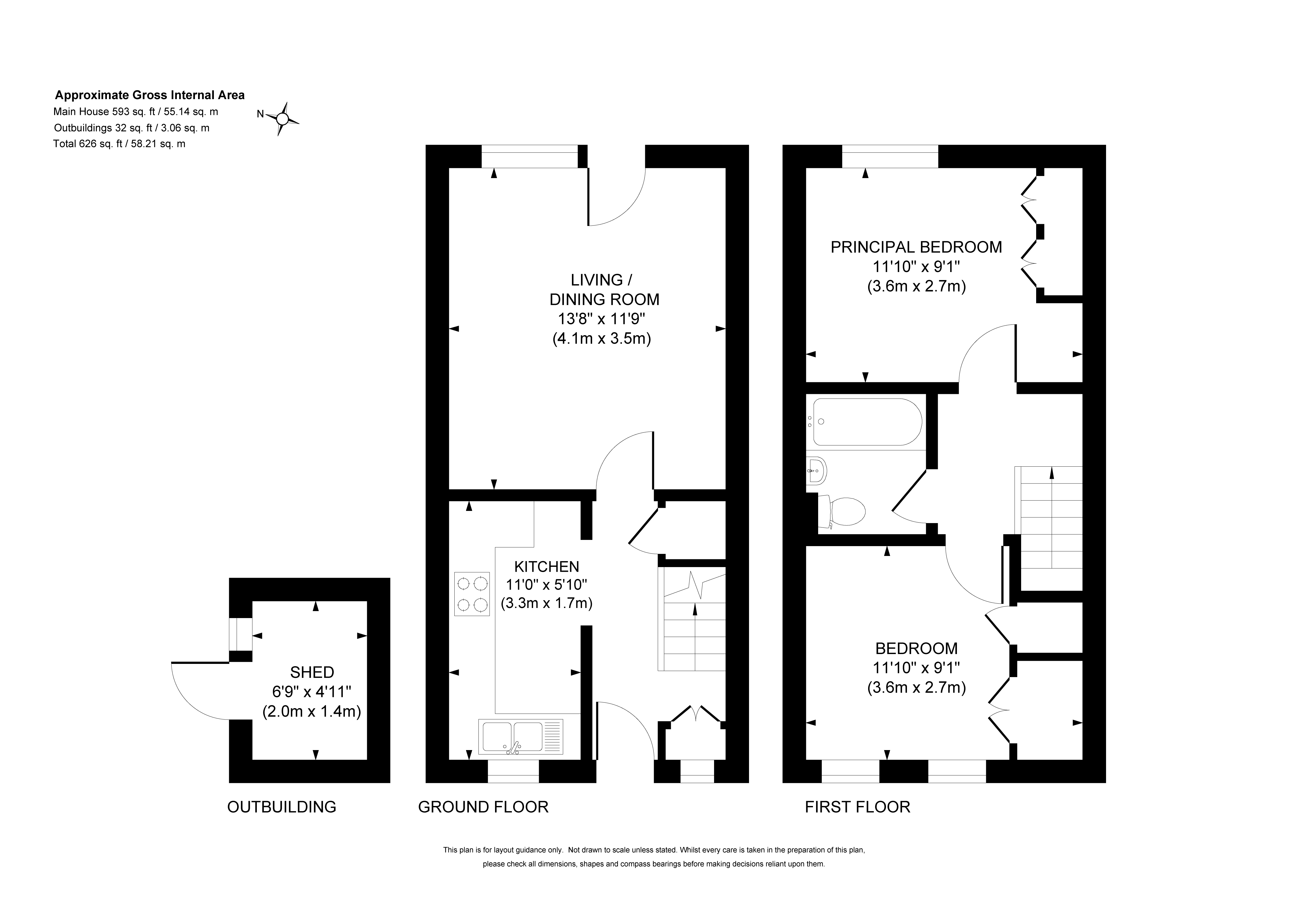
This charming mid-terrace home in the heart of Merrow Park offers a warm and welcoming atmosphere from the moment you arrive. A neat front garden with a tidy hedge and a small tree frames the approach to the front door, setting a peaceful first impression. The location is especially convenient, with a range of local amenities just moments away and excellent transport links providing straightforward access to Guildford and onward to London.Inside, the house has been thoughtfully styled to create a modern yet comfortable living environment. The kitchen features contemporary white shaker-style cabinetry paired with dark wood-effect worktops, complemented by earthy, brick-style splashback tiles that bring warmth and texture to the space. The kitchen is further enhanced by a fitted dishwasher. The living and dining area feels bright and inviting, with soft grey carpeting and light, neutral walls that make it easy to imagine relaxing or entertaining. A glass door at the rear opens directly onto the garden, allowing plenty of natural light to fill the room and offering a pleasant connection to the outdoors. Another highlight of the property is the modern boiler. Upstairs, the two bedrooms each have their own character while maintaining a cohesive, stylish look. Both include built-in wardrobes, and each features on-trend half wall panelling as a decorative focal point. One room is finished in a gentle sage green, creating a calming atmosphere, while the other has a soft blush-pink palette for a more playful, cosy feel. The bathroom is fresh and simple, fitted with classic white sanitaryware and accented with a line of blue diamond tiles that add a subtle splash of colour. The rear garden provides a tranquil, private space ideal for outdoor dining or relaxation. It includes a patio area, a lawn bordered by fencing, and a mixture of shrubs and hedging that enhance the sense of seclusion. The property also benefits from two allocated parking spaces, adding to its everyday practicality. With Merrow Park's pharmacy, doctor's surgery, dentist, convenience store and hairdresser all close at hand, this home offers a wonderful blend of comfort, style, and convenience.

Important Information

  • This is a Freehold property.

Property Ref: 417896_BUR250400

Share:

Similar Properties

Guildford, Surrey, GU4

3 Bedroom End of Terrace House | Guide Price £425,000

This charming end of terrace property offers a well-maintained and inviting home, ideal for those seeking a balance of c...

Guildford, Surrey, GU4

2 Bedroom Semi-Detached House | Guide Price £425,000

This charming two-bedroom home in Thyme Court, Burpham, offers a well-thought-out layout across two floors, and is offer...

Guildford, Surrey, GU4

3 Bedroom End of Terrace House | Offers in excess of £400,000

This welcoming end of terrace home in Merrow exudes a modern yet inviting atmosphere, with a seamless design that enhanc...

Jacobs Well, Guildford, Surrey, GU4

3 Bedroom Semi-Detached Bungalow | £445,000

This property, located in the desirable area of Jacob's Well, Guildford, offers great potential for buyers looking for a...

Burpham, Guildford, Surrey, GU4

3 Bedroom Semi-Detached House | Guide Price £450,000

A three bedroom semi-detached house set in a residential close near to all local amenities, easy access to the A3 and be...

Jacob's Well, Guildford, Surrey, GU4

2 Bedroom Semi-Detached Bungalow | Offers in excess of £450,000

Situated in the sought-after Jacobs Well area of Guildford, this two-bedroom bungalow is offered with no onward chain an...

Seymours (Burpham)

Burpham, Surrey, GU1 1YP

01483 300667

How much is your home worth?

Use our short form to request a valuation of your property.

Request a Valuation

Mortgage Calculator

Amount Borrowed: £
Total Amount Repayable: £
Total Monthly Payment: £
©2025 The Guild of Property Professionals. All rights reserved. Terms and Conditions | Privacy Policy | Cookie Policy | Complaints Policy | Members Login
The Guild of Property Professionals Trading Address: 121 Park Lane, London W1K 7AG. GPEA Limited. Registered in England & Wales.  Company No: 02819824.  Registered Office Address: 2 St. Stephen's Court, St. Stephen's Road, Bournemouth, Dorset, England, BH2 6LA.  VAT Registration No: 576 8795 61
Book a Property Valuation Update Cookies Preferences