Dormers Close, Tetbury

Guide Price
£725,000
SSTC
This property listing is now SSTC

4 Bedroom Detached House for sale in Tetbury

2 4 2
  • Well-appointed detached family house
  • Quiet leafy close on the edge of town
  • 4 bedrooms
  • Fantastic open plan kitchen/dining/family room
  • 2 further reception rooms
  • Principal bedroom with en-suite and dressing area
  • Garage and private parking
  • Secluded mature rear garden
  • Town amenities with a countryside feel
  • No onward chain

Description
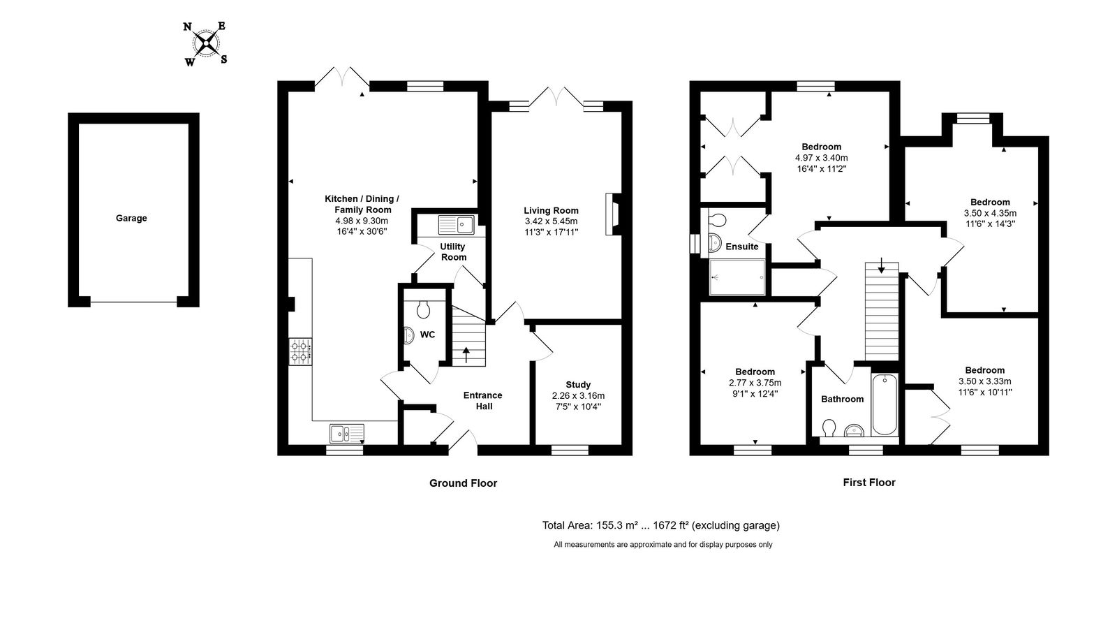
This double-fronted detached house is constructed with attractive stone elevations beneath a slate tiled roof. Situated on the edge of Tetbury backing onto playing fields, Dormers Close is a quiet no-through close built in 2016 by upmarket house builders CALA Homes as part of the High Trees one-off development comprising 28 homes. The well-appointed accommodation is family-sized with an excellent configuration, extending to around 1,672 sq.ft. 
 
The heart of the home is a superb open plan kitchen, dining, family room which is dual-aspect with patio doors connecting to the garden. The kitchen is equipped with extensive fitted units incorporating a gas hob, dishwasher and fridge/freezer. There is a separate utility room with a large storage cupboard beneath the stairs. Across the entrance hall, there is a front study and a spacious living room to the rear with a fireplace and double doors overlooking the garden. The first floor includes four bedrooms and a family bathroom. The principal bedroom suite boasts a fitted dressing area and en-suite shower room. An attic above provides fantastic storage and has been carpeted with a drop down ladder. 
 
A driveway to the side provides tandem private parking in front of a detached garage. Backing onto fields, the rear garden has a great degree of privacy laid to lawn with landscaped seating terraces, a pergola, raised timber borders and a stone-built BBQ. 
Situation
Tetbury is a thriving, historic Cotswold market town with much of it dating back to the 17th and 18th Centuries. The town has a broad range of shops and amenities for everyday needs as well as a number of quality antique shops, excellent hotels, restaurants and cafes within the town centre. Conveniently there is a large supermarket, hospital, surgeries and post office as well as excellent schools catering for all ages. Voted by Country Life magazine recently as the third most desirable town in the country, Tetbury is situated within an Area of Outstanding Natural Beauty and is surrounded by delightful Cotswold Countryside with ample opportunities for walking, shooting and hunting. Located less than half an hour from both the M4 and M5 motorway, Tetbury is within easy reach of Cirencester, Cheltenham, Bath, Bristol and Swindon. Close by is the beautiful Forest Commission run Westonbirt Arboretum and King Charles' Highgrove Estate. There is good access to nearby Kemble Railway Station which provides regular fast services to London and other regional centres.
Additional Information
The property is Freehold with mains gas central heating, mains drainage, water and electricity. The property is located within the Cotswold Area of Outstanding Natural Beauty. There is a service charge of c.£400 p/a payable to Remus Property Management. Superfast broadband is available and there is good mobile phone coverage with some limitations. Information taken from the Ofcom mobile and broadband checker, please see the website for more information. Cotswold Council Tax Band F.

Important Information

  • This is a Freehold property.
  • This Council Tax band for this property is: F

Property Ref: 1215635

Share:

Similar Properties

Pinkney, Near Sherston

4 Bedroom Semi-Detached House | Guide Price £725,000

Thoughtfully upgraded and extended, a beautifully presented Victorian semi-detached home. 4 bedrooms, 3 reception rooms,...

Farleaze, near Sherston

3 Bedroom Barn Conversion | Guide Price £725,000

A stunning contemporary barn conversion with 1 acre of grounds, set amongst beautiful countryside with westerly views. 

Hunloke Way, Malmesbury

5 Bedroom Detached House | Guide Price £715,000

Occupying a glorious, tranquil riverside setting overlooking meadowland, this substantial detached house offers over 2,0...

High Street, Colerne

5 Bedroom Village House | Guide Price £735,000

A substantial Grade II Listed village house with elegant, superbly proportioned accommodation, complete with private off...

Chelworth, near Crudwell

4 Bedroom Detached House | Guide Price £750,000

With an elegant stylish interior, this detached family-house is set within a peaceful position with mature gardens. 

Upper Castle Combe

4 Bedroom Cottage | Guide Price £750,000

Featuring a wealth of character with good ceiling height and room proportions, this Grade II listed period cottage exude...

James Pyle & Co (Sherston)

Swan Barton, Sherston, Wiltshire, SN16 0LJ

01666 840886

How much is your home worth?

Use our short form to request a valuation of your property.

Request a Valuation

Mortgage Calculator

Amount Borrowed: £
Total Amount Repayable: £
Total Monthly Payment: £
©2026 The Guild of Property Professionals. All rights reserved. Terms and Conditions | Privacy Policy | Cookie Policy | Complaints Policy | Members Login
The Guild of Property Professionals Trading Address: 121 Park Lane, London W1K 7AG. GPEA Limited. Registered in England & Wales.  Company No: 02819824.  Registered Office Address: 2 St. Stephen's Court, St. Stephen's Road, Bournemouth, Dorset, England, BH2 6LA.  VAT Registration No: 576 8795 61
Book a Property Valuation Update Cookies Preferences