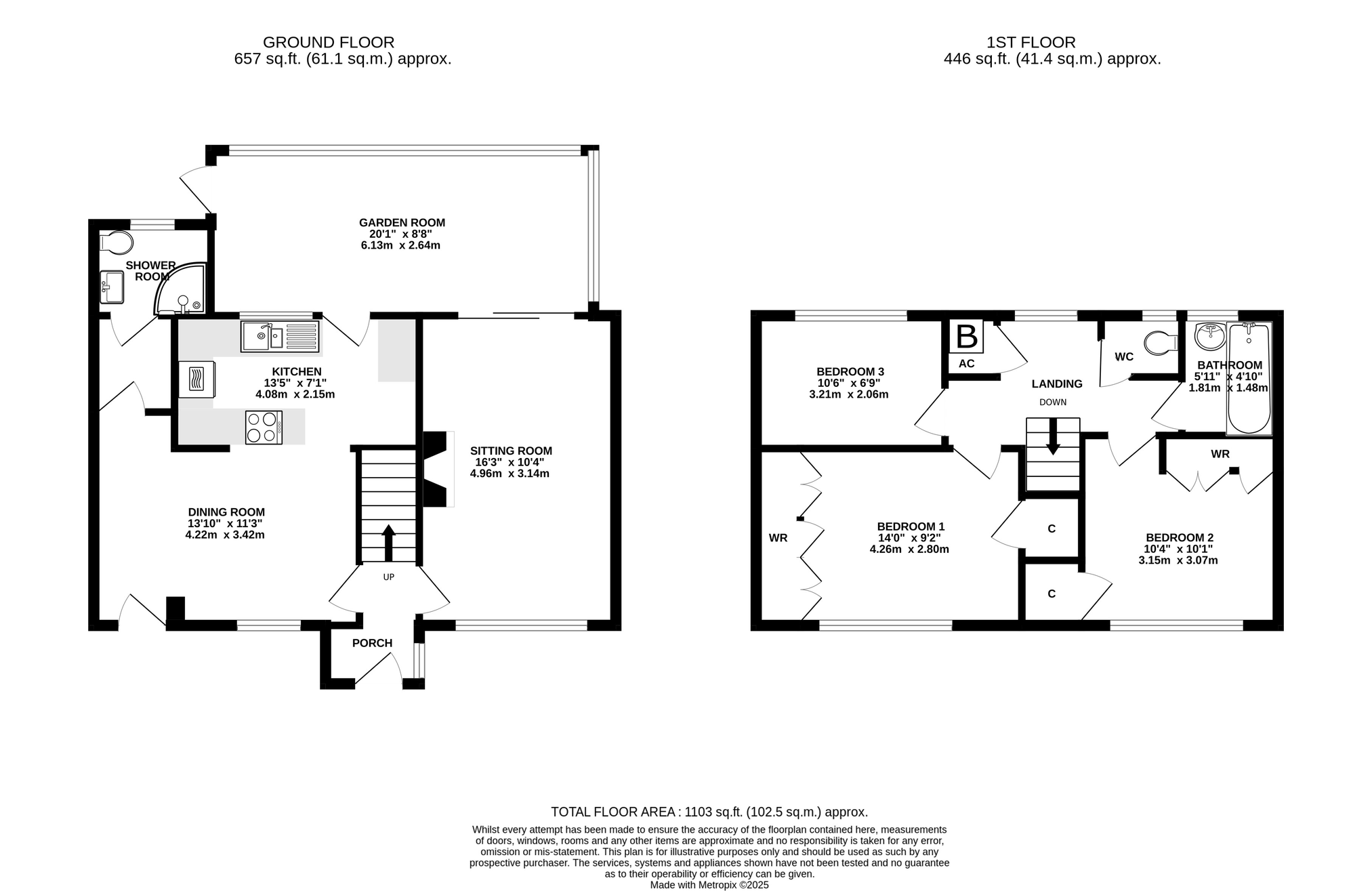
- Entrance hall with stairlift
- Double aspect sitting room with feature gas fire
- Large conservatory overlooking the garden with utility area
- Spacious dining kitchen with a good range of units
- Ground floor shower room
- Three generous bedrooms
- Bathroom and separate W.C.
- Off road parking for two cars to the front
- Secure and level garden to the rear with greenhouse and garden shed
- Offered for sale with no onward chain