Crockhurst Hill, Worthing, West Sussex, BN13

£650,000
SSTC
This property listing is now SSTC

5 Bedroom Detached House for sale in West Sussex

5
  • Detached Chalet Bungalow
  • Good Size Plot
  • 5 Bedrooms
  • 3 Reception Rooms
  • 32' Double Glazed Conservatory
  • Kitchen/Breakfast Room
  • Ground Floor WC/Shower Room
  • Family Bath/Shower Rm/WC
  • Ample off road parking
  • Energy Efficiency Rating – E

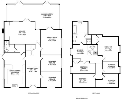
This detached residence standing on a large size plot. This impressive property comprises: Large feature 27' entrance hall, lounge with large feature open fireplace opening to a 32' double glazed conservatory, three further reception rooms/bedrooms, kitchen/family room, boiler room with ground floor shower room/WC, first floor landing, five good size bedrooms, modern fitted bathroom with separate shower/WC. Externally there is a private set of electric gates leading to ample parking for several vehicles and garage. The rear garden is set on a good size plot with a good size side garden. We believe viewing is essential to appreciate the overall size of this home.

This detached property standing on a good size corner plot. The property layout starts with a very impressive 27ft entrance hall with stairs to first floor landing. The family lounge is to the rear of the property with the feature large fireplace, and doors leading into the 32ft double glazed conservatory which is an impressive additional family room. The second reception room also has doors leading to the conservatory. The rest of the ground floor comprises a further two reception rooms/bedrooms and the very impressive kitchen/breakfast room with boiler room and ground floor shower room/wc. To the first floor we have the master bedroom with four further bedrooms and large family bath/shower room/wc. Outside the property are electric gates opening to the ample off road parking and garage. The gardens standing on this corner plot are to the side and rear.

Important Information

  • This is a Freehold property.

Property Ref: 59428_EAS210004

Share:

Similar Properties

Ash Lane, Rustington, Littlehampton, West Sussex, BN16

3 Bedroom Detached Bungalow | £650,000

Immaculately Presented Detached Bungalow in the Heart of Rustington VillageNestled in a prime location just moments from...

Amberley Road, Rustington, Littlehampton, West Sussex, BN16

2 Bedroom Detached Bungalow | £635,000

This beautifully extended bungalow strikes the perfect balance between traditional and modern. Thanks to the fantastic v...

Shirley Close, Rustington, Littlehampton, West Sussex, BN16

3 Bedroom Detached Bungalow | £615,000

A rare gem in Rustington’s most peaceful pocket — this bright and spacious three-bedroom detached bungalow sit...

Arundel Road, Worthing, West Sussex, BN13

5 Bedroom Detached House | Guide Price £700,000

A great opportunity to purchase this one off exceptional detached family home on the favoured High Salvington borders. T...

Homelands Avenue, East Preston, West Sussex, BN16

4 Bedroom Detached House | Offers Over £725,000

Graham Butt Estate Agents are delighted to bring to the market this detached family home situated on the ever popular, A...

Beltane Close, East Preston, Littlehampton, West Sussex, BN16

4 Bedroom Detached House | £750,000

Exclusive to Graham Butt Estate Agents, this exceptional four-bedroom detached family home is nestled in a sought-after...

Graham Butt Estate Agents (Rustington)

88 Woodlands Avenue, Rustington, West Sussex, BN16 3EY

01903 772345

How much is your home worth?

Use our short form to request a valuation of your property.

Request a Valuation

Mortgage Calculator

Amount Borrowed: £
Total Amount Repayable: £
Total Monthly Payment: £
©2025 The Guild of Property Professionals. All rights reserved. Terms and Conditions | Privacy Policy | Cookie Policy | Complaints Policy | Members Login
The Guild of Property Professionals Trading Address: 121 Park Lane, London W1K 7AG. GPEA Limited. Registered in England & Wales.  Company No: 02819824.  Registered Office Address: 2 St. Stephen's Court, St. Stephen's Road, Bournemouth, Dorset, England, BH2 6LA.  VAT Registration No: 576 8795 61
Book a Property Valuation Update Cookies Preferences