Baliol Road, Tankerton, Whitstable

£425,000
Under Offer
This property listing is now Under Offer

2 Bedroom Semi-Detached Bungalow for sale in Whitstable

2 1
  • WATCH OUR VIDEO WALK THROUGH TOUR
  • Extended Semi-Detached Bungalow
  • Two Good Size Bedrooms
  • Spacious Open Plan Kitchen/Living Room
  • Log BurnerTo Living Area
  • Westerly Facing Rear Garden
  • Log Cabin With Power & Light
  • Off Road Parking To Front
  • Conveniently Located To Amenities
  • Internal Viewing Essential To Appreciate

Ideally situated just a short stroll from Tankerton's charming parade of shops, restaurants and cafés, this beautifully presented semi-detached bungalow offers both comfort and convenience. The property boasts a delightful westerly-facing rear garden, complete with a log cabin, and benefits from off-road parking to the front.
The current owner has tastefully re-modelled the home incorporating a rear extension that creates a generous open-plan living space perfect for entertaining. This light and airy area features a log-burning stove and direct access to the garden enhancing the indoor-outdoor living experience.
There are two well-proportioned bedrooms and a modern fitted shower room making this an ideal home for couples, small families or downsizers seeking quality and location.

Positioned within easy reach of the working harbour?famed for its oysters?and the picturesque Whitstable Castle with its stunning gardens and The Orangery Tea Room, this home enjoys a highly desirable location.
Whitstable mainline railway station is approximately 700 yards away, providing excellent transport links, while the vibrant Whitstable town centre is just three-quarters of a mile, offering an array of independent shops and acclaimed eateries. A regular bus service to surrounding towns and the historic Cathedral City of Canterbury (approx. 7 miles) is available just 525 yards from the property.

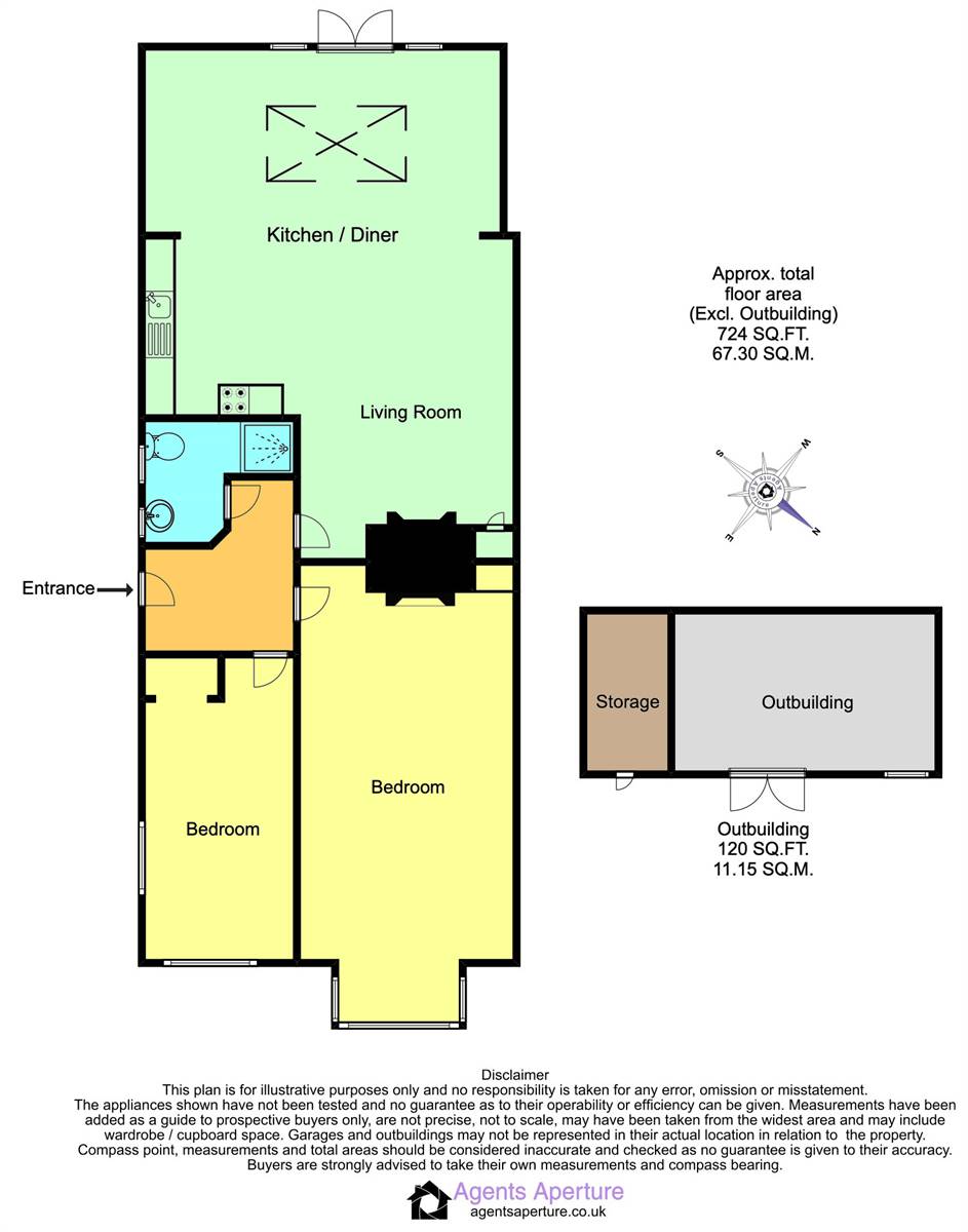
Entrance Hall   
Front entrance door. Radiator. Access via loft ladder to insulated and mainly boarded loft with light housing wall mounted Worcester combination gas boiler supplying hot water and central heating.

Kitchen/Dining/Lounge   22' 8 x 17' 2 (6.91m x 5.24m)
Handmade kitchen. Inset single drainer 1½ bowl sink unit. Work surface. Gas cooker point. Plumbing for washing machine. Double doors with window to either side to rear garden. Radiator. Lantern window with fitted blinds. Underfloor heating to extension. Feature fireplace housing log burning stove. Built-in larder cupboard with shelves.

Bedroom 1   18' 2 into bay x 10' 0 (5.54m x 3.05m)
Bay window to front overlooking garden. Radiator. Tiled fireplace with open hearth.

Bedroom 2   13' 11 x 6' 11 (4.25m x 2.11m)
Windows to front and side. Fitted double wardrobe with shelves and hanging space. Radiator.

Shower Room   6' 10 into cubicle x 5' 11 (2.09m x 1.81m)
Suite in white comprising shower cubicle, wash hand basin set into vanity unit with cupboard below and close coupled WC. Heated towel rail. Partially tiled walls. Two frosted windows to side. Extractor fan.

Front Garden   
Lawn area with stocked beds. Driveway extending to the front of property providing off road parking.

Rear Garden   21' 0 x 31' 0 plus cabin (6.41m x 9.45m)
Mainly laid to lawn with flower beds, bushes and shrubs. Small ornamental pond. Patio area. Outside tap. Outside lighting. Gated pedestrian side access. Enclosed with fencing. Electric awning.

Log Cabin   12' 6 x 7' 2 (3.81m x 2.19m)
Double glazed double doors to rear garden. Double glazed window. Power and light. Integral storage shed.

Main Services
The following mains services are connected to the property electricity, water, gas, drainage and a telephone line. All services will be subject to the appropriate companies transfer conditions.

Heating
Central heating is provided by a gas fired boiler situated in the loft and hot water radiators as indicated in these particulars.

Windows
The windows are generally of UPVC double glazed sealed units.

Tenure
The property is to be sold Freehold with vacant possession.

Council Tax
We are advised by the Valuation Office that the property is currently within Council Tax Band B. The amount payable under tax band B for the year 2025/2026 is £1,791.42.

Viewing
Please ring us to make an appointment. We are open from 9am to 6pm Monday to Friday, 9am to 5pm Saturdays and by appointment only on Sundays.

Agent Notes
Kent Estate Agencies gives notice for themselves and for the sellers of the property, whose agents they are that any floor plans, plans or mapping and measurements are approximate quoted in metric with imperial equivalents. All are for general guidance only and whilst every attempt has been made to ensure accuracy, they must not be relied on. The measurements are provided in accordance with the R.I.C.S. Code of Measuring Practice 6th edition. We have not carried out a structural survey and the services, appliances and specific fittings have not been tested and therefore no guarantee can be given that they are in working order. Photographs are reproduced for general information and it must not be inferred that any item shown is included with the property. Prospective purchasers or lessees should seek their own professional advice. Kent Estate Agencies retain the copyright in all advertising material used to market this property. No person in the employment of Kent Estate Agencies has any authority to make any representation or warranty whatever in relation to this property. Purchase prices, rents or other prices quoted are correct at the date of publication and, unless otherwise stated, exclusive of VAT. For a free valuation of your property contact the number on this brochure. Printed 8th August 2025

Important Information

  • This is a Freehold property.

Property Ref: 57376_2B9EA5

Share:

Similar Properties

Seafield Road, Tankerton, Whitstable

2 Bedroom Detached Bungalow | £425,000

Offered with no onward chain, this linked detached bungalow is believed to date from the 1950's, ideally located in a po...

Norview Road, Whitstable

2 Bedroom Detached Bungalow | £425,000

This extended detached bungalow boasts breathtaking panoramic views across Whitstable with the sea and estuary beyond wh...

Linden Avenue, Whitstable

3 Bedroom Semi-Detached House | Guide Price £425,000

Positioned in a quiet elevated location, this well-proportioned semi-detached house offers good size living accommodatio...

Bridewell Park, Tankerton, Whitstable

3 Bedroom Semi-Detached House | £435,000

A well-positioned semi-detached family home offering spacious accommodation ideal for a growing family. The property fea...

Primrose Way, Chestfield, Whitstable

4 Bedroom Detached House | £445,000

Conveniently positioned within the sought-after village of Chestfield, this detached family house offers comfortable and...

Island Wall, Whitstable

3 Bedroom Terraced House | £445,000

A much sought after position and just a stones throw from the delightful seafront and pebble beaches is this deceptively...

Kent Estate Agencies (Tankerton)

Tankerton Road, Tankerton, Kent, CT5 2AH

01227 274220

How much is your home worth?

Use our short form to request a valuation of your property.

Request a Valuation

Mortgage Calculator

Amount Borrowed: £
Total Amount Repayable: £
Total Monthly Payment: £
©2025 The Guild of Property Professionals. All rights reserved. Terms and Conditions | Privacy Policy | Cookie Policy | Complaints Policy | Members Login
The Guild of Property Professionals Trading Address: 121 Park Lane, London W1K 7AG. GPEA Limited. Registered in England & Wales.  Company No: 02819824.  Registered Office Address: 2 St. Stephen's Court, St. Stephen's Road, Bournemouth, Dorset, England, BH2 6LA.  VAT Registration No: 576 8795 61
Book a Property Valuation Update Cookies Preferences